ネクストイノベーション

ネクストイノベーション

【耐震等級3/最長60年保証/ZEH対応】の高性能住宅を手の届く価格で
お気に入りに追加する
愛知県  Nさん
【3000万円台/30坪台】ジャパンディスタイルで叶えた、老後を愉しむ平屋
ネクストイノベーション 【3000万円台/30坪台】ジャパンディスタイルで叶えた、老後を愉しむ平屋の建築実例画像1
  • 本体価格
    3,000万円3,499万円
    93.4万円109.0万円/坪
  • 延床面積
    106.20m2 (32.1坪)
    敷地面積
    386.09m2 (116.7坪)
    家族構成
    夫婦
  • 竣工年月
    2023年12月
    工法
    木造軸組
この会社をもっと知りたくなったら
無料でお届け!まずはカタログ請求

施主Nさんのこだわり

50代ご夫婦が「老後を楽しむ暮らし」をテーマに設計された住まい

デザイン性あふれる写真の平屋は、50代ご夫婦が「老後を楽しむ暮らし」をテーマに設計された住まい。ジャパンディスタイルを意識した素材選びと、家事動線・収納に配慮された空間づくりが特徴だ。まず外観は自然素材とモダンなデザインでバランスを取り、軒を深くしつつも光を取り込む窓配置で陰影が豊かになるよう設計されている。間取りはワンフロア中心で移動の負担を抑え、LDKにはヌック(くつろぎの小コーナー)を配置。大きな窓から四季の風景を取り込むことで、別荘のような落ち着き… 続きを読む

デザイン性あふれる写真の平屋は、50代ご夫婦が「老後を楽しむ暮らし」をテーマに設計された住まい。ジャパンディスタイルを意識した素材選びと、家事動線・収納に配慮された空間づくりが特徴だ。まず外観は自然素材とモダンなデザインでバランスを取り、軒を深くしつつも光を取り込む窓配置で陰影が豊かになるよう設計されている。間取りはワンフロア中心で移動の負担を抑え、LDKにはヌック(くつろぎの小コーナー)を配置。大きな窓から四季の風景を取り込むことで、別荘のような落ち着きと開放感を共存させている。収納はただ量で満たすのではなく、「隠す収納」「見せる収納」を使い分ける工夫も。例えばキッチン背後のパントリーや造作棚、玄関周りのクローゼットで、生活用品が整然と片づく設計である。素材としては木のぬくもりを残すフローリング、白を基調としたインテリア、そして石や竹などの天然素材でアクセントを加え、視覚的にも癒しを与える。さらに設備面では動線やバリアフリー性を重視し、段差の少ない床、手すりの配置にも配慮されている。照明計画では間接照明や調光が取り入れられ、一日の時間帯によって表情を変える室内。老後という時間をゆっくりと愉しむための、静かで上品な暮らしがここにはある。

間取り図(3LDK)

1階
ネクストイノベーション 【3000万円台/30坪台】ジャパンディスタイルで叶えた、老後を愉しむ平屋の間取り図(3LDK)1階
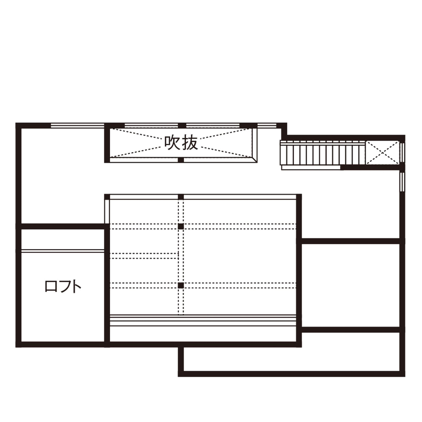
小屋裏
ネクストイノベーション 【3000万円台/30坪台】ジャパンディスタイルで叶えた、老後を愉しむ平屋の間取り図(3LDK)小屋裏
この会社をもっと知りたくなったら
無料でお届け!まずはカタログ請求

内外観ギャラリー

この会社をもっと知りたくなったら
無料でお届け!まずはカタログ請求

この会社の他の建築実例を見る

この建築実例が気になった方へおすすめ

この建築実例の詳細情報

ネクストイノベーションのコンテンツ一覧

お問い合わせ

カタログをもらう
お問い合わせ先
050-5443-1111
  • ※営業時間内の対応となります。

  • ※お問い合わせの際は「SUUMO(スーモ)を見て」とお伝え下さい。

新宿本社
  • 東京都新宿区西新宿1丁目6番1号 新宿エルタワー2階

この会社のホームページへ
カタログ一覧
※1社で請求できるカタログは3冊までです。

この会社が気になったら

カタログをもらう

関連キーワード

この建築実例のその他の特徴
ページトップへ戻る