一級建築士事務所 和工務店

一級建築士事務所 和工務店

「やっと見つけた」。田園都市線 エリアで提案する感動の家づくり
お気に入りに追加する
東京都世田谷区  Mさん
【全棟気密測定/世田谷区/40坪台/間取り】「家時間」の質を高めた、南リゾート風のおしゃれな住まい
一級建築士事務所 和工務店 【全棟気密測定/世田谷区/40坪台/間取り】「家時間」の質を高めた、南リゾート風のおしゃれな住まいの建築実例画像1
  • 本体価格
    4,000万円
    89.4万円/坪
  • 延床面積
    148.06m2 (44.7坪)
    敷地面積
    158.81m2 (48.0坪)
    家族構成
    夫婦+子ども2人
  • 竣工年月
    2014年4月
    工法
    木造軸組(外断熱二重通気工法)
この会社をもっと知りたくなったら
無料でお届け!まずはカタログ請求

施主Mさんのこだわり

家族の「大切な家時間」をカタチに

家族で食事をしたり、くつろいだり、趣味に熱中したり。ときには友人を招いて楽しい時間を過ごすのもいい。和工務店が掲げるのは、そんな「家時間」の質を高める住まいづくりだ。同社では、国内外の良質な無垢材を使い分け、外断熱二重通気工法で四季を通じて心地よい空間をカタチにしている。写真のお宅のMさんは、外断熱工法による健康的な家づくりを求めて同社に辿り着いたという。「暑い夏もエアコン一台で十分涼しく、家中爽やか。友人から空気感も違うと言われました。冬は1階の床暖房を… 続きを読む

家族で食事をしたり、くつろいだり、趣味に熱中したり。ときには友人を招いて楽しい時間を過ごすのもいい。和工務店が掲げるのは、そんな「家時間」の質を高める住まいづくりだ。同社では、国内外の良質な無垢材を使い分け、外断熱二重通気工法で四季を通じて心地よい空間をカタチにしている。写真のお宅のMさんは、外断熱工法による健康的な家づくりを求めて同社に辿り着いたという。「暑い夏もエアコン一台で十分涼しく、家中爽やか。友人から空気感も違うと言われました。冬は1階の床暖房をつければ2階まで暖まります。リゾートを感じるデザインもお気に入り」と微笑む。プラン提案時に明快な見積もりを提示してくれるのも安心だ。

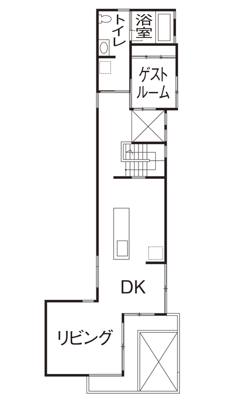
間取り図(4LDK)

1階
一級建築士事務所 和工務店 【全棟気密測定/世田谷区/40坪台/間取り】「家時間」の質を高めた、南リゾート風のおしゃれな住まいの間取り図(4LDK)1階
2階
一級建築士事務所 和工務店 【全棟気密測定/世田谷区/40坪台/間取り】「家時間」の質を高めた、南リゾート風のおしゃれな住まいの間取り図(4LDK)2階
この会社をもっと知りたくなったら
無料でお届け!まずはカタログ請求

内外観ギャラリー

この会社をもっと知りたくなったら
無料でお届け!まずはカタログ請求

この会社の他の建築実例を見る

この建築実例が気になった方へおすすめ

この建築実例の詳細情報

この建築実例を建てた店舗情報

住所 東京都町田市成瀬4-17-4
問い合わせ
042-729-2182
  • ※営業時間内の対応となります。

  • ※お問い合わせの際は「SUUMO(スーモ)を見て」とお伝え下さい。

ホームページ この会社のホームページへ

一級建築士事務所 和工務店のコンテンツ一覧

お問い合わせ

カタログをもらう
施工実例集
一級建築士事務所 和工務店のカタログ(和工務店 施工事例集)
和工務店 施工事例集
問合コード:1176620002
お問い合わせ先
042-729-2182
  • ※営業時間内の対応となります。

  • ※お問い合わせの際は「SUUMO(スーモ)を見て」とお伝え下さい。

  • 東京都町田市成瀬4-17-4

  • 定休日:水曜日

この会社のホームページへ

この会社が気になったら

カタログをもらう
施工実例集
一級建築士事務所 和工務店のカタログ(和工務店 施工事例集)
和工務店 施工事例集
問合コード:1176620002

関連キーワード

この建築実例のその他の特徴
ページトップへ戻る