感動

感動

鹿児島の家づくりに【感動】を。夢いっぱいの自由設計にプロの提案とフォローをプラス
お気に入りに追加する
鹿児島県鹿児島市  Kさん
【鹿児島市/2階建て/3LDK/間取り図あり】1階全部土間!!大空間吹き抜けのある家
感動 【鹿児島市/2階建て/3LDK/間取り図あり】1階全部土間!!大空間吹き抜けのある家の建築実例画像1
  • 本体価格
    2,000万円2,499万円
    48.2万円60.2万円/坪
  • 延床面積
    137.45m2 (41.5坪)
    敷地面積
    271.17m2 (82.0坪)
    家族構成
    夫婦+子ども2人
  • 竣工年月
    -
    工法
    木造軸組
この会社をもっと知りたくなったら
無料でお届け!まずはカタログ請求

施主Kさんのこだわり

家の中に!?バスケットコート!!

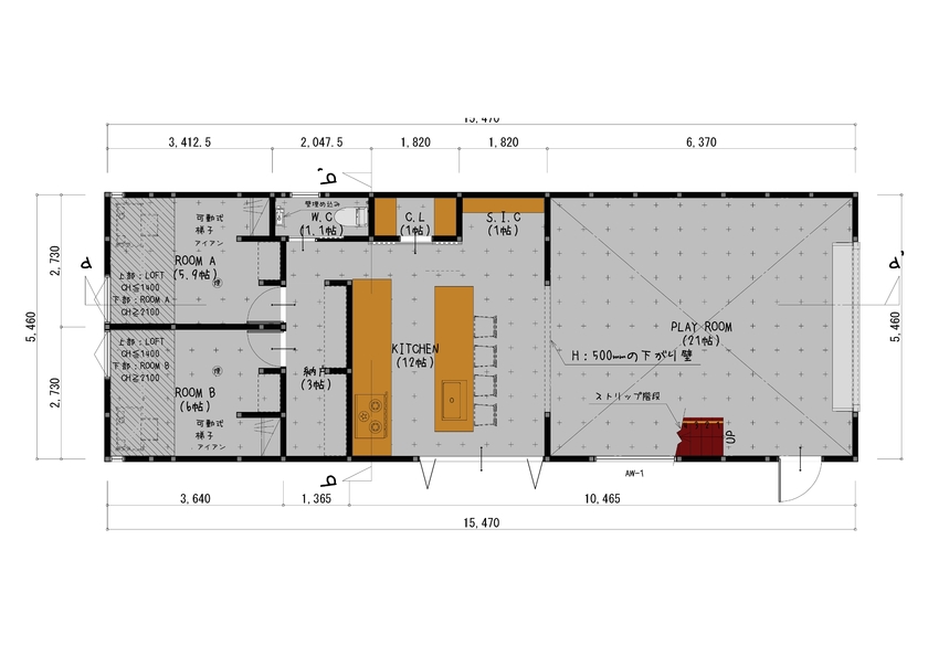
玄関を開けると、土間空間に21帖のバスケットコートが出現!!開放的な吹抜けに、スタイリッシュなストリップ階段のある2階建てのお家。1階の土間空間には、バスケットコートの隣に12帖の広々としたキッチン。2階にリビングを配置することで外からの視線を気にせずご家族の時間を楽しめる空間に。2階リビングからはバスケットコートを見下ろすことができるので、お子様やご友人がバスケを楽しむ様子を観戦することもできる!誰もが憧れる理想のお家をカタチにした。

玄関を開けると、土間空間に21帖のバスケットコートが出現!!開放的な吹抜けに、スタイリッシュなストリップ階段のある2階建てのお家。1階の土間空間には、バスケットコートの隣に12帖の広々としたキッチン。2階にリビングを配置することで外からの視線を気にせずご家族の時間を楽しめる空間に。2階リビングからはバスケットコートを見下ろすことができるので、お子様やご友人がバスケを楽しむ様子を観戦することもできる!誰もが憧れる理想のお家をカタチにした。

間取り図(3LDK)

1階
感動 【鹿児島市/2階建て/3LDK/間取り図あり】1階全部土間!!大空間吹き抜けのある家の間取り図(3LDK)1階
2階
感動 【鹿児島市/2階建て/3LDK/間取り図あり】1階全部土間!!大空間吹き抜けのある家の間取り図(3LDK)2階
この会社をもっと知りたくなったら
無料でお届け!まずはカタログ請求

内外観ギャラリー

この会社をもっと知りたくなったら
無料でお届け!まずはカタログ請求

この会社の他の建築実例を見る

この建築実例が気になった方へおすすめ

この建築実例の詳細情報

この建築実例を建てた店舗情報

住所 鹿児島県鹿児島市西陵3-28-22-2F
問い合わせ
099-296-8881
  • ※営業時間内の対応となります。

  • ※お問い合わせの際は「SUUMO(スーモ)を見て」とお伝え下さい。

ホームページ この会社のホームページへ

感動のコンテンツ一覧

お問い合わせ

カタログをもらう
施工実例集
感動のカタログ(感動の家・軒別実例集)
感動の家・軒別実例集
問合コード:1333170001
お問い合わせ先
099-296-8881
  • ※営業時間内の対応となります。

  • ※お問い合わせの際は「SUUMO(スーモ)を見て」とお伝え下さい。

  • 鹿児島県鹿児島市西陵3-28-22-2F

  • 定休日:水・木曜日(祝日の場合は営業)・年末年始

この会社のホームページへ

この会社が気になったら

カタログをもらう
施工実例集
感動のカタログ(感動の家・軒別実例集)
感動の家・軒別実例集
問合コード:1333170001

関連キーワード

この建築実例のその他の特徴
ページトップへ戻る