パルコホーム

パルコホーム

家族の笑顔溢れる暮らしを追求する「ママと暮らしのオフィシャルパートナー」
お気に入りに追加する
岩手県紫波郡  Sさん
【間取り図有/ビルトインガレージ】友人が集まれる約20帖のLDKや、こだわりの木目×モノトーンインテリア
パルコホーム 【間取り図有/ビルトインガレージ】友人が集まれる約20帖のLDKや、こだわりの木目×モノトーンインテリアの建築実例画像1
  • 本体価格
    -
  • 延床面積
    171.00m2 (51.7坪)
    敷地面積
    294.60m2 (89.1坪)
    家族構成
    夫婦+子ども1人
  • 竣工年月
    2019年7月
    工法
    木造軸組
この会社をもっと知りたくなったら
無料でお届け!まずはカタログ請求

施主Sさんのこだわり

回遊性のあるアイランドキッチンや畳スペースなど子育て夫婦にフィット

結婚してすぐ家づくりを検討し始めたSさん夫婦。ほしかったのは、友人たちが集まれるスペースやガレージ。とくにガレージは、木目のシャッターがいいという理想もあった。完成した住まいは、ブラックの外壁にホワイトの窓枠でアクセントをつけたスタイリッシュな家。憧れだった玄関に直接つながるビルトインガレージが叶い、「冬はガレージ回りの雪かきや車に積もった雪を払う手間がなくなり、時間に余裕ができた」と大満足。室内のインテリアコーディネートも、木目が好きな夫婦の好みを反映。… 続きを読む

結婚してすぐ家づくりを検討し始めたSさん夫婦。ほしかったのは、友人たちが集まれるスペースやガレージ。とくにガレージは、木目のシャッターがいいという理想もあった。完成した住まいは、ブラックの外壁にホワイトの窓枠でアクセントをつけたスタイリッシュな家。憧れだった玄関に直接つながるビルトインガレージが叶い、「冬はガレージ回りの雪かきや車に積もった雪を払う手間がなくなり、時間に余裕ができた」と大満足。室内のインテリアコーディネートも、木目が好きな夫婦の好みを反映。全体を落ち着いた色味の木目で統一し、キッチンカウンターや和室の畳、テレビボード、バスタブなどをブラックで揃えてシックな雰囲気に。LDKは約20帖と広く、たくさんの友人が集まってもゆったりと過ごせる空間が実現。回遊性のあるアイランドキッチンで、ダイニング側から住まいを建てた後に生まれた子どもが畳スペースで遊んでいるのを見守ることができるなど、子育て中の夫婦にフィットする間取りだ。「オール電化にして冬の灯油代がなくなり、家計がスマートに。高断熱・高気密で暖かく、冬でも半そでで過ごしています」と、入居後の暮らしやすさも語ってくれた。(社員邸)

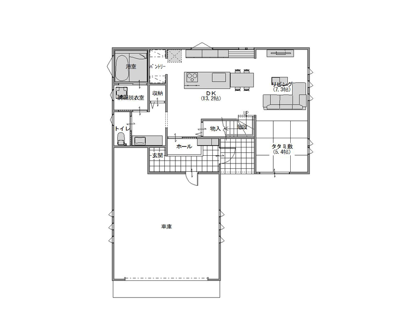
間取り図(4LDK)

1階
パルコホーム 【間取り図有/ビルトインガレージ】友人が集まれる約20帖のLDKや、こだわりの木目×モノトーンインテリアの間取り図(4LDK)1階
2階
パルコホーム 【間取り図有/ビルトインガレージ】友人が集まれる約20帖のLDKや、こだわりの木目×モノトーンインテリアの間取り図(4LDK)2階
この会社をもっと知りたくなったら
無料でお届け!まずはカタログ請求

内外観ギャラリー

この会社をもっと知りたくなったら
無料でお届け!まずはカタログ請求

この会社の他の建築実例を見る

この建築実例が気になった方へおすすめ

この建築実例の詳細情報

この建築実例を建てた店舗情報

住所 岩手県盛岡市北飯岡一丁目1‐82
問い合わせ
019-631-2865
  • ※営業時間内の対応となります。

  • ※お問い合わせの際は「SUUMO(スーモ)を見て」とお伝え下さい。

ホームページ この会社のホームページへ

パルコホームのコンテンツ一覧

お問い合わせ

カタログをもらう
総合カタログ
パルコホームのカタログ(【パルコホーム】総合カタログ)
【パルコホーム】総合カタログ
問合コード:5015140001
イベントに参加する
お問い合わせ先
019-631-2865
  • ※営業時間内の対応となります。

  • ※お問い合わせの際は「SUUMO(スーモ)を見て」とお伝え下さい。

  • 岩手県盛岡市北飯岡一丁目1‐82

  • 定休日:毎週火曜日、お盆期間、年末年始

この会社のホームページへ

この会社が気になったら

カタログをもらう
総合カタログ
パルコホームのカタログ(【パルコホーム】総合カタログ)
【パルコホーム】総合カタログ
問合コード:5015140001
イベントに参加する

関連キーワード

この建築実例のその他の特徴
ページトップへ戻る