翼住宅(つばさハウジング)

翼住宅(つばさハウジング)

カナダのログハウス職人が設計する、木の心地よさに包まれる家づくり
お気に入りに追加する
石川県かほく市  Yさん
【45坪/4LDK/4000万円台】木の温もりあふれる吹き抜けリビング。木の香りに集った方がほっと一息つける家
翼住宅(つばさハウジング) 【45坪/4LDK/4000万円台】木の温もりあふれる吹き抜けリビング。木の香りに集った方がほっと一息つける家の建築実例画像1
  • 本体価格
    4,000万円
    88.9万円/坪
  • 延床面積
    148.76m2 (44.9坪)
    敷地面積
    -
    家族構成
    大人2名
  • 竣工年月
    2024年12月
    工法
    その他(独自認定工法等)
この会社をもっと知りたくなったら
無料でお届け!まずはカタログ請求

施主Yさんのこだわり

木の香る、集える空間

ご自宅で、アーティストとしてご活躍されていますので、室内での展示、作業するお部屋 又、作品庫とこだわりのあるお住まいとなっております。玄関を入るとステキな空間が広がり、木の持つ自然な香りの中落ち着いた雰囲気で作品作りができますね。

ご自宅で、アーティストとしてご活躍されていますので、室内での展示、作業するお部屋 又、作品庫とこだわりのあるお住まいとなっております。玄関を入るとステキな空間が広がり、木の持つ自然な香りの中落ち着いた雰囲気で作品作りができますね。

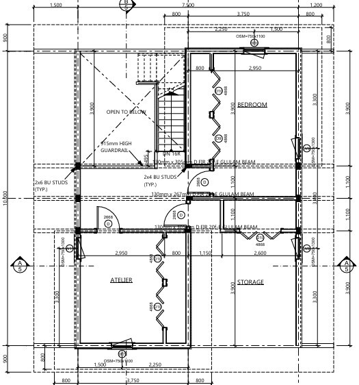
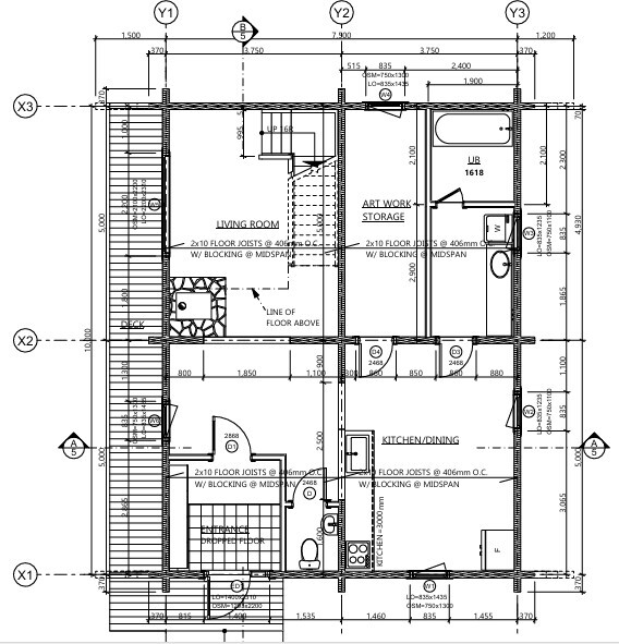
間取り図(4LDK)

1階
翼住宅(つばさハウジング) 【45坪/4LDK/4000万円台】木の温もりあふれる吹き抜けリビング。木の香りに集った方がほっと一息つける家の間取り図(4LDK)1階
2階
翼住宅(つばさハウジング) 【45坪/4LDK/4000万円台】木の温もりあふれる吹き抜けリビング。木の香りに集った方がほっと一息つける家の間取り図(4LDK)2階
この会社をもっと知りたくなったら
無料でお届け!まずはカタログ請求

内外観ギャラリー

この会社をもっと知りたくなったら
無料でお届け!まずはカタログ請求

この会社の他の建築実例を見る

この建築実例が気になった方へおすすめ

  • この建築実例のカタログをもらう

    翼住宅(つばさハウジング)のカタログ画像
    総合カタログ
    呼吸する家
    つばさハウジングが提供するログハウスの家についてのご案内です。

この建築実例の詳細情報

この建築実例を建てた店舗情報

住所 富山県富山市婦中町蔵島180-1
問い合わせ
076-482-5478
  • ※営業時間内の対応となります。

  • ※お問い合わせの際は「SUUMO(スーモ)を見て」とお伝え下さい。

ホームページ この会社のホームページへ

翼住宅(つばさハウジング)のコンテンツ一覧

お問い合わせ

カタログをもらう
総合カタログ
翼住宅(つばさハウジング)のカタログ(呼吸する家)
呼吸する家
問合コード:1707630001
お問い合わせ先
076-482-5478
  • ※営業時間内の対応となります。

  • ※お問い合わせの際は「SUUMO(スーモ)を見て」とお伝え下さい。

  • 富山県富山市婦中町蔵島180-1

  • 定休日:年中無休

この会社のホームページへ

この会社が気になったら

カタログをもらう
総合カタログ
翼住宅(つばさハウジング)のカタログ(呼吸する家)
呼吸する家
問合コード:1707630001

関連キーワード

この建築実例のその他の特徴
ページトップへ戻る