日栄商事

日栄商事

創業82年の歴史と実績 地域に根ざして施工、販売、アフターメンテまですべて一貫
お気に入りに追加する
千葉県  Iさん
【1500~1999万円】リビングの抜け感・窓の配置にもこだわった愛犬とともに快適に過ごす家
日栄商事 【1500~1999万円】リビングの抜け感・窓の配置にもこだわった愛犬とともに快適に過ごす家の建築実例画像1
  • 本体価格
    1,500万円1,999万円
    52.6万円70.1万円/坪
  • 延床面積
    94.39m2 (28.5坪)
    敷地面積
    138.01m2 (41.7坪)
    家族構成
    夫婦+犬
  • 竣工年月
    2025年3月
    工法
    木造軸組
この会社をもっと知りたくなったら
無料でお届け!まずはカタログ請求

施主Iさんのこだわり

リビングの抜け感・窓の配置にもこだわった愛犬とともに快適に過ごす家

日栄商事の特長は、構造材に品質を保証するJAS規格をクリアした無垢材の使用にこだわり、さらにそれを超える厳しい自社基準を課して選んだ、高知県産の「土佐桧」を使用していること。品質を追求しながら、高い強度で長く安心して暮らせる家を提供。設計ポイントは、高い吹き抜けのあるリビング!また、そこに配置された窓の配置・大きさにもお施主様のこだわりが。お庭はドックランとしても使えるように、プライバシーに配慮した外構で仕上げてもらいました。

日栄商事の特長は、構造材に品質を保証するJAS規格をクリアした無垢材の使用にこだわり、さらにそれを超える厳しい自社基準を課して選んだ、高知県産の「土佐桧」を使用していること。品質を追求しながら、高い強度で長く安心して暮らせる家を提供。設計ポイントは、高い吹き抜けのあるリビング!また、そこに配置された窓の配置・大きさにもお施主様のこだわりが。お庭はドックランとしても使えるように、プライバシーに配慮した外構で仕上げてもらいました。

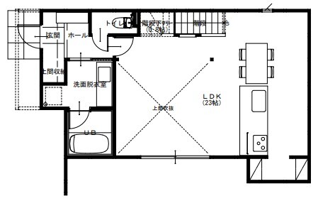
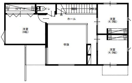
間取り図(3LDK)

1階
日栄商事 【1500~1999万円】リビングの抜け感・窓の配置にもこだわった愛犬とともに快適に過ごす家の間取り図(3LDK)1階
2階
日栄商事 【1500~1999万円】リビングの抜け感・窓の配置にもこだわった愛犬とともに快適に過ごす家の間取り図(3LDK)2階
この会社をもっと知りたくなったら
無料でお届け!まずはカタログ請求

内外観ギャラリー

この会社をもっと知りたくなったら
無料でお届け!まずはカタログ請求

この会社の他の建築実例を見る

この建築実例が気になった方へおすすめ

  • この建築実例のカタログをもらう

    日栄商事のカタログ画像
    プラン集
    施工プラン集
    日栄商事の総合カタログです。土地情報などもお送りいたします
  • イベントに参加する

    日栄商事のイベント画像
    \来場予約受付中/【守谷市:1700万円/30坪~叶えるモデルハウス見学|土地・資金相談もお気軽に】駐車場完備|お子様連れ歓迎|初めての家づくりサポート◎
    • 設計・資金相談会
    • 土地相談会
    開催日
    2025/10/1(水)~随時
    開催場所
    茨城県守谷市久保ヶ丘2-4-1
    参加特典
    日栄商事の家づくりが分かるパンフレットプレゼント
    お土地情報もご要望に応じてご紹介いたします

この建築実例の詳細情報

この建築実例を建てた店舗情報

住所 茨城県常総市水海道山田町4663
問い合わせ
0297-22-1511
  • ※営業時間内の対応となります。

  • ※お問い合わせの際は「SUUMO(スーモ)を見て」とお伝え下さい。

ホームページ この会社のホームページへ

日栄商事のコンテンツ一覧

お問い合わせ

カタログをもらう
プラン集
日栄商事のカタログ(施工プラン集)
施工プラン集
問合コード:0626330001
イベントに参加する

この会社が気になったら

カタログをもらう
プラン集
日栄商事のカタログ(施工プラン集)
施工プラン集
問合コード:0626330001
イベントに参加する

関連キーワード

この建築実例のその他の特徴
ページトップへ戻る