ゆめすみか(吉村一建設)

ゆめすみか(吉村一建設)

耐震等級3で高断熱・全館空調のハイスペックな家が30坪1880万円から
お気に入りに追加する
大阪府堺市  Tさん
【4000万円台/大阪/堺市/間取り有/全館空調】家事シェア導線!仕事や子育てに忙しい毎日を助けてくれる家
ゆめすみか(吉村一建設) 【4000万円台/大阪/堺市/間取り有/全館空調】家事シェア導線!仕事や子育てに忙しい毎日を助けてくれる家の建築実例画像1
  • 本体価格
    4,000万円
    75.0万円/坪
  • 延床面積
    176.38m2 (53.3坪)
    敷地面積
    414.67m2 (125.4坪)
    家族構成
    夫婦+子ども1人
  • 竣工年月
    2023年5月
    工法
    木造軸組
この会社をもっと知りたくなったら
無料でお届け!まずはカタログ請求

施主Tさんのこだわり

暮らしてより実感する全館空調の心地よさ!家事が減る動線・収納でラグジュアリーな家

開放的で自然光があふれる吹き抜けの大空間リビング、夫婦で料理がしやすく配膳や片付けに便利な横並びスタイルのキッチンなどラグジュアリーな空間設計とデザインのT邸。さらに子育てや仕事で忙しい毎日、少しでも家事の負担を軽減してリラックスできる時間を増やす、そんな願いも叶えている。動線や収納にこだわり、自分の事は自分でできるように工夫してそもそもの家事を減らしているのが特長。例えば、帰宅時は玄関から近い家族共有のウォークインクロゼットにカバンや上着を置き、部屋着に… 続きを読む

開放的で自然光があふれる吹き抜けの大空間リビング、夫婦で料理がしやすく配膳や片付けに便利な横並びスタイルのキッチンなどラグジュアリーな空間設計とデザインのT邸。さらに子育てや仕事で忙しい毎日、少しでも家事の負担を軽減してリラックスできる時間を増やす、そんな願いも叶えている。動線や収納にこだわり、自分の事は自分でできるように工夫してそもそもの家事を減らしているのが特長。例えば、帰宅時は玄関から近い家族共有のウォークインクロゼットにカバンや上着を置き、部屋着に着替え、洗濯物はすぐそばの洗面室へ。洗面室はランドリールームも兼ねていて、洗濯が終了したらそのまま乾燥機へ。乾燥機をかけられないものはポールに掛ける。カウンターや引き出し式の収納もあり、カウンターで畳んだものはそのまま収納へ。ハンガーにかけるものは数歩先にあるウォークインクロゼットへ。一か所で家事が完結するので本当に家事がラクになった、とTさんご夫妻。また、暮らしてから全館空調の心地よさを実感。赤ちゃんもあまり汗をかかず、猛暑でも快適な住環境だとか。気密断熱性を高めた省エネ性能と太陽光発電やエネファームで創エネ性能も備えているので電気代もこわくない。日々のランニングコストを下げ、全館空調で四季を問わず快適に暮らせる家が完成した。

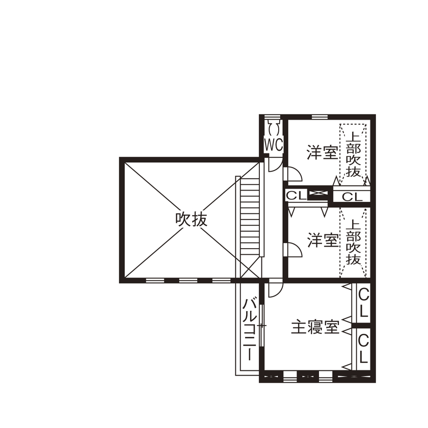
間取り図(4LDK+WIC)

1階
ゆめすみか(吉村一建設) 【4000万円台/大阪/堺市/間取り有/全館空調】家事シェア導線!仕事や子育てに忙しい毎日を助けてくれる家の間取り図(4LDK+WIC)1階
2階
ゆめすみか(吉村一建設) 【4000万円台/大阪/堺市/間取り有/全館空調】家事シェア導線!仕事や子育てに忙しい毎日を助けてくれる家の間取り図(4LDK+WIC)2階
この会社をもっと知りたくなったら
無料でお届け!まずはカタログ請求

内外観ギャラリー

この会社をもっと知りたくなったら
無料でお届け!まずはカタログ請求

この会社の他の建築実例を見る

この建築実例が気になった方へおすすめ

この建築実例の詳細情報

この建築実例を建てた店舗情報

住所 大阪府堺市中区福田495-1
問い合わせ
0120-022-441
  • ※営業時間内の対応となります。

  • ※お問い合わせの際は「SUUMO(スーモ)を見て」とお伝え下さい。

ホームページ この会社のホームページへ

ゆめすみか(吉村一建設)のコンテンツ一覧

お問い合わせ

カタログをもらう
総合カタログ
ゆめすみか(吉村一建設)のカタログ(ゆめすみかカタログ集)
ゆめすみかカタログ集
問合コード:1686840001

この会社が気になったら

カタログをもらう
総合カタログ
ゆめすみか(吉村一建設)のカタログ(ゆめすみかカタログ集)
ゆめすみかカタログ集
問合コード:1686840001

関連キーワード

ページトップへ戻る