KADeL

KADeL

受賞実績豊富な設計のプロが手掛けるデザイン住宅が「30坪・2000万円台」から
お気に入りに追加する
奈良県  Tさん
【3000万円台/奈良県/間取り図有】「A型スリットの家」 光と風を誘い込むカーテンのいらない中庭の家
  • 本体価格
    3,500万円3,999万円
    105.1万円120.1万円/坪
  • 延床面積
    110.13m2 (33.3坪)
    敷地面積
    163.75m2 (49.5坪)
    家族構成
    夫婦+子供2人
    竣工年月
    2016年3月
    工法
    木造軸組(高耐震ハイブリッド木造軸組工法)
  • 特徴
    耐震・免震・制震  |  2階建て  |  省エネ・創エネ・エコ(eco)  |  収納充実  |  家事がラク  |  高耐久  |  高気密・高断熱  |  …
この会社をもっと知りたくなったら
無料でお届け!まずはカタログ請求

施主Tさんのこだわり

施主さんQ&A

Q.依頼先の決め手は?A.思い切った提案をしてくれる会社を探していました。30社ほどお話を聞きましたが、センスと相性が一番良さそうだったので決めました。デザインに関して一番遊んでくれたのがKADeLでした。担当してくれた営業さんも、年齢が近く、親身に対応してくれました。Q.家づくりの要望・こだわりは?A.一番初めに伝えたのは「カーテンをしなくても外の視線が入らず、なおかつ明るい家」にしたいということでした。あとは、条件を出さずにどれだけ遊んでくれるかお任せ… 続きを読む

Q.依頼先の決め手は?A.思い切った提案をしてくれる会社を探していました。30社ほどお話を聞きましたが、センスと相性が一番良さそうだったので決めました。デザインに関して一番遊んでくれたのがKADeLでした。担当してくれた営業さんも、年齢が近く、親身に対応してくれました。Q.家づくりの要望・こだわりは?A.一番初めに伝えたのは「カーテンをしなくても外の視線が入らず、なおかつ明るい家」にしたいということでした。あとは、条件を出さずにどれだけ遊んでくれるかお任せしていました。初めのプランは遊び心のあるプランを期待していました。実用面でどうしても削らなくてはいけないということはありますが、初めから無難なデザインだと、それ以上遊べなくなると思います。Q.引越し後の暮らしは?A.窓を開けっぱなしにしても、人目を気にせず、風が心地いい中で過ごせるのはすごくよかったです。風が通ったとき、本当に気持ちいいです。2階の寝室まで風が通るので、この夏はエアコンを付けずに扇風機を付けて過ごしていました。Q.お気に入りの場所は?A.リビングのソファやダイニングテーブルに座りながら、お庭を眺めるときがお気に入りです。中庭を眺めながら食事をしているとき、この家を建ててよかったなぁと思います。

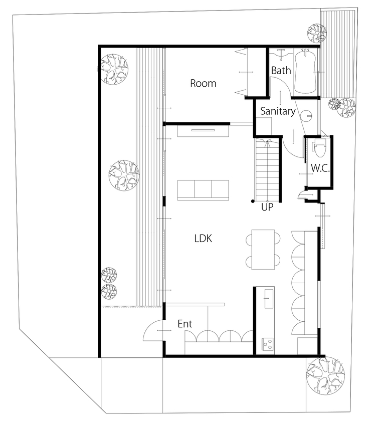
間取り図(4LDK)

1階
KADeL 【3000万円台/奈良県/間取り図有】「A型スリットの家」 光と風を誘い込むカーテンのいらない中庭の家の間取り図(4LDK)1階

2階
KADeL 【3000万円台/奈良県/間取り図有】「A型スリットの家」 光と風を誘い込むカーテンのいらない中庭の家の間取り図(4LDK)2階

この会社をもっと知りたくなったら
無料でお届け!まずはカタログ請求

内外観ギャラリー

この会社をもっと知りたくなったら
無料でお届け!まずはカタログ請求

この会社の他の建築実例を見る

この建築実例が気になった方へおすすめ

この建築実例の詳細情報

この建築実例を建てた店舗情報

店舗名 心斎橋店
住所 大阪府大阪市中央区南船場4丁目5-8 RASTER ON SHINSAIBASHI 5F
問い合わせ
0120-259-118
  • ※営業時間内の対応となります。

  • ※お問い合わせの際は「SUUMO(スーモ)を見て」とお伝え下さい。

ホームページ この会社のホームページへ

KADeLのコンテンツ一覧

お問い合わせ

カタログをもらう
カタログ一覧

この会社が気になったら

カタログをもらう

関連キーワード

この建築実例のその他の特徴
ページトップへ戻る