KADeL

KADeL

受賞実績豊富な設計のプロが手掛けるデザイン住宅が「30坪・2000万円台」から
お気に入りに追加する
大阪府藤井寺市  Nさん
【4000万円台/大阪府/30坪/間取り図有】「環境共生住宅」 光と風、大空間の2階LDK│四季を届ける眺望の家
KADeL 【4000万円台/大阪府/30坪/間取り図有】「環境共生住宅」 光と風、大空間の2階LDK│四季を届ける眺望の家の建築実例画像1
  • 本体価格
    4,100万円
    95.5万円/坪
  • 延床面積
    142.03m2 (42.9坪)
    敷地面積
    112.64m2 (34.0坪)
    家族構成
    2人
  • 竣工年月
    2007年
    工法
    木造軸組(高耐震ハイブリッド木造軸組工法)
この会社をもっと知りたくなったら
無料でお届け!まずはカタログ請求

施主Nさんのこだわり

五感を刺激するこれからの住宅を

コンセプトは「環境共生住宅」。家族と環境に優しい、どことなく“ほっ”とする住まい方。四季や光・風を意識した手法と、家族の「心」を癒す繊細な家を目指しました。自然だけが持つ不規則なリズム『「1/fのゆらぎ」の法則』を取り入れて、自然に心が満たされてゆく住宅です。癒しという部分では今回新たに「音」を住宅に取り入れて、一層のリラックス効果を図っています。具体的にはアップル社のi-podを住宅に組込み、専用ドックに差し込むだけですべての空間で心地良い音楽を聴くこと… 続きを読む

コンセプトは「環境共生住宅」。家族と環境に優しい、どことなく“ほっ”とする住まい方。四季や光・風を意識した手法と、家族の「心」を癒す繊細な家を目指しました。自然だけが持つ不規則なリズム『「1/fのゆらぎ」の法則』を取り入れて、自然に心が満たされてゆく住宅です。癒しという部分では今回新たに「音」を住宅に取り入れて、一層のリラックス効果を図っています。具体的にはアップル社のi-podを住宅に組込み、専用ドックに差し込むだけですべての空間で心地良い音楽を聴くことができる、「心」を癒す新しい試みをしています。これまでの風や光を感じ、触れる事ができる住宅から、聴覚まで刺激する、五感全てが満たされる「環境共生住宅」となっています。[30坪以上/間取り図有]

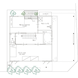
間取り図(2LDK)

1階
KADeL 【4000万円台/大阪府/30坪/間取り図有】「環境共生住宅」 光と風、大空間の2階LDK│四季を届ける眺望の家の間取り図(2LDK)1階
2階
KADeL 【4000万円台/大阪府/30坪/間取り図有】「環境共生住宅」 光と風、大空間の2階LDK│四季を届ける眺望の家の間取り図(2LDK)2階
この会社をもっと知りたくなったら
無料でお届け!まずはカタログ請求

内外観ギャラリー

この会社をもっと知りたくなったら
無料でお届け!まずはカタログ請求

この建築実例の担当者

住宅密集地に、とにかく明るく開放的な家にする為に2階LDKとしました。一階は夜使う寝室×3とトイレとガレージのみ。残りは全て二階へ。すると、大空間と眺望、光と風を手に入れた比類なき家となりました。

KADeLの担当者画像
取締役副社長
黒瀬 信幸
得意分野
建築設計
実績
100棟

この会社の他の建築実例を見る

この建築実例が気になった方へおすすめ

この建築実例の詳細情報

この建築実例を建てた店舗情報

店舗名 本社
住所 大阪府羽曳野市野々上2‐30‐1
問い合わせ
0120-259-118
  • ※営業時間内の対応となります。

  • ※お問い合わせの際は「SUUMO(スーモ)を見て」とお伝え下さい。

ホームページ この会社のホームページへ

KADeLのコンテンツ一覧

お問い合わせ

カタログをもらう
カタログ一覧

この会社が気になったら

カタログをもらう

関連キーワード

この建築実例のその他の特徴
ページトップへ戻る