秀光ビルド

秀光ビルド

価格・安全・性能の、3つの見えるでお客様の理想の家づくりを叶えます
お気に入りに追加する
兵庫県尼崎市  Sさん
【1000万円台/屋上のある家/延床面積30坪台/間取り図/おしゃれ】光と風を招き入れる緑の中庭がある家
  • 本体価格
    1,500万円1,999万円
    47.6万円63.4万円/坪
  • 延床面積
    104.32m2 (31.5坪)
    敷地面積
    -
    家族構成
    -
    竣工年月
    2015年4月
    工法
    木造軸組
  • 特徴
    耐震・免震・制震  |  2階建て  |  省エネ・創エネ・エコ(eco)  |  収納充実  |  家事がラク  |  高耐久  |  高気密・高断熱  |  …
この会社をもっと知りたくなったら
無料でお届け!まずはカタログ請求

施主Sさんのこだわり

キッチン横のパントリーや2階フリースペースなど、ゆとりある設計が魅力

家全体がとにかく明るくて開放的に感じるのは、あえてコの字に設計してシンボルツリーを植えた中庭のあるこの家の魅力だ。1階から2階までを貫くこの中庭空間から、光や風が招き入れられてくるからだ。さらに屋上は広いテラスにした。青空の下でバーベキューを楽しんだり、ゆっくり家族で星を眺めたりと、使い方はいろいろだ。LDKは19.2畳の広さを確保したうえに、キッチン横にはパントリーを設けて使い勝手は上々。2階ホールもフリースペースとして使えるようにゆったりと設計し、ミニ… 続きを読む

家全体がとにかく明るくて開放的に感じるのは、あえてコの字に設計してシンボルツリーを植えた中庭のあるこの家の魅力だ。1階から2階までを貫くこの中庭空間から、光や風が招き入れられてくるからだ。さらに屋上は広いテラスにした。青空の下でバーベキューを楽しんだり、ゆっくり家族で星を眺めたりと、使い方はいろいろだ。LDKは19.2畳の広さを確保したうえに、キッチン横にはパントリーを設けて使い勝手は上々。2階ホールもフリースペースとして使えるようにゆったりと設計し、ミニカウンターも設けた。また、住まいの随所に提案された間接照明が、空間に温かみを添えている。断熱は吹付け硬質ウレタンフォーム(アクアフォーム)が採用され、住み心地も快適だ。

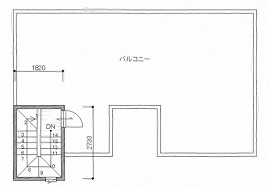
間取り図(3LDK)

1階
秀光ビルド 【1000万円台/屋上のある家/延床面積30坪台/間取り図/おしゃれ】光と風を招き入れる緑の中庭がある家の間取り図(3LDK)1階

2階
秀光ビルド 【1000万円台/屋上のある家/延床面積30坪台/間取り図/おしゃれ】光と風を招き入れる緑の中庭がある家の間取り図(3LDK)2階

屋上
秀光ビルド 【1000万円台/屋上のある家/延床面積30坪台/間取り図/おしゃれ】光と風を招き入れる緑の中庭がある家の間取り図(3LDK)屋上

この会社をもっと知りたくなったら
無料でお届け!まずはカタログ請求

内外観ギャラリー

この会社をもっと知りたくなったら
無料でお届け!まずはカタログ請求

この会社の他の建築実例を見る

この建築実例が気になった方へおすすめ

  • この建築実例のカタログをもらう

    秀光ビルドのカタログ画像
    総合カタログ
    住宅総合カタログ -これからの家づくりのスタンダード-
    秀光ビルドの住宅に関する総合カタログです。
  • この建築実例を検討時に見学したモデルハウス

    秀光ビルドのモデルハウス画像1
    秀光ビルドのモデルハウス画像2
    • 延床面積
      107.64m232.5坪)
    • 展示場名
      秀光ビルド 尼崎営業所
    • 所在地
      兵庫県尼崎市西長洲町1丁目8-13
    • 営業時間
      10:00~18:30(定休日:年末年始)
    • ナチュラル
    • シンプル
    • 家事ラク
    • 等身大
  • イベントに参加する

    秀光ビルドのイベント画像
    【秀光ビルド/モデルハウス見学会開催】秀光ビルドの家づくりを体感しませんか?マイホームづくりの参考となるお役立ち情報お伝えします【兵庫/住まいづくり館~加古川~】
    • キャンペーン情報
    • 設計・資金相談会
    • モデルハウス見学会
    • 土地相談会
    開催日
    【随時開催】ご都合のよい日程を教えてください。店舗の予約状況によっては、ご予約日時などを調整させていただく場合があります。予めご了承ください。
    開催場所
    兵庫県加古川市野口町長砂1166番地1

この建築実例の詳細情報

この建築実例を建てた店舗情報

店舗名 尼崎営業所
住所 兵庫県尼崎市西長洲町1丁目8番13号
問い合わせ
06-6481-0350
  • ※営業時間内の対応となります。

  • ※お問い合わせの際は「SUUMO(スーモ)を見て」とお伝え下さい。

ホームページ この会社のホームページへ

秀光ビルドのコンテンツ一覧

お問い合わせ

カタログをもらう
総合カタログ
秀光ビルドのカタログ(住宅総合カタログ -これからの家づくりのスタンダード-)
住宅総合カタログ -これからの家づくりのスタンダード-
問合コード:8309010002
イベントに参加する

この会社が気になったら

カタログをもらう
総合カタログ
秀光ビルドのカタログ(住宅総合カタログ -これからの家づくりのスタンダード-)
住宅総合カタログ -これからの家づくりのスタンダード-
問合コード:8309010002
イベントに参加する

関連キーワード

この建築実例のその他の特徴
ページトップへ戻る