タイコーアーキテクト

タイコーアーキテクト

実績3000棟が導く、洗練されたデザイン住宅 高断熱×パッシブデザイン
お気に入りに追加する
大阪府東大阪市  Kさん
【5114万円/間取り図あり/70坪台】2台駐車可能!緑豊かな中庭・バルコニーのあるインナーガレージハウス
  • 本体価格
    5,114万円
    107.0万円/坪
  • 延床面積
    158.00m2 (47.7坪)
    敷地面積
    239.23m2 (72.3坪)
    家族構成
    ご夫婦+子ども2人
    竣工年月
    2023年10月
    工法
    その他(独自認定工法等)(耐震構法SE構法)
  • 特徴
    耐震・免震・制震  |  2階建て  |  省エネ・創エネ・エコ(eco)  |  収納充実  |  家事がラク  |  高気密・高断熱  |  シンプルモダン  |  …
この会社をもっと知りたくなったら
無料でお届け!まずはカタログ請求

施主Kさんのこだわり

要望・こだわりをすべて詰め込んで「家にずっといたい!」と思える家に

「ビルトインガレージ」「大きな吹き抜け」「たっぷりの収納」を大きな柱として家づくりを進めた。外観は軒を出したりガレージ部分をボコッと押し出したりなど立体感を持たせた形状、素材は重厚感を感じられるタイルなどを採用しモダンでオシャレなガレージハウスに仕上がった。高く壁を立ち上げたことでプライバシーが守られた中庭は南側に配置されており、中庭に面したLDKの壁に大きな開口を設けることで、明るく開放感のある空間になった。また趣味である筋力トレーニングやサウナを家の中… 続きを読む

「ビルトインガレージ」「大きな吹き抜け」「たっぷりの収納」を大きな柱として家づくりを進めた。外観は軒を出したりガレージ部分をボコッと押し出したりなど立体感を持たせた形状、素材は重厚感を感じられるタイルなどを採用しモダンでオシャレなガレージハウスに仕上がった。高く壁を立ち上げたことでプライバシーが守られた中庭は南側に配置されており、中庭に面したLDKの壁に大きな開口を設けることで、明るく開放感のある空間になった。また趣味である筋力トレーニングやサウナを家の中で楽しむことが出来るように2階に専用の部屋を配置した。家の中で生活・趣味・団欒などすべてが解決するので家をでなくても快適で楽しい暮らしを実現できている。

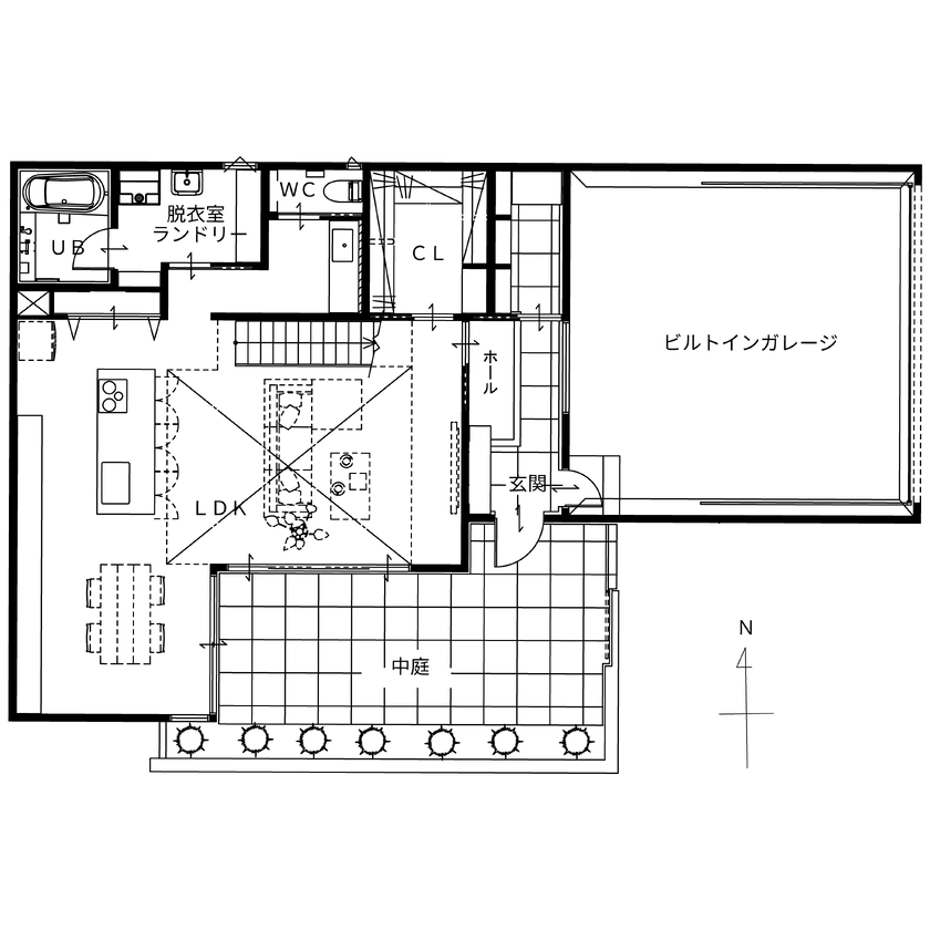
間取り図(4LDK)

1階
タイコーアーキテクト 【5114万円/間取り図あり/70坪台】2台駐車可能!緑豊かな中庭・バルコニーのあるインナーガレージハウスの間取り図(4LDK)1階

2台駐車可能なシャッター付きビルトインガレージ、LDKに隣接した大きな中庭、どこにいても中庭の緑を楽しむことができるLDKをメインとした1階。水回りを横に1列並べているので家事がしやすい。

2台駐車可能なシャッター付きビルトインガレージ、LDKに隣接した大きな中庭、どこにいても中庭の緑を楽しむことができるLDKをメインとした1階。水回りを横に1列並べているので家事がしやすい。

2階
タイコーアーキテクト 【5114万円/間取り図あり/70坪台】2台駐車可能!緑豊かな中庭・バルコニーのあるインナーガレージハウスの間取り図(4LDK)2階

2階は広々としたホールと部屋を4つ配置している。ホールはテレビやゲーミングテーブル&チェア、ソファなどを置いてセカンドリビングのように活用している。

2階は広々としたホールと部屋を4つ配置している。ホールはテレビやゲーミングテーブル&チェア、ソファなどを置いてセカンドリビングのように活用している。

この会社をもっと知りたくなったら
無料でお届け!まずはカタログ請求

内外観ギャラリー

この会社をもっと知りたくなったら
無料でお届け!まずはカタログ請求

施主Kさんがこの会社に決めた理由

タイコーの家で育ったからどうしてもタイコーで建てたかった

ご両親もタイコーで家を2軒購入していたため、タイコーの家の住み心地の良さを知っていたオーナー様。また、タイコーが長年東大阪でつくりあげてきた街並みを見る限りどの家もオシャレだったので必ずタイコーで家を建てたいと思っていた。チームワークの良さも家づくりを依頼するきっかけになった。アフターメンテナンスも迅速かつ丁寧で安心して住むことができているとのこと。

ご両親もタイコーで家を2軒購入していたため、タイコーの家の住み心地の良さを知っていたオーナー様。また、タイコーが長年東大阪でつくりあげてきた街並みを見る限りどの家もオシャレだったので必ずタイコーで家を建てたいと思っていた。チームワークの良さも家づくりを依頼するきっかけになった。アフターメンテナンスも迅速かつ丁寧で安心して住むことができているとのこと。

この建築実例の担当者より

モダンですが遊び心もあふれる上質な空間に仕上がりました。

中庭、ビルトインガレージ、大きな吹き抜けなど人気の要素をバランスよくまとめたお家です。モダンですが遊び心もあふれる上質な空間に仕上がりました。建築前に室温シミュレーションを行い、エアコンをどのようにまわすべきか検討したおかげで夏場は大きい吹抜けがあってもエアコン1台、27℃設定で快適にお過ごしいただいております。(自社調べ)また冬は晴れた日は陽の光だけで十分室温が高く、温かくお過ごしいただけています。軒が出ていてボックスが組み合わせたような外観。中庭の壁の… 続きを読む

中庭、ビルトインガレージ、大きな吹き抜けなど人気の要素をバランスよくまとめたお家です。モダンですが遊び心もあふれる上質な空間に仕上がりました。建築前に室温シミュレーションを行い、エアコンをどのようにまわすべきか検討したおかげで夏場は大きい吹抜けがあってもエアコン1台、27℃設定で快適にお過ごしいただいております。(自社調べ)また冬は晴れた日は陽の光だけで十分室温が高く、温かくお過ごしいただけています。軒が出ていてボックスが組み合わせたような外観。中庭の壁の上から植栽が見えたり、ガレージ前や玄関脇にも植栽を設けて小さいスペースながら外部に向けても豊かな緑地帯を設けています。玄関前には格子戸があり夜になるともれてくる室内の光が幻想的な雰囲気に。中庭には壁と植栽を引き立てるライン照明も設け、昼も夜も楽しめる家になりました。

タイコーアーキテクトの担当者画像
設計部設計課
前田 良
得意分野
高性能で快適かつデザイン性の高い設計

この会社の他の建築実例を見る

この建築実例が気になった方へおすすめ

この建築実例の詳細情報

この建築実例を建てた店舗情報

住所 大阪府東大阪市鴻池本町6番32号
問い合わせ
0120-01-8500
  • ※営業時間内の対応となります。

  • ※お問い合わせの際は「SUUMO(スーモ)を見て」とお伝え下さい。

ホームページ この会社のホームページへ

タイコーアーキテクトのコンテンツ一覧

お問い合わせ

カタログをもらう
総合カタログ
タイコーアーキテクトのカタログ(コンセプトブック&施工事例集)
コンセプトブック&施工事例集
問合コード:1517430002
お問い合わせ先
0120-01-8500
  • ※営業時間内の対応となります。

  • ※お問い合わせの際は「SUUMO(スーモ)を見て」とお伝え下さい。

  • 大阪府東大阪市鴻池本町6番32号

  • 定休日:水曜日

この会社のホームページへ

この会社が気になったら

カタログをもらう
総合カタログ
タイコーアーキテクトのカタログ(コンセプトブック&施工事例集)
コンセプトブック&施工事例集
問合コード:1517430002

関連キーワード

ページトップへ戻る