タイコーアーキテクト

タイコーアーキテクト

実績3000棟が導く、洗練されたデザイン住宅 高断熱×パッシブデザイン
お気に入りに追加する
大阪府寝屋川市  Kさん
【4925万円/間取り図あり/70坪台】2台駐車可能!日当たり&開放感抜群のビルトインガレージハウス
  • 本体価格
    4,925万円
    68.3万円/坪
  • 延床面積
    238.49m2 (72.1坪)
    敷地面積
    469.76m2 (142.1坪)
    家族構成
    夫婦+子ども3人
    竣工年月
    2022年10月
    工法
    その他(独自認定工法等)(耐震構法SE構法)
  • 特徴
    耐震・免震・制震  |  2階建て  |  省エネ・創エネ・エコ(eco)  |  家事がラク  |  高気密・高断熱  |  シンプルモダン  |  …
この会社をもっと知りたくなったら
無料でお届け!まずはカタログ請求

施主Kさんのこだわり

愛車を保管するためのインナーガレージと開放感のあるLDK

計画地は南向き旗竿形状の変形地。南に建つ2階建住宅が落とす影をいかに避けて冬場の日射取得をするのか検討しました。ギリギリのラインまで北側に建物を寄せることで1階は5.5時間、2階は8時間日照を確保。建物南面にこれでもかというほど開口を設けているので視覚的に広々と感じるだけではなく、冬場晴れた日には無暖房でも太陽の光を取り込み、室内がぽかぽかあったかいです。オーナー様はお車の整備が趣味とのことで、シャッター付きインナーガレージには2台駐車ができるだけでなく整… 続きを読む

計画地は南向き旗竿形状の変形地。南に建つ2階建住宅が落とす影をいかに避けて冬場の日射取得をするのか検討しました。ギリギリのラインまで北側に建物を寄せることで1階は5.5時間、2階は8時間日照を確保。建物南面にこれでもかというほど開口を設けているので視覚的に広々と感じるだけではなく、冬場晴れた日には無暖房でも太陽の光を取り込み、室内がぽかぽかあったかいです。オーナー様はお車の整備が趣味とのことで、シャッター付きインナーガレージには2台駐車ができるだけでなく整備用具などを収納できるスペースも確保しています。

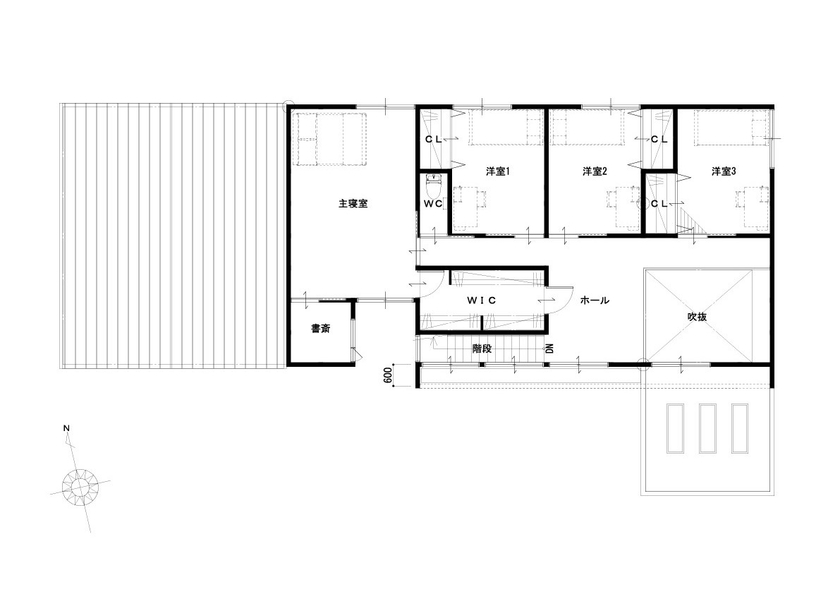
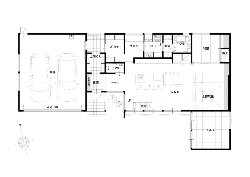
間取り図(4LDK)

1階
タイコーアーキテクト 【4925万円/間取り図あり/70坪台】2台駐車可能!日当たり&開放感抜群のビルトインガレージハウスの間取り図(4LDK)1階

2階
タイコーアーキテクト 【4925万円/間取り図あり/70坪台】2台駐車可能!日当たり&開放感抜群のビルトインガレージハウスの間取り図(4LDK)2階

この会社をもっと知りたくなったら
無料でお届け!まずはカタログ請求

内外観ギャラリー

この会社をもっと知りたくなったら
無料でお届け!まずはカタログ請求

この会社の他の建築実例を見る

この建築実例が気になった方へおすすめ

この建築実例の詳細情報

この建築実例を建てた店舗情報

住所 大阪府東大阪市鴻池本町6番32号
問い合わせ
0120-01-8500
  • ※営業時間内の対応となります。

  • ※お問い合わせの際は「SUUMO(スーモ)を見て」とお伝え下さい。

ホームページ この会社のホームページへ

タイコーアーキテクトのコンテンツ一覧

お問い合わせ

カタログをもらう
総合カタログ
タイコーアーキテクトのカタログ(コンセプトブック&施工事例集)
コンセプトブック&施工事例集
問合コード:1517430002
お問い合わせ先
0120-01-8500
  • ※営業時間内の対応となります。

  • ※お問い合わせの際は「SUUMO(スーモ)を見て」とお伝え下さい。

  • 大阪府東大阪市鴻池本町6番32号

  • 定休日:水曜日

この会社のホームページへ

この会社が気になったら

カタログをもらう
総合カタログ
タイコーアーキテクトのカタログ(コンセプトブック&施工事例集)
コンセプトブック&施工事例集
問合コード:1517430002

関連キーワード

ページトップへ戻る