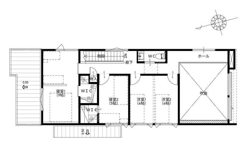
今回は南北に長い土地でのご建築。建物の間口は約5.5m、奥行きは約16mとなっています。時間によっては東西の建物が影をつくるものの、敷地前方は比較的陽当たりが良く、日照シミュレーションによると1日を通して直射日光が入ってくることがわかっていました。外壁後退ラインを守りつつ北に建物、南に駐車スペース・庭を確保することで直射日光が得られるように配置計画をし、両隣の家の影をかわしつつ、南面に集熱窓を取れるような計画にしました。また楽器を演奏することが好きな奥さま… 続きを読む
今回は南北に長い土地でのご建築。建物の間口は約5.5m、奥行きは約16mとなっています。時間によっては東西の建物が影をつくるものの、敷地前方は比較的陽当たりが良く、日照シミュレーションによると1日を通して直射日光が入ってくることがわかっていました。外壁後退ラインを守りつつ北に建物、南に駐車スペース・庭を確保することで直射日光が得られるように配置計画をし、両隣の家の影をかわしつつ、南面に集熱窓を取れるような計画にしました。また楽器を演奏することが好きな奥さま、フランス料理をつくることが趣味のご主人の要望に合わせて、趣味に没頭できる空間構成になりました。
南面にたっぷりと設けた開口からは陽の光・熱が降り注ぎ、冬は自然の力で室内がポカポカに。夏は日射が入りすぎてしま… 続きを読む
南面にたっぷりと設けた開口からは陽の光・熱が降り注ぎ、冬は自然の力で室内がポカポカに。夏は日射が入りすぎてしまうため外部遮蔽ブラインドを設置し、日射コントロールをすることで一年中快適に過ごせる。
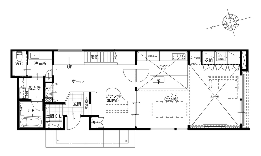
楽器を演奏される奥さまのためにグランドピアノが置かれた広いホール。サンワカンパニーのクアドロスリムを採用し、開… 続きを読む
楽器を演奏される奥さまのためにグランドピアノが置かれた広いホール。サンワカンパニーのクアドロスリムを採用し、開放的ではあるけれどもLDKとホールを区切る。LDKに入るための扉は神谷コーポレーションのカエサルを採用。どちらから押しても開くようになっており、両手がふさがっていても体で押して開くことができる。お子様を抱っこしたり、お買い物袋を両手に持っていても入室にストレスがなく採用してよかったとのこと。
| 商品名 | - |
| 部材・設備 | - |
| 商品名 | - |
| 部材・設備 | - |
| 延床面積 | 142.77m2 (43.1坪) |
| 敷地面積 | 220.45m2 (66.6坪) |
| 工法 | その他(独自認定工法等)(耐震構法SE構法) |
| 本体価格 | 4,919万円 |
| 竣工年月 | 2023年4月 |
| 住所 | 大阪府東大阪市鴻池本町6番32号 |
| 問い合わせ | |
| ホームページ | この会社のホームページへ |
※営業時間内の対応となります。
※お問い合わせの際は「SUUMO(スーモ)を見て」とお伝え下さい。
大阪府東大阪市鴻池本町6番32号
定休日:水曜日
道路面にどっしりと構えた門型フレームがかっこいい、重厚感のある外観。LDK部分の南面に大きく開口を設けているが、シャッター付きの門型フレームのおかげで道路から室内の様子は見えることもなく開放的に過ごせる。
大きな吹き抜けの下にリビングを配置することで開放感抜群。テレビ背面壁はタイル貼り+間接照明の組み合わせで上質な空間に仕上がった。
南面にたっぷりと設けた開口からは陽の光・熱が降り注ぎ、冬は自然の力で室内がポカポカに。夏は日射が入りすぎてしまうため外部遮蔽ブラインドを設置し、日射コントロールをすることで一年中快適に過ごせる。
リビングから見たキッチン・ダイニング。天井高を抑えることで壁を設けずともやんわりと空間を区切ることができる。
料理を楽しめるようにこだわりを詰め込んだクチーナのオーダーキッチン。キッチン下部や天井の間接照明など、照明計画にも力を入れている。
ビルトインオーブンやフードウォーマーを設置したりと色々なこだわりがあるが、収納扉が開いた後綺麗に棚の中へおさまるようになっているのが推しポイントとのこと。天板やカップボード背面壁には耐熱性・耐水性・耐傷性に優れているなど高機能なウルトラセラミックストーンのケリヤを採用。
ダイニングは海外製の家具やペンダントライトで上品な空間に。奥の玄関ホール(ピアノ室)まで間接照明を伸ばすことにより視覚的に空間の広がりを感じさせる。
楽器を演奏される奥さまのためにグランドピアノが置かれた広いホール。サンワカンパニーのクアドロスリムを採用し、開放的ではあるけれどもLDKとホールを区切る。LDKに入るための扉は神谷コーポレーションのカエサルを採用。どちらから押しても開くようになっており、両手がふさがっていても体で押して開くことができる。お子様を抱っこしたり、お買い物袋を両手に持っていても入室にストレスがなく採用してよかったとのこと。
北側の玄関へと続くアプローチ。足元を照らす間接照明によって階段が浮いているかのように見える。
門型フレームの奥にはカーポートを設置。洗車をしやすいように工夫を凝らした。