クレバリーホーム

クレバリーホーム

人生のパートナーとして、想いを満たす“ひとクラス上の住まい”をカタチに
お気に入りに追加する
新潟県  Aさん
【4000万円~4499万円/ガレージ/間取図有】「これぞ、大人の住処」。インナーガレージ+2階リビングの家
  • 本体価格
    4,000万円
    79.0万円/坪
  • 延床面積
    167.50m2 (50.6坪)
    敷地面積
    -
    家族構成
    夫婦
    竣工年月
    2015年4月
    工法
    木造軸組(プレミアム・ハイブリッド構法)
  • 特徴
    耐震・免震・制震  |  2階建て  |  省エネ・創エネ・エコ(eco)  |  収納充実  |  家事がラク  |  高耐久  |  高気密・高断熱  |  …
この会社をもっと知りたくなったら
無料でお届け!まずはカタログ請求

施主Aさんのこだわり

「リビングやバルコニーで寛ぎ、ガレージライフを楽しむ住まいをリクエスト」

ブラックを基調にホワイトの縦ラインを入れることで、スタイリッシュな外観デザインを実現したAさんの住まい。ここには、ご夫妻の夢やこだわりがたくさん詰め込まれている。まず、インナーガレージ。バイクや自転車を整備するための部品や工具を整理整頓するための棚、シンク付きの水栓など、ガレージには作業をしやすくするためのアイデアを満載。豊かなガレージライフを楽しめる空間を実現している。室内に目を移すと、特徴的なのはワンルーム構成の2階リビングだ。勾配天井の開放感溢れる空… 続きを読む

ブラックを基調にホワイトの縦ラインを入れることで、スタイリッシュな外観デザインを実現したAさんの住まい。ここには、ご夫妻の夢やこだわりがたくさん詰め込まれている。まず、インナーガレージ。バイクや自転車を整備するための部品や工具を整理整頓するための棚、シンク付きの水栓など、ガレージには作業をしやすくするためのアイデアを満載。豊かなガレージライフを楽しめる空間を実現している。室内に目を移すと、特徴的なのはワンルーム構成の2階リビングだ。勾配天井の開放感溢れる空間は、ダークブラウンを基調にコーディネートされ、落ち着いた雰囲気の中、ゆったり寛ぐことができる。さらに、スキップフロアならではの隠れ家的な和室などを設置。スキップフロアの下部に設けた大収納スペース「MONOピット」は、家中の荷物を一手に引き受けているという。動線に関しても「ぐるりと回遊できるキッチンと、サニタリーからバルコニーへ一直線につながる洗濯動線が便利ですね」と夫人に好評だ。庭の代わりに広々とした空間を確保したバルコニーも、アウトドアリビングとして自分たちだけの空、光、風を楽しむことができる。ご夫妻の様々な想いを集約した住まいは、まさに「大人の住処」と言えるだろう。

間取り図(3LDK)

1階
クレバリーホーム 【4000万円~4499万円/ガレージ/間取図有】「これぞ、大人の住処」。インナーガレージ+2階リビングの家の間取り図(3LDK)1階

駐車スペースとは別に、広々としたインナーガレージを確保した1階。インナーガレージから玄関へ行ける動線も便利。収納力たっぷりのシューズインクロゼット、ウォークインクローゼット付きの主寝室などを配したプライベートゾーンだ

駐車スペースとは別に、広々としたインナーガレージを確保した1階。インナーガレージから玄関へ行ける動線も便利。収納力たっぷりのシューズインクロゼット、ウォークインクローゼット付きの主寝室などを配したプライベートゾーンだ

2階
クレバリーホーム 【4000万円~4499万円/ガレージ/間取図有】「これぞ、大人の住処」。インナーガレージ+2階リビングの家の間取り図(3LDK)2階

2階は、ワンルーム構成のリビング・ダイニング・キッチンと水まわりに加え、スキップフロアの下部を利用して「MONOピット」を配置。これにより空間をすっきり保つことができるのが魅力。スキップフロアは和室となっており、隠れ家的な雰囲気も。回遊できるキッチンや、サニタリーからバルコニーへ一直線につながる洗濯… 続きを読む

2階は、ワンルーム構成のリビング・ダイニング・キッチンと水まわりに加え、スキップフロアの下部を利用して「MONOピット」を配置。これにより空間をすっきり保つことができるのが魅力。スキップフロアは和室となっており、隠れ家的な雰囲気も。回遊できるキッチンや、サニタリーからバルコニーへ一直線につながる洗濯動線など使い勝手も追求している。庭の代わりに広々としたバルコニーも設けた

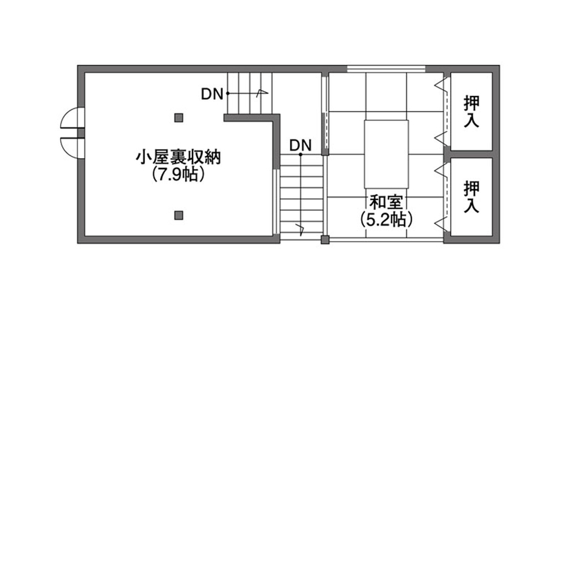
小屋裏
クレバリーホーム 【4000万円~4499万円/ガレージ/間取図有】「これぞ、大人の住処」。インナーガレージ+2階リビングの家の間取り図(3LDK)小屋裏

7.9帖の広さを確保した小屋裏収納。季節用品など、使用頻度の低いモノを収納するのに重宝する。多目的に使える和室も設置した

7.9帖の広さを確保した小屋裏収納。季節用品など、使用頻度の低いモノを収納するのに重宝する。多目的に使える和室も設置した

この会社をもっと知りたくなったら
無料でお届け!まずはカタログ請求

内外観ギャラリー

この会社をもっと知りたくなったら
無料でお届け!まずはカタログ請求

施主Aさんがこの会社に決めた理由

「コストパフォーマンスがよく、予算内でこだわりを実現できるのが決め手でした」

「自分たちがつくりたい家のイメージを汲み取っていただいたこと、コストパフォーマンスがよく、予算内で想いを実現できることがクレバリーホームさんを選んだ理由です」とAさん。ご夫妻のイメージに加え、プロならではの提案があったからこそ、「大満足のマイホームの実現につながった」と感じているという。「少しエアコンをかけるだけで快適な室温になるので、断熱性の高さも肌で実感しています」と語るAさんだ。

「自分たちがつくりたい家のイメージを汲み取っていただいたこと、コストパフォーマンスがよく、予算内で想いを実現できることがクレバリーホームさんを選んだ理由です」とAさん。ご夫妻のイメージに加え、プロならではの提案があったからこそ、「大満足のマイホームの実現につながった」と感じているという。「少しエアコンをかけるだけで快適な室温になるので、断熱性の高さも肌で実感しています」と語るAさんだ。

この建築実例の担当者より

「楽しんで家づくりをするご夫妻を、プロの視点からサポートしていきました」

事前にしっかりと、家づくりについて下調べをされており、「こういう家で暮らしたい」とつくりたい家のイメージを明確に持たれていたA様ご夫妻。ひとつひとつにこだわりながら、家づくりを楽しまれている様子がこちらにも伝わってきました。こだわりにお応えするために、プロの視点でアドバイスを行っていきましたが、素敵な住まいが完成したのは、何よりもご夫妻のセンスの良さだと実感しています。

事前にしっかりと、家づくりについて下調べをされており、「こういう家で暮らしたい」とつくりたい家のイメージを明確に持たれていたA様ご夫妻。ひとつひとつにこだわりながら、家づくりを楽しまれている様子がこちらにも伝わってきました。こだわりにお応えするために、プロの視点でアドバイスを行っていきましたが、素敵な住まいが完成したのは、何よりもご夫妻のセンスの良さだと実感しています。

クレバリーホームの担当者画像
クレバリーホーム新潟西店
斎藤 卓弥

この会社の他の建築実例を見る

この建築実例が気になった方へおすすめ

この建築実例の詳細情報

クレバリーホームのコンテンツ一覧

お問い合わせ

カタログをもらう
カタログ一覧
※1社で請求できるカタログは3冊までです。

この会社が気になったら

カタログをもらう

関連キーワード

この建築実例のその他の特徴
ページトップへ戻る