竹内建設

竹内建設

北海道・札幌の暮らしにきらめきを。住む人の声が教えてくれる、心から楽しむ毎日
お気に入りに追加する
北海道札幌市豊平区  Tさん
【札幌市/2000万円台/シンプルモダン】とことん北海道にこだわった夫婦のコンパクトな家
竹内建設 【札幌市/2000万円台/シンプルモダン】とことん北海道にこだわった夫婦のコンパクトな家の建築実例画像1
  • 本体価格
    2,000万円2,499万円
    76.1万円95.1万円/坪
  • 延床面積
    86.95m2 (26.3坪)
    敷地面積
    182.00m2 (55.0坪)
    家族構成
    夫婦
  • 竣工年月
    2022年2月
    工法
    その他(独自認定工法等)(システムTK-IV)
この会社をもっと知りたくなったら
無料でお届け!まずはカタログ請求

施主Tさんのこだわり

とことん 北海道に こだわる

お子さんが手を離れたあとの、ご夫婦お2人のお住まいです。北海道にこだわり、北海道の素材と技術でつくられたこのお家。細かな設計部分にも、たくさんのこだわりが詰まっています。真っ黒な杉板を使った外壁。玄関から入ると、シンプルな色合いの中で床の杉板の木目が美しい印象です。リビングに入ると大きな窓からは明るい光が。毎日のご夫婦のこれからの暮らしを、明るく照らしてくれることでしょう。コンパクトながらも、必要なところには必要なスペースを設けたこのお家。住まいは広さだけ… 続きを読む

お子さんが手を離れたあとの、ご夫婦お2人のお住まいです。北海道にこだわり、北海道の素材と技術でつくられたこのお家。細かな設計部分にも、たくさんのこだわりが詰まっています。真っ黒な杉板を使った外壁。玄関から入ると、シンプルな色合いの中で床の杉板の木目が美しい印象です。リビングに入ると大きな窓からは明るい光が。毎日のご夫婦のこれからの暮らしを、明るく照らしてくれることでしょう。コンパクトながらも、必要なところには必要なスペースを設けたこのお家。住まいは広さだけじゃない、そう思わせてくれる住まいになりました。

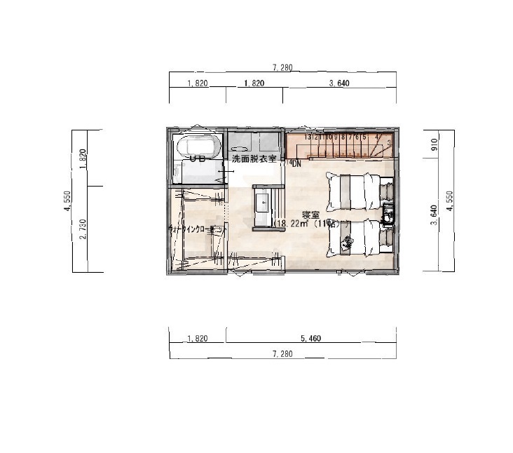
間取り図(1LDK)

1階
竹内建設 【札幌市/2000万円台/シンプルモダン】とことん北海道にこだわった夫婦のコンパクトな家の間取り図(1LDK)1階
2階
竹内建設 【札幌市/2000万円台/シンプルモダン】とことん北海道にこだわった夫婦のコンパクトな家の間取り図(1LDK)2階
この会社をもっと知りたくなったら
無料でお届け!まずはカタログ請求

内外観ギャラリー

この会社をもっと知りたくなったら
無料でお届け!まずはカタログ請求

この会社の他の建築実例を見る

この建築実例が気になった方へおすすめ

この建築実例の詳細情報

この建築実例を建てた店舗情報

店舗名 竹内建設
住所 北海道札幌市豊平区月寒東1条18丁目1-35
問い合わせ
011-851-2430
  • ※営業時間内の対応となります。

  • ※お問い合わせの際は「SUUMO(スーモ)を見て」とお伝え下さい。

ホームページ この会社のホームページへ

竹内建設のコンテンツ一覧

お問い合わせ

カタログをもらう
総合カタログ
竹内建設のカタログ(I’LLUME(イルム) デザイン&コンセプトカタログ )
I’LLUME(イルム) デザイン&コンセプトカタログ
問合コード:1054260001
イベントに参加する
お問い合わせ先
011-851-2430
  • ※営業時間内の対応となります。

  • ※お問い合わせの際は「SUUMO(スーモ)を見て」とお伝え下さい。

竹内建設
  • 北海道札幌市豊平区月寒東1条18丁目1-35

  • 定休日:定休水曜※GW,お盆,年末年始休業期間あり

この会社のホームページへ

この会社が気になったら

カタログをもらう
総合カタログ
竹内建設のカタログ(I’LLUME(イルム) デザイン&コンセプトカタログ )
I’LLUME(イルム) デザイン&コンセプトカタログ
問合コード:1054260001
イベントに参加する

関連キーワード

この建築実例のその他の特徴
2人暮らし  |  洋風  |  開放感  |  落ち着き  |  かっこいい
ページトップへ戻る