アイダ設計

アイダ設計

心とお財布にゆとりが生まれる、999万円×高品質×自由設計の家。建て替えも応援!
お気に入りに追加する
群馬県伊勢崎市  Oさん
【間取り図有/30坪台/4LDK/収納】自由設計と明瞭さが決め手!最低限と考えてた予算内で理想の家を実現
  • 本体価格
    -
  • 延床面積
    119.65m2 (36.1坪)
    敷地面積
    417.61m2 (126.3坪)
    家族構成
    -
    竣工年月
    -
    工法
    木造軸組
  • 特徴
    耐震・免震・制震  |  2階建て  |  省エネ・創エネ・エコ(eco)  |  家事がラク  |  高耐久  |  高気密・高断熱  |  高耐火  |  …
この会社をもっと知りたくなったら
無料でお届け!まずはカタログ請求

施主Oさんのこだわり

「自由設計」をフル活用し、「建てて良かった」としか思えない大満足の家づくりを実現

ハウスメーカー選びの決め手になった「自由設計」を、フル活用した家づくりができたと思っています。たとえば玄関にはシューズクローク、主寝室にウォークインクローゼット、キッチンにパントリーなどと、収納スペースは豊富にラインナップ。リビング階段の設置やキッチンから洗面所は近い場所に配置したのは、私たちの要望そのままに実現。2階には3人の子どもたちそれぞれの子ども部屋と、トイレ・洗面台も設置した上に、洗濯物がたっぷり干せる広々としたベランダも設置。オプションではトイ… 続きを読む

ハウスメーカー選びの決め手になった「自由設計」を、フル活用した家づくりができたと思っています。たとえば玄関にはシューズクローク、主寝室にウォークインクローゼット、キッチンにパントリーなどと、収納スペースは豊富にラインナップ。リビング階段の設置やキッチンから洗面所は近い場所に配置したのは、私たちの要望そのままに実現。2階には3人の子どもたちそれぞれの子ども部屋と、トイレ・洗面台も設置した上に、洗濯物がたっぷり干せる広々としたベランダも設置。オプションではトイレをタンクレスにしたり、お風呂の浴槽をいくつかの中から選ばせてもらったりと、かなり自由にやらせてもらいました。最初は最低限の家でいいと考えていましたが、提示された見積もりを見たら「これくらいの価格でできるなら、もっといろいろお願いしてもいいのではないか」と思って、いろいろわがままを言わせてもらったおかげで、「建てて良かった」としか思えない大満足の家になりました。

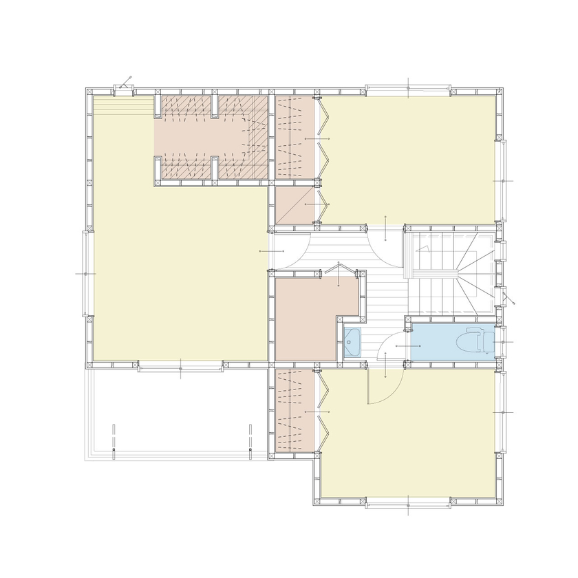
間取り図(4LDK)

1階
アイダ設計 【間取り図有/30坪台/4LDK/収納】自由設計と明瞭さが決め手!最低限と考えてた予算内で理想の家を実現の間取り図(4LDK)1階

2階
アイダ設計 【間取り図有/30坪台/4LDK/収納】自由設計と明瞭さが決め手!最低限と考えてた予算内で理想の家を実現の間取り図(4LDK)2階

この会社をもっと知りたくなったら
無料でお届け!まずはカタログ請求

内外観ギャラリー

この会社をもっと知りたくなったら
無料でお届け!まずはカタログ請求

施主Oさんがこの会社に決めた理由

自由設計であることと同時に、何にいくらかかるか、コストを明確にしてくれたから

Oさんご夫妻がアイダ設計に決めた理由は、「自由設計」であることと同時に「価格が明瞭だった」ことが挙げられる、という。「30歳になるまでに家を建てたい、という希望がありました。住宅展示場を回っている中でアイダ設計のモデルハウスにたどり着き、営業担当の方から話を聞かせてもらったところ、何にいくらかかるのか、コストのことをはっきり言ってくださった。それなら自由設計で家を建てるのも安心だと思えたのが大きかったですね」(Oさんご夫妻のご主人)。当初は最低限の家でいい… 続きを読む

Oさんご夫妻がアイダ設計に決めた理由は、「自由設計」であることと同時に「価格が明瞭だった」ことが挙げられる、という。「30歳になるまでに家を建てたい、という希望がありました。住宅展示場を回っている中でアイダ設計のモデルハウスにたどり着き、営業担当の方から話を聞かせてもらったところ、何にいくらかかるのか、コストのことをはっきり言ってくださった。それなら自由設計で家を建てるのも安心だと思えたのが大きかったですね」(Oさんご夫妻のご主人)。当初は最低限の家でいいと考えていたというが、その条件で提示された見積もりを提示されると「もっといろいろ要望を出しても、価格的に大丈夫そうだ」と感じたそうで、そこから豊富な収納スペースの設置であるとか、たっぷり洗濯物が干せる広々としたベランダといった細かな要望を出していったのだとか。「自由設計だからと思って、あれもいい、これもいい、とわがままを言っていたら、理想の家ができ上がった。アイダ設計で建ててよかったとしか思えないくらい、大満足です」(Oさんご夫妻の奥様)

この会社の他の建築実例を見る

この建築実例が気になった方へおすすめ

この建築実例の詳細情報

アイダ設計のコンテンツ一覧

お問い合わせ

カタログをもらう
カタログ一覧

この会社が気になったら

カタログをもらう

関連キーワード

この建築実例のその他の特徴
ページトップへ戻る