アイダ設計

アイダ設計

心とお財布にゆとりが生まれる、999万円×高品質×自由設計の家。建て替えも応援!
お気に入りに追加する
静岡県沼津市  Fさん
【間取り図有/30坪台/収納充実/ペニンシュラキッチン】19帖の広々リビングは家族の憩いのスペース
  • 本体価格
    -
  • 延床面積
    111.92m2 (33.8坪)
    敷地面積
    182.15m2 (55.1坪)
    家族構成
    -
    竣工年月
    -
    工法
    木造軸組
  • 特徴
    耐震・免震・制震  |  2階建て  |  省エネ・創エネ・エコ(eco)  |  収納充実  |  家事がラク  |  高耐久  |  高気密・高断熱  |  …
この会社をもっと知りたくなったら
無料でお届け!まずはカタログ請求

施主Fさんのこだわり

階段のあるリビングや広いキッチンなど、家族がゆったり過ごせる家づくりにこだわった

「家族がみんな一緒に、ゆったりと過ごせる家にしたい」という妻の希望をとことん叶えたいと思って、細部までこだわった家づくりができました。一番のこだわりは、階段のあるリビングです。子どもたちが必ずリビングを通ってから自分たちの部屋に行く導線になっているので、リビングで必ず家族みんなが顔を合わせられるようになっています。それと「ゴロンとしたい」という妻の希望を受けて、和室もつくりました。さらにはキッチンは、前に住んでいたアパートのキッチンが手狭だったため、とにか… 続きを読む

「家族がみんな一緒に、ゆったりと過ごせる家にしたい」という妻の希望をとことん叶えたいと思って、細部までこだわった家づくりができました。一番のこだわりは、階段のあるリビングです。子どもたちが必ずリビングを通ってから自分たちの部屋に行く導線になっているので、リビングで必ず家族みんなが顔を合わせられるようになっています。それと「ゴロンとしたい」という妻の希望を受けて、和室もつくりました。さらにはキッチンは、前に住んでいたアパートのキッチンが手狭だったため、とにかく広く使えるキッチンにこだわりました。それと収納スペースは、たくさん取らせてもらいました。キッチンに隣接する階段下のスペースを利用したパントリーやモデルハウスで見た時に「これはつけたい!」と思った玄関クローゼット、主寝室のウォークインクローゼットなどを設置して、収納には困らない家づくりが実現できました。

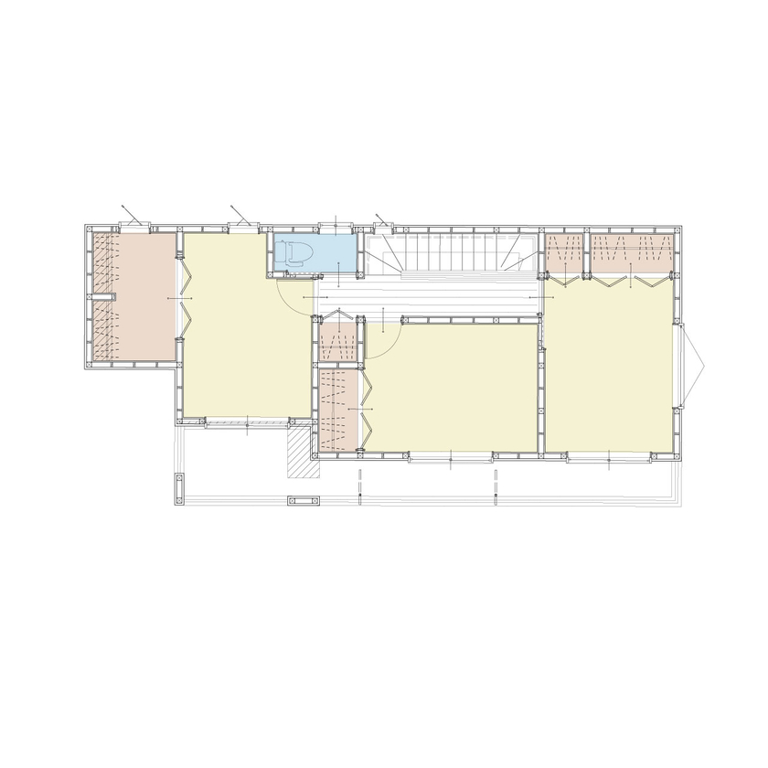
間取り図(4LDK)

1階
アイダ設計 【間取り図有/30坪台/収納充実/ペニンシュラキッチン】19帖の広々リビングは家族の憩いのスペースの間取り図(4LDK)1階

2階
アイダ設計 【間取り図有/30坪台/収納充実/ペニンシュラキッチン】19帖の広々リビングは家族の憩いのスペースの間取り図(4LDK)2階

この会社をもっと知りたくなったら
無料でお届け!まずはカタログ請求

内外観ギャラリー

この会社をもっと知りたくなったら
無料でお届け!まずはカタログ請求

施主Fさんがこの会社に決めた理由

予算内で理想の実現のための提案をしてもらえたから

「子どもが大きくなってきて手狭になってきたことと、アパートの家賃を払い続けていても自分たちの財産になることはないから、月々の賃料と同じくらいの金額を毎月のローン返済に充てて建てられる家を建てたいと思った」ことが、家を建てようと思い立ったきっかけだったとFさんご夫妻は語る。「階段のあるリビング」「ゆったり過ごせる和室」「広々としたキッチン」「豊富な収納スペース」などなど、さまざまな要望を投げかけて、真摯に応えてくれたのがアイダ設計の営業担当だったという。「こ… 続きを読む

「子どもが大きくなってきて手狭になってきたことと、アパートの家賃を払い続けていても自分たちの財産になることはないから、月々の賃料と同じくらいの金額を毎月のローン返済に充てて建てられる家を建てたいと思った」ことが、家を建てようと思い立ったきっかけだったとFさんご夫妻は語る。「階段のあるリビング」「ゆったり過ごせる和室」「広々としたキッチン」「豊富な収納スペース」などなど、さまざまな要望を投げかけて、真摯に応えてくれたのがアイダ設計の営業担当だったという。「この予算では難しいのでは、という要望も、アイダ設計の営業担当の方は『ここはこうすればコストが抑えられます』など、私たちの理想を実現するためにどうしたらいいか、を提案してきてくれました」(Fさんご夫妻)。そうやってでき上がった家に住んでみて、「部屋も、お風呂も、広くなってうれしい」と子どもたちが喜ぶ姿が見られ、ご夫妻はご満悦のようである。

この会社の他の建築実例を見る

この建築実例が気になった方へおすすめ

この建築実例の詳細情報

アイダ設計のコンテンツ一覧

お問い合わせ

カタログをもらう
カタログ一覧

この会社が気になったら

カタログをもらう

関連キーワード

この建築実例のその他の特徴
ページトップへ戻る