野口建設

野口建設

~絶対に同じ家は創らない~ 地元足利・佐野を中心に800棟以上を誇る実績
お気に入りに追加する
栃木県足利市  Nさん
開放感と明るさを叶えながらもプライバシーを守る、寛ぎの家
野口建設 開放感と明るさを叶えながらもプライバシーを守る、寛ぎの家の建築実例画像1
  • 本体価格
    2,500万円2,999万円
    68.1万円81.6万円/坪
  • 延床面積
    121.51m2 (36.7坪)
    敷地面積
    341.56m2 (103.3坪)
    家族構成
    夫婦+子ども2人
  • 竣工年月
    2024年9月
    工法
    2×4、2×6
この会社をもっと知りたくなったら
無料でお届け!まずはカタログ請求

施主Nさんのこだわり

広々リビングと吹き抜けを実現して、アイアンのスケルトン階段がアクセントに

子どもが産まれて、以前の住まいが手狭になったことから家づくりを考え始めたNさん。家づくりの希望は、広いリビングと吹き抜けがあること。階段は、最初の間取りから窓にかかるデザインだったので、アイアンかつスケルトン階段にした。キッチンとダイニングは横並びが希望だった。キッチンカウンターとダイニングテーブルは同じ高さになるテーブルを購入した。現在は書類を書くなどに使っている。テレビボードはリビングのデザインに合わせて造作したもの。デザインには流行があること、自分の… 続きを読む

子どもが産まれて、以前の住まいが手狭になったことから家づくりを考え始めたNさん。家づくりの希望は、広いリビングと吹き抜けがあること。階段は、最初の間取りから窓にかかるデザインだったので、アイアンかつスケルトン階段にした。キッチンとダイニングは横並びが希望だった。キッチンカウンターとダイニングテーブルは同じ高さになるテーブルを購入した。現在は書類を書くなどに使っている。テレビボードはリビングのデザインに合わせて造作したもの。デザインには流行があること、自分の好みも30年後には変わることも考え、内観、外観ともにシンプルに白をベースにしている。また水廻りやパントリーなどの生活スペースを近くにまとめ、暮らしやすさにもこだわった。家に帰ったら、すぐに着替えるなどリラックスしたいタイプだったので、リビングが道路から見えないように、南側の道路面に壁を設けた。外から室内が見えないだけでなくテラスで子どもを遊ばせる際に、道路へ飛び出す心配もない。玄関から洗面・脱衣・パントリーが全部近く、生活スペースがまとまっていて便利。朝の支度がラクになった。床暖房&外断熱が入っているので、冬もあったかい。室内の温度が一定で、洗面室や脱衣室も寒さ、暑さが少なくて過ごしやすい。(社員邸)

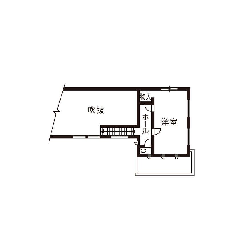
間取り図(2LDK)

1階
野口建設 開放感と明るさを叶えながらもプライバシーを守る、寛ぎの家の間取り図(2LDK)1階
2階
野口建設 開放感と明るさを叶えながらもプライバシーを守る、寛ぎの家の間取り図(2LDK)2階
この会社をもっと知りたくなったら
無料でお届け!まずはカタログ請求

内外観ギャラリー

この会社をもっと知りたくなったら
無料でお届け!まずはカタログ請求

この会社の他の建築実例を見る

この建築実例が気になった方へおすすめ

この建築実例の詳細情報

この建築実例を建てた店舗情報

住所 栃木県足利市芳町34-2
問い合わせ
0284-43-0920
  • ※営業時間内の対応となります。

  • ※お問い合わせの際は「SUUMO(スーモ)を見て」とお伝え下さい。

ホームページ この会社のホームページへ

野口建設のコンテンツ一覧

お問い合わせ

カタログをもらう
施工実例集
野口建設のカタログ(野口建設の「オンリーワンの家」実例集)
野口建設の「オンリーワンの家」実例集
問合コード:1418360001
お問い合わせ先
0284-43-0920
  • ※営業時間内の対応となります。

  • ※お問い合わせの際は「SUUMO(スーモ)を見て」とお伝え下さい。

  • 栃木県足利市芳町34-2

  • 定休日:-

この会社のホームページへ

この会社が気になったら

カタログをもらう
施工実例集
野口建設のカタログ(野口建設の「オンリーワンの家」実例集)
野口建設の「オンリーワンの家」実例集
問合コード:1418360001

関連キーワード

この建築実例のその他の特徴
ページトップへ戻る