ヤマカ木材 オンリーホーム

ヤマカ木材 オンリーホーム

岐阜に根ざし創業73年の老舗住宅メーカー。永年無償定期点検等確かなアフターフォロー
お気に入りに追加する
【2000万円台/ホテルライク/シンプル/30坪台/間取り図】オブジェのような景観と解放感。ホテルライクな家
ヤマカ木材 オンリーホーム 【2000万円台/ホテルライク/シンプル/30坪台/間取り図】オブジェのような景観と解放感。ホテルライクな家の建築実例画像1
  • 本体価格
    2,000万円2,499万円
    52.6万円65.7万円/坪
  • 延床面積
    125.87m2 (38.0坪)
    敷地面積
    -
    家族構成
    -
  • 竣工年月
    -
    工法
    木造軸組
この会社をもっと知りたくなったら
無料でお届け!まずはカタログ請求

施主のこだわり

シンプルな色使いと空間に拘った家

モノトーンな色使いでホテルに住んでいるような空間を演出しました。階段をオープンかつひな壇にする事でオブジェのような景観と解放感を作り出しました。

モノトーンな色使いでホテルに住んでいるような空間を演出しました。階段をオープンかつひな壇にする事でオブジェのような景観と解放感を作り出しました。

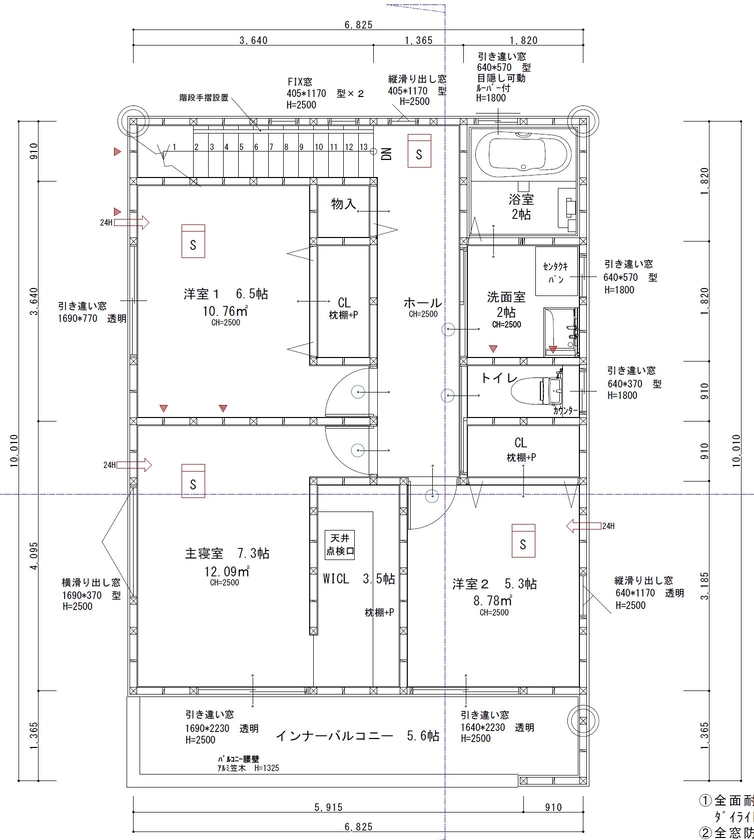
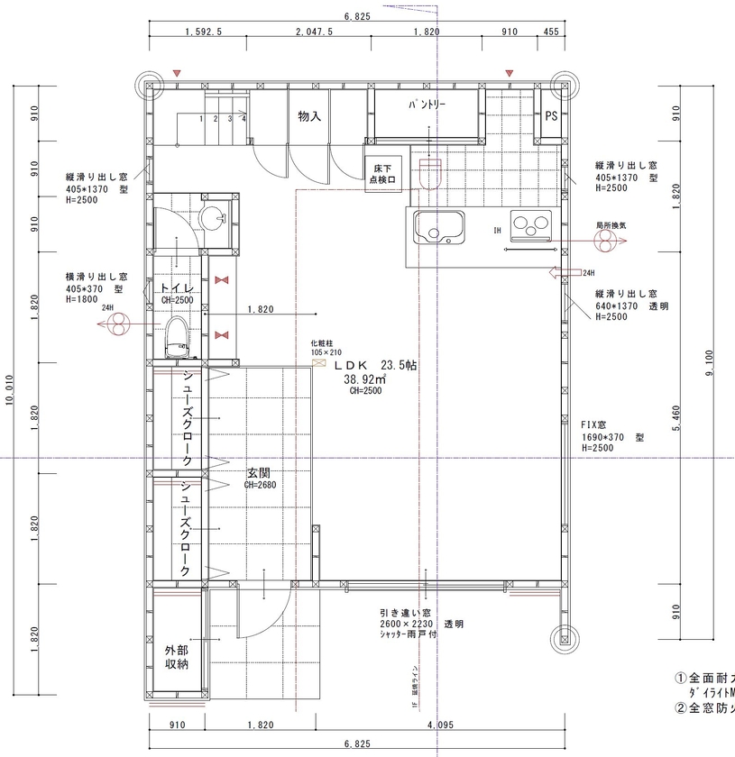
間取り図(3LDK)

1階
ヤマカ木材 オンリーホーム 【2000万円台/ホテルライク/シンプル/30坪台/間取り図】オブジェのような景観と解放感。ホテルライクな家の間取り図(3LDK)1階
2階
ヤマカ木材 オンリーホーム 【2000万円台/ホテルライク/シンプル/30坪台/間取り図】オブジェのような景観と解放感。ホテルライクな家の間取り図(3LDK)2階
この会社をもっと知りたくなったら
無料でお届け!まずはカタログ請求

内外観ギャラリー

この会社をもっと知りたくなったら
無料でお届け!まずはカタログ請求

この会社の他の建築実例を見る

この建築実例が気になった方へおすすめ

この建築実例の詳細情報

この建築実例を建てた店舗情報

店舗名 本社
住所 岐阜県岐阜市東鶉3-48-1
問い合わせ
0120-960-928
  • ※営業時間内の対応となります。

  • ※お問い合わせの際は「SUUMO(スーモ)を見て」とお伝え下さい。

ホームページ この会社のホームページへ

ヤマカ木材 オンリーホームのコンテンツ一覧

お問い合わせ

カタログをもらう
総合カタログ
ヤマカ木材 オンリーホームのカタログ(パンフレット)
パンフレット
問合コード:5014820001
お問い合わせ先
0120-960-928
  • ※営業時間内の対応となります。

  • ※お問い合わせの際は「SUUMO(スーモ)を見て」とお伝え下さい。

本社
  • 岐阜県岐阜市東鶉3-48-1

  • 定休日:火曜日、水曜日

この会社のホームページへ

この会社が気になったら

カタログをもらう
総合カタログ
ヤマカ木材 オンリーホームのカタログ(パンフレット)
パンフレット
問合コード:5014820001

関連キーワード

この建築実例のその他の特徴
ページトップへ戻る