1. 不動産・住宅サイト SUUMO > 
  2. 注文住宅・ハウスメーカー > 
  3. 東海 > 
  4. 岐阜県 > 
  5. クレバリーホーム/住生活研究所 > 
  6. 【四日市市|住生活研究所】平屋、2階、2.5階と3種の建物が一度に見学できるのが魅力<四日市展示場>
クレバリーホーム/住生活研究所

【タイル外壁・高耐久・高耐震・高断熱】ライフ・サイクル・コストを考えた家づくり

お気に入りに
追加する
モデルハウス・イベント来場特典

【四日市市|住生活研究所】平屋、2階、2.5階と3種の建物が一度に見学できるのが魅力<四日市展示場>

延床面積22坪の平屋、ハーフ吹抜けのある2階建、蔵収納やロフトのある2.5層の家

テイスト
シンプルデザイン、平屋住宅
ライフスタイル
収納充実・動線配慮で家事ラクな暮らし、生活スタイルに合わせた等身大の暮らし
【四日市市|住生活研究所】平屋、2階、2.5階と3種の建物が一度に見学できるのが魅力<四日市展示場>1
平屋と2階建てのリアルサイズモデルハウスが3棟並び、タイル外壁の質の良さがよくわかる外観デザイン。
【四日市市|住生活研究所】平屋、2階、2.5階と3種の建物が一度に見学できるのが魅力<四日市展示場>2
平屋とは思えない開放的なリビング。アクセントのタイル使いもオシャレだ
【四日市市|住生活研究所】平屋、2階、2.5階と3種の建物が一度に見学できるのが魅力<四日市展示場>3
キッチンも収納充実。写真右のドアの先は2つの洋室につながる
【四日市市|住生活研究所】平屋、2階、2.5階と3種の建物が一度に見学できるのが魅力<四日市展示場>4
洗面脱衣室は人気のガス乾燥機を設置した。作り付けの収納も使いやすそうだ
【四日市市|住生活研究所】平屋、2階、2.5階と3種の建物が一度に見学できるのが魅力<四日市展示場>5
玄関はアクセントにセメントで出来た新素材を使い高級感を演出
【四日市市|住生活研究所】平屋、2階、2.5階と3種の建物が一度に見学できるのが魅力<四日市展示場>6
2階建てモデル棟LDK。ハーフ吹き抜けで天井を高くし、開放感を演出。吹き抜けにしない選択肢の参考に
【四日市市|住生活研究所】平屋、2階、2.5階と3種の建物が一度に見学できるのが魅力<四日市展示場>7
2階建てモデル棟の玄関空間。正面からは見えない手洗いカウンターの工夫や、吹き抜けで空間の広がりを演出
【四日市市|住生活研究所】平屋、2階、2.5階と3種の建物が一度に見学できるのが魅力<四日市展示場>8
高級感のあるダイニングキッチン。ダイニングの後ろには多目的に使用できるカウンターも。
【四日市市|住生活研究所】平屋、2階、2.5階と3種の建物が一度に見学できるのが魅力<四日市展示場>9
LDKに隣接した畳コーナー。ゆったりと落ち着いた心地よい空間に
【四日市市|住生活研究所】平屋、2階、2.5階と3種の建物が一度に見学できるのが魅力<四日市展示場>10
キッチンから洗面室に抜けるパントリー。スッキリとした空間の維持に役に立つ収納。出入口で遊び心も演出
【四日市市|住生活研究所】平屋、2階、2.5階と3種の建物が一度に見学できるのが魅力<四日市展示場>11
くつろぎスペース&ヌック。家族と緩やかに繋がる居心地の良い空間。気分転換など自分だけの時間を楽しめる
【四日市市|住生活研究所】平屋、2階、2.5階と3種の建物が一度に見学できるのが魅力<四日市展示場>12
清潔感のある造作洗面。既製品だけでなく造作も可能なため参考に

3種類の家を見比べながら、家づくりのイメージをふくらませよう

2022年8月にグランドオープンした四日市店のモデルハウスは、延床面積22坪のロフト付き平屋、ハーフ吹抜けのある2階建、蔵収納やロフトのある2.5階建のモデルハウスと合計3つだ。一度に異なる住まい3種類を見学できるので、比較もしやすく、イメージに合ったものを探しやすい。どの建物もリアルサイズで見どころポイントが満載なので、ぜひ家族みんなでじっくりと見学してほしい。クレバリーホーム/住生活研究所が得意なタイル外壁のかっこよさや高級感も実際に目の当たりにするとより魅力がわかるはず。このクオリティで手が届きやすい価格を実現している点にも注目だ。見学はいつでもOKだが、事前予約をする方がスムーズ。事前予約をすれば定休日の水曜日でも対応してくれるので、予約フォームより希望の日時を伝えよう。予約は同社からの連絡をもって受付完了となる。

このモデルハウスの見どころ・特長

  • 【四日市市|住生活研究所】平屋、2階、2.5階と3種の建物が一度に見学できるのが魅力<四日市展示場>の見どころ1
    コンパクトサイズでも開放的に暮らす工夫が実感できる平屋。家事ラク・子育て目線の工夫も必見

    こちらの片流れの大屋根の部分は広くないと平屋はムリとあきらめている方にぜひ見てもらいたいモデルハウス。この広さでも開放的なLDKと2部屋の洋室ができるとわかれば、家づくりの選択肢も広がるだろう。子育て目線のキッチンレイアウト、家事ラクを叶える水回り動線も必見。家づくりの参考になるアイデアが満載だ。

  • 【四日市市|住生活研究所】平屋、2階、2.5階と3種の建物が一度に見学できるのが魅力<四日市展示場>の見どころ2
    外壁タイルを使用したかっこよく、高級感のあるデザイン。メンテナンス性も◎

    外壁タイルを使用したデザイン性だけでなく、住んでからのメンテナンスまで考えた家づくりが体感できる。3つの異なるテイストのモデルハウスを体感し、空間の使い方やインテリアなど一度にイメージできる点も見どころだ

間取り図

  • 事務所棟1
    【四日市市|住生活研究所】平屋、2階、2.5階と3種の建物が一度に見学できるのが魅力<四日市展示場>の間取り図(事務所棟1)
  • 事務所棟2
    【四日市市|住生活研究所】平屋、2階、2.5階と3種の建物が一度に見学できるのが魅力<四日市展示場>の間取り図(事務所棟2)
  • 事務所棟3
    【四日市市|住生活研究所】平屋、2階、2.5階と3種の建物が一度に見学できるのが魅力<四日市展示場>の間取り図(事務所棟3)
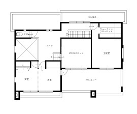
  • モデル1階
    【四日市市|住生活研究所】平屋、2階、2.5階と3種の建物が一度に見学できるのが魅力<四日市展示場>の間取り図(モデル1階)
  • モデル2階
    【四日市市|住生活研究所】平屋、2階、2.5階と3種の建物が一度に見学できるのが魅力<四日市展示場>の間取り図(モデル2階)

このモデルハウスで開催のイベント

  • クレバリーホーム/住生活研究所 桑名本社のイベント・キャンペーン
    【桑名市|随時|住生活研究所】一度に2つの異なるモデルハウスを見比べていただけます。シンプルモダン、ナチュラルどちらがお好きですか?
    開催日時:随時

    9:30~18:30(水曜定休)※事前にご連絡いただきましたら対応可能です

    2つのタイプの違うモデルハウスを見比べて頂ける見学会です

モデルハウス詳細データ

所在地 三重県四日市市日永西2-20-7
完成年月 2022年5月
予約締切 見学したい日の3日前まで
電話番号
059-329-6065
  • ※営業時間内の対応となります。

  • ※お問い合わせの際は「SUUMO(スーモ)を見て」とお伝え下さい。

営業時間 9:30~18:30 年末年始除く
定休日 水曜日 ※事前予約で対応可
ホームページリンク この会社のホームページへ

2022年06月15日より掲載
問合コード:5012940004002

アクセス

三重県四日市市日永西2-20-7
公共:四日市あすなろう鉄道・内部線「南日永」駅から徒歩約7分 車:東名阪自動車道「四日市IC」より南東方向へ約8.5km コメリPRO四日市店近く

モデルハウス見学予約フォーム

※こちらのフォームに必要事項を入力し『「内容確認」へ進む』ボタンをクリックしてください。

  1. 【1】入力
  2. 【2】確認
  3. 【3】完了

必須は必須項目です。必ず入力ください。

お名前(全角)

必須

氏名

完了

ふりがな
※任意

ご連絡先

E-mailアドレス
(半角英数)

必須

※PCアドレス推奨

※確認のご連絡を差し上げる場合があります。

完了

電話番号
(半角数字)

必須

※確認のご連絡を差し上げる場合があります。

完了

ご希望の連絡時間帯
※任意

見学希望日

必須

定休日: 水曜日 ※事前予約で対応可

カレンダーから指定
  • 2025年 12月
  • 2026年 1月
  • 2026年 2月
  • 2026年 3月
  • 2026年 4月
  • 2026年 5月
  • 2026年 6月
  • 2026年 7月
  • 2026年 8月
  • 2026年 9月
  • 2026年 10月
  • 2026年 11月
30 1 2 3 4 5 6
7 8 9 10 11 12 13
14 15 16 17 18 19 20
21 22 23 24 25 26 27
28 29 30 31 1 2 3
28 29 30 31 1 2 3
4 5 6 7 8 9 10
11 12 13 14 15 16 17
18 19 20 21 22 23 24
25 26 27 28 29 30 31
1 2 3 4 5 6 7
8 9 10 11 12 13 14
15 16 17 18 19 20 21
22 23 24 25 26 27 28
1 2 3 4 5 6 7
8 9 10 11 12 13 14
15 16 17 18 19 20 21
22 23 24 25 26 27 28
29 30 31 1 2 3 4
29 30 31 1 2 3 4
5 6 7 8 9 10 11
12 13 14 15 16 17 18
19 20 21 22 23 24 25
26 27 28 29 30 1 2
26 27 28 29 30 1 2
3 4 5 6 7 8 9
10 11 12 13 14 15 16
17 18 19 20 21 22 23
24 25 26 27 28 29 30
31 1 2 3 4 5 6
31 1 2 3 4 5 6
7 8 9 10 11 12 13
14 15 16 17 18 19 20
21 22 23 24 25 26 27
28 29 30 1 2 3 4
28 29 30 1 2 3 4
5 6 7 8 9 10 11
12 13 14 15 16 17 18
19 20 21 22 23 24 25
26 27 28 29 30 31 1
26 27 28 29 30 31 1
2 3 4 5 6 7 8
9 10 11 12 13 14 15
16 17 18 19 20 21 22
23 24 25 26 27 28 29
30 31 1 2 3 4 5
30 31 1 2 3 4 5
6 7 8 9 10 11 12
13 14 15 16 17 18 19
20 21 22 23 24 25 26
27 28 29 30 1 2 3
27 28 29 30 1 2 3
4 5 6 7 8 9 10
11 12 13 14 15 16 17
18 19 20 21 22 23 24
25 26 27 28 29 30 31
1 2 3 4 5 6 7
8 9 10 11 12 13 14
15 16 17 18 19 20 21
22 23 24 25 26 27 28
29 30 1 2 3 4 5

完了

希望時間帯

必須

営業時間: 9:30~18:30 年末年始除く

完了

見学間近の予約のため、ご質問は直接お問い合わせ下さい。 お問い合わせ先:059-329-6065
※お問い合わせの際は「SUUMO(スーモ)注文住宅を見た」とお伝えになるとスムーズです。

SUUMOお役立ちメルマガ・アンケート
お役立ち情報の送付希望

※配信を希望しない場合は、「希望しない」にチェックを入れてください。

【ご注意】
1.ご予約いただきました内容に関して、施工会社の担当者よりご連絡させて頂く場合がございます。
集合場所、時間等に関してご質問がある場合は、恐れ入りますが直接お問い合わせください。
2.キャンセルや日程の変更があった場合、直接店舗へご連絡ください。
3.定休日・営業時間外のご予約は原則お受けできかねますので、予めご了承ください。

質問や建築のご予定など

※以下は必須の入力項目ではありませんが、ご入力いただくと今後の流れがスムーズに行えます。

現在のご住所

郵便番号
(半角数字)

ご住所
(全角)

※番地・建物名まで忘れずご記入ください

建築予定時期
建築予算(土地予算除く)
建築予定地

建築内容
年齢  

現在の状況






その他、ご要望があればご記入ください。

【ご注意】
1.ご予約いただきました内容に関して、施工会社の担当者よりご連絡させて頂く場合がございます。
集合場所、時間等に関してご質問がある場合は、恐れ入りますが直接お問い合わせください。
2.キャンセルや日程の変更があった場合、直接店舗へご連絡ください。
3.定休日・営業時間外のご予約は原則お受けできかねますので、予めご了承ください。
このモデルハウスと同じ所在地からハウスメーカー・工務店を探す
このモデルハウスと同じ所在地から展示場を探す

【モデルハウスの本体価格について】
掲載中のモデルハウスの中には一部参考本体価格の記載があるものがございます。価格は全て消費税相当金額を含みます。各社にお問い合わせください。また、モデルハウス情報の参考本体価格は施工当時のもので、現在の価格とは異なる場合があります。詳細は各社にお問い合わせください

お問い合わせ
  • お問い合わせ先
    059-329-6065
    • ※営業時間内の対応となります。

    • ※お問い合わせの際は「SUUMO(スーモ)を見て」とお伝え下さい。

    【四日市市|住生活研究所】平屋、2階、2.5階と3種の建物が一度に見学できるのが魅力<四日市展示場>
    三重県四日市市日永西2-20-7
    [定休日]水曜日 ※事前予約で対応可
カタログ一覧

クレバリーホーム/住生活研究所のカタログ一覧です。無料で請求できます。1社で請求できるカタログ数は3件までです。

ページトップへ戻る