悠悠ホーム

悠悠ホーム

空気環境を徹底的に整え、家族が快適に暮らせる「健康志向」の木の家づくり
お気に入りに追加する
福岡県北九州市  Tさん
【3000万円~3499万円で建てた家/34坪/間取り図あり】特別感を味わえる「ホテルライク」なデザインを追求
悠悠ホーム 【3000万円~3499万円で建てた家/34坪/間取り図あり】特別感を味わえる「ホテルライク」なデザインを追求の建築実例画像1
  • 本体価格
    3,000万円3,499万円
    87.9万円102.5万円/坪
  • 延床面積
    112.88m2 (34.1坪)
    敷地面積
    216.39m2 (65.4坪)
    家族構成
    夫婦(20代)+子ども2人
  • 竣工年月
    2024年2月
    工法
    木造軸組
この会社をもっと知りたくなったら
無料でお届け!まずはカタログ請求

施主Tさんのこだわり

吹抜けリビング、スケルトンの扉、ムーディーな照明で、随所にホテルライクな上質さを

プールやバーベキューなど、自宅で気軽にイベントを楽しめる「庭のある暮らし」に憧れていたTさん。第2子の誕生をきっかけに、20代という若さで注文住宅を決意していた。「家づくりは人生の一大イベントだけに、妥協はしたくなかったですね。私たちの理想である『ホテルライク』をキーワードに、何十社ものビルダーを探しました。そのなかで出会ったのが、自由度が高く、担当者の対応や予算面にも納得ができる悠悠ホーム。夏涼しく、冬あたたかい空間を叶える外断熱工法や、家中すべての蛇口… 続きを読む

プールやバーベキューなど、自宅で気軽にイベントを楽しめる「庭のある暮らし」に憧れていたTさん。第2子の誕生をきっかけに、20代という若さで注文住宅を決意していた。「家づくりは人生の一大イベントだけに、妥協はしたくなかったですね。私たちの理想である『ホテルライク』をキーワードに、何十社ものビルダーを探しました。そのなかで出会ったのが、自由度が高く、担当者の対応や予算面にも納得ができる悠悠ホーム。夏涼しく、冬あたたかい空間を叶える外断熱工法や、家中すべての蛇口から出るクリーンな水も魅力に感じたポイントです。依頼が決まってからは、丁寧なヒアリングで私たちの声に耳を傾け、初回から希望通りの間取りを提案してくれました。子どもの独立後に1階だけで暮らしが完結する居室の配置や家事の効率化を図る水まわり、生活動線上にある設備や収納など、間取りはファーストプランをほぼそのまま採用。そのうえで、黒×グレー×木を基調とした色づかいと調光可能な間接照明、スケルトンの建具などをバランスよく取り入れて、高級ホテルのようなラグジュアリーな空間を創りあげてくれました」。そのデザイン性や上質感は、遊びにきた友人も驚くほど。好きなものに囲まれて暮らす毎日は、嬉しさと充足感で満たされているという。

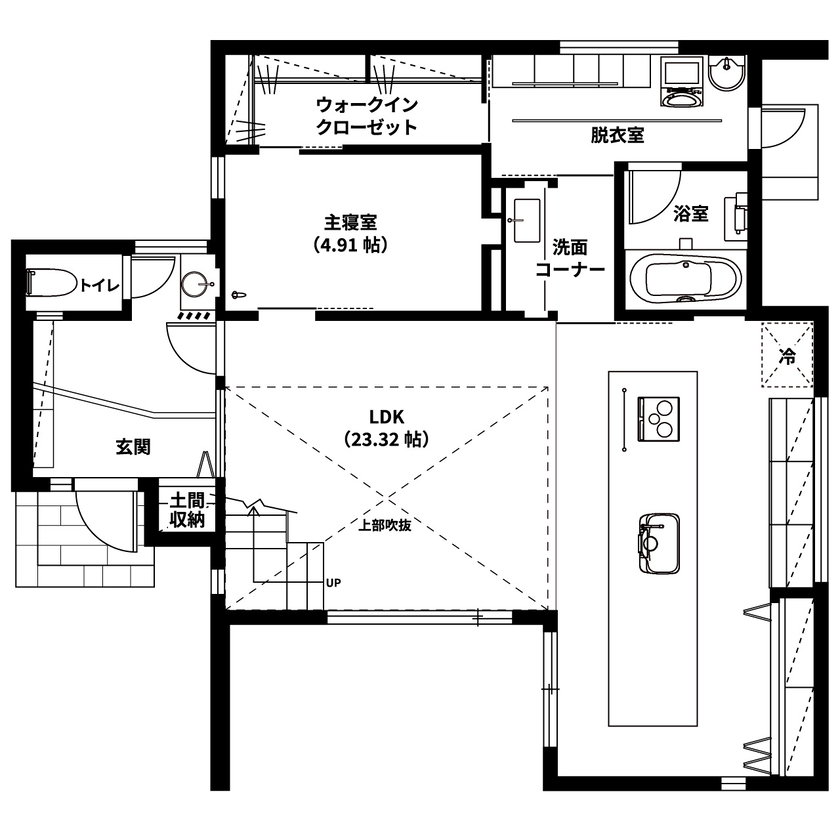
間取り図(4LDK)

1階
悠悠ホーム 【3000万円~3499万円で建てた家/34坪/間取り図あり】特別感を味わえる「ホテルライク」なデザインを追求の間取り図(4LDK)1階
2階
悠悠ホーム 【3000万円~3499万円で建てた家/34坪/間取り図あり】特別感を味わえる「ホテルライク」なデザインを追求の間取り図(4LDK)2階
この会社をもっと知りたくなったら
無料でお届け!まずはカタログ請求

内外観ギャラリー

この会社をもっと知りたくなったら
無料でお届け!まずはカタログ請求

この会社の他の建築実例を見る

この建築実例が気になった方へおすすめ

この建築実例の詳細情報

この建築実例を建てた店舗情報

店舗名 本社
住所 福岡県大野城市筒井4-4-17
問い合わせ
092-592-7012
  • ※営業時間内の対応となります。

  • ※お問い合わせの際は「SUUMO(スーモ)を見て」とお伝え下さい。

ホームページ この会社のホームページへ

悠悠ホームのコンテンツ一覧

お問い合わせ

カタログをもらう
施工実例集
悠悠ホームのカタログ(特選!施工実例集)
特選!施工実例集
問合コード:0739620001

この会社が気になったら

カタログをもらう
施工実例集
悠悠ホームのカタログ(特選!施工実例集)
特選!施工実例集
問合コード:0739620001

関連キーワード

この建築実例のその他の特徴
ページトップへ戻る