【延床面積28.5坪/平屋/高気密・高断熱】家事ラク重視!家族みんながのびのびと過ごせる家
-
本体価格
2,500万円~2,999万円
(87.6万円~105.1万円/坪)
-
-
施主Mさんのこだわり
子どもの成長をきっかけに家づくりを検討し始めたMさん。「家族全員がリビングで過ごせて、共働きなので家事を楽にできる暮らし」にしようと考えていたそう。ライフスタイルのことは、偶然情報誌で見て知ったという。土地の場所を優先的に探していて、決め手になったのは、自分たちの希望に一番合う場所・広さだったことや自由設計もできることだ。そこで実現したのが、「家族がのびのびと過ごせる家」。担当者の仕事ぶりについて尋ねると、「予算内に収めようと試行錯誤してくれて、自分たちの…
続きを読む
子どもの成長をきっかけに家づくりを検討し始めたMさん。「家族全員がリビングで過ごせて、共働きなので家事を楽にできる暮らし」にしようと考えていたそう。ライフスタイルのことは、偶然情報誌で見て知ったという。土地の場所を優先的に探していて、決め手になったのは、自分たちの希望に一番合う場所・広さだったことや自由設計もできることだ。そこで実現したのが、「家族がのびのびと過ごせる家」。担当者の仕事ぶりについて尋ねると、「予算内に収めようと試行錯誤してくれて、自分たちの好みをよくわかってくれていました」と話してくれた。そんなMさんのお気に入りは、デザイン。「仕事が休みの日でも家にいることが楽しくなりました。子どもの休日も家で広々と遊べるのが良いです。家に帰ることが楽しみになり、人を招き入れられるのも嬉しいです」と心地よい生活を楽しんでいる。打ち合わせがとても楽しかったので終わってしまうのが寂しかったとか。「インテリアコーディネーターの方が私の意見を鵜呑みにせず、専門家ならではの提案をしてくれました。家づくりは自由設計で1から考える方が楽しい。自分たちの意見を取り入れてくれた上で提案もしてくれます」と同社の魅力を語った。
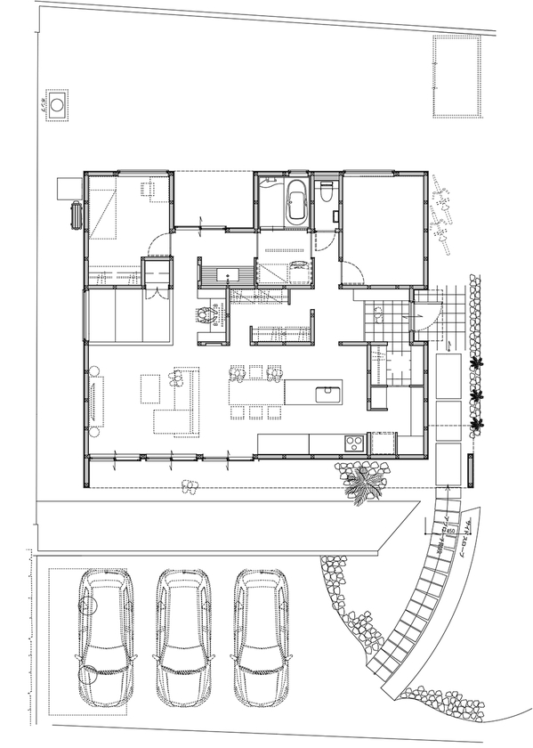
間取り図(2LDK)
内外観ギャラリー
-
大開口のサッシから陽が射し込む広々としたLDK。窓を開けるとウッドデッキに繋がっているので、子どもたちも家での…
続きを読む
大開口のサッシから陽が射し込む広々としたLDK。窓を開けるとウッドデッキに繋がっているので、子どもたちも家でのびのび遊べる
-
家の雰囲気全体をグレージュに統一したというMさん。おしゃれなグレーのアクセントウォールは、こだわったポイントの…
続きを読む
家の雰囲気全体をグレージュに統一したというMさん。おしゃれなグレーのアクセントウォールは、こだわったポイントの一つ
-
夫婦でキッチンに立っても余裕の広さのアイランドキッチン。ペンダントライトのおかげで自然とリビングとの空間の棲み…
続きを読む
夫婦でキッチンに立っても余裕の広さのアイランドキッチン。ペンダントライトのおかげで自然とリビングとの空間の棲み分けができていて、アクセントにもなっている
-
リビングに設けた小上がりの畳スペースは、子どもたちの遊びスペースとしてはもちろん、寝っ転がってゆったり過ごした…
続きを読む
リビングに設けた小上がりの畳スペースは、子どもたちの遊びスペースとしてはもちろん、寝っ転がってゆったり過ごしたり洗濯物を畳んだりなど、様々なシーンで活躍する
-
シックなグレーで統一されたダイニングキッチン。キッチンとダイニングテーブルを並べて配置したことで食事の配膳や後…
続きを読む
シックなグレーで統一されたダイニングキッチン。キッチンとダイニングテーブルを並べて配置したことで食事の配膳や後片付けもしやすく、家事の時短に
-
キッチンの横にある大容量のパントリー。可動棚になっているので使い勝手も抜群。食品や日用品のストックをたっぷり仕…
続きを読む
キッチンの横にある大容量のパントリー。可動棚になっているので使い勝手も抜群。食品や日用品のストックをたっぷり仕舞える
-
子ども部屋としてもぴったりな、使い勝手のいい洋室。高窓があることで適度に明るさを取り入れられる
子ども部屋としてもぴったりな、使い勝手のいい洋室。高窓があることで適度に明るさを取り入れられる
-
家族みんなの洋服をたっぷり仕舞える広々としたウォークインクローゼット。リビングと隣り合わせでドアを設けていない…
続きを読む
家族みんなの洋服をたっぷり仕舞える広々としたウォークインクローゼット。リビングと隣り合わせでドアを設けていないので、出入りがしやすく動線がスムーズ
-
落ち着いたトーンでまとまったスタイリッシュな印象の洗面スペース。2人いっしょに並んでも余裕の広さがあるので、バ…
続きを読む
落ち着いたトーンでまとまったスタイリッシュな印象の洗面スペース。2人いっしょに並んでも余裕の広さがあるので、バタバタしがちな朝の時間帯もゆったりと身支度ができる
-
すっきりとしたタンクレストイレ。ここにもグレーのアクセントウォールとペンダントライトを使っており、Mさんのこだ…
続きを読む
すっきりとしたタンクレストイレ。ここにもグレーのアクセントウォールとペンダントライトを使っており、Mさんのこだわりがうかがえる
この会社の他の建築実例を見る
-
-
【古賀市/ショールーム・注文住宅相談会】一級建築士・インテリアコーディネーターと造る高性能デザインハウス
参加特典
ご予約・ご来場アンケートご記入で、家づくりエスコートブック・エコバッグをプレンゼント!
この建築実例の詳細情報
|
商品名
|
-
|
|
部材・設備
|
-
|
|
延床面積
|
94.41m2
(28.5坪)
|
|
敷地面積
|
369.88m2
(111.8坪)
|
|
工法
|
木造軸組
|
|
本体価格
|
2,500万円~2,999万円
|
|
竣工年月
|
2024年4月
|
この建築実例を建てた店舗情報
一級建築士事務所 ライフスタイル(LIFE STYLE)のコンテンツ一覧