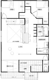
重厚感のある大屋根が目を引くシックな外観。玄関ドアや軒柱などの木材使いがポイントで、木の温かみを添えています。「家族との距離が近い和モダンの家」がテーマのKさんの新居。空間を賢く活用したいと造作家具を多くし、できる限り“家具が不要”を心掛けました。キッチンすぐ横に設けた大きな造作のダイニングテーブルが家族みんなのお気に入り。食事どきには賑やかに会話がはずみます。また、ダイニング側の上部を吹き抜けにしたので、どこにいても家族の気配が感じられます。ダイニングと… 続きを読む
重厚感のある大屋根が目を引くシックな外観。玄関ドアや軒柱などの木材使いがポイントで、木の温かみを添えています。「家族との距離が近い和モダンの家」がテーマのKさんの新居。空間を賢く活用したいと造作家具を多くし、できる限り“家具が不要”を心掛けました。キッチンすぐ横に設けた大きな造作のダイニングテーブルが家族みんなのお気に入り。食事どきには賑やかに会話がはずみます。また、ダイニング側の上部を吹き抜けにしたので、どこにいても家族の気配が感じられます。ダイニングとリビングとの境目の一部を木柱で隠し、空間をセパレート。明るい光が差し込むリビングに、愛犬も嬉しそうです。LDKを家の中心に、キッチン裏手の洋室は奥さんのおこもり空間。ツイン・ブラザーズが仲良く遊んだり、勉強したりする様子を1階から見られるようにと、2階のフリースペースにデスクを造作しました。屋根が織りなす傾斜天井を生かした子ども部屋は、まさに子どもたちの城。ジャストサイズに造作したベッドで空間をフル活用。「個々の部屋の間取りは理想通り」とKさんは満足そうです。「木のぬくもりに包まれるわが家は最高です!」と、暮らし心地を語るKさん。気軽に友人を呼べる日が早く来ることを期待しつつ、今は懐の深い軒下で一人、四季を感じながらお酒を楽しんでいます。
LDKができるだけ広くとれるように無駄のない間取りを心がけた
LDKができるだけ広くとれるように無駄のない間取りを心がけた
造作家具を多く設置して、できる限り余計な家具をなくし、空間を賢く活用できるように工夫した
造作家具を多く設置して、できる限り余計な家具をなくし、空間を賢く活用できるように工夫した
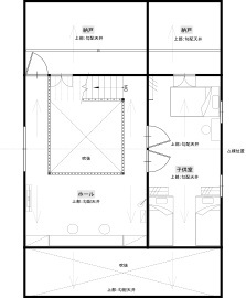
3世代が一緒に暮らすKさんの家。お互いに気兼ねせず、みんなで過ごす場所と、それぞれの時間を過ごせる場所とを設け… 続きを読む
3世代が一緒に暮らすKさんの家。お互いに気兼ねせず、みんなで過ごす場所と、それぞれの時間を過ごせる場所とを設けて快適に暮らす
サイエンスホームのスタッフの方のお宅を拝見させてもらったところ、木のぬくもりが素敵に感じ、お願いすることに決めた。家族の気配を感じられる間取り、友達をたくさん呼べる大空間、家具を極力不要に造作してほしい、雰囲気は和モダンと希望は多かったと思う。私たちの理想通りの図面が出てきて、とても驚いた。間取りや内装にまったく不満のない家が完成!子どもたちやペットが付ける床の傷もいい感じに歴史を刻んでいくのだろうと思いながら、木の家での暮らしを楽しんでいる。
サイエンスホームのスタッフの方のお宅を拝見させてもらったところ、木のぬくもりが素敵に感じ、お願いすることに決めた。家族の気配を感じられる間取り、友達をたくさん呼べる大空間、家具を極力不要に造作してほしい、雰囲気は和モダンと希望は多かったと思う。私たちの理想通りの図面が出てきて、とても驚いた。間取りや内装にまったく不満のない家が完成!子どもたちやペットが付ける床の傷もいい感じに歴史を刻んでいくのだろうと思いながら、木の家での暮らしを楽しんでいる。
| 商品名 | - |
| 部材・設備 | - |
| 商品名 | - |
| 部材・設備 | - |
| 延床面積 | 167.00m2 (50.5坪) |
| 敷地面積 | 515.23m2 (155.8坪) |
| 工法 | 木造軸組(真壁づくり) |
| 本体価格 | 2,062万円 |
| 竣工年月 | 2019年11月 |
| 店舗名 | お客様係 |
| 住所 | 静岡県浜松市中央区萩丘3-1-10 |
| 問い合わせ | |
| ホームページ | この会社のホームページへ |
家族が自然と集まれるようカウンターと一体化した大きなダイニングテーブルを造作。食事時には会話が弾む
ダイニング側を吹き抜けにしたのでどこにいても家族の気配が感じられる間取りに
キッチンの奥には収納棚を造作。背面にも棚を配して収納をたっぷり確保した
隅々にまで採光に考慮し、空間を広く使える工夫をしたLDK
奥さまの居室は、ナチュラルの無垢材と落ち着いたアクセントクロスで優しい色合いでまとめた
アクセスの良い1階には木のぬくもりいっぱいのお祖母様の部屋を配した
子どもの様子を1階から感じとれるよう工夫したフリースペース
フリースペースにはカウンターを造作。子どもたちはここで勉強したり、遊んだり
小屋裏勾配フリースペースの壁にカウンターを造作。キッズが宿題をしたり、工作をしたりするスペースとして活用している
リラックスしたひとときを過ごすことかできるKさんの男の城
子どもたちのベットルーム。傾斜した天井がワクワクする空間だ
吹き抜けの周囲をコの字型に囲んだフリースペースはキッズの遊び場だ
勾配天井の小屋裏も有効活用。天井の一部にハンガーパイプを設置して季節の衣類などを収納できるようにしている
片側にアクセントクロスを施したすっきりとシンプルなトイレ
白いクロスが清潔感いっぱいの脱衣洗面所
スペースを最大限に活用するため、玄関正面にはルーバーを目隠しに用いた
玄関にはシュークローゼットを設け、大家族の靴をらくらく収納
大屋根がどっしりと重厚感あふれる外観。軒やドアの無垢材がアクセントに
3世代が一緒に暮らすKさんの家。お互いに気兼ねせず、みんなで過ごす場所と、それぞれの時間を過ごせる場所とを設けて快適に暮らす