鬼丸ホーム

鬼丸ホーム

土地探しからコスパの高い家づくりまで、すべてお任せ!「子育て世代の味方」
お気に入りに追加する
福岡県遠賀郡岡垣町  Mさん
【ガレージ×テラス】ストレスフリーで快適に暮らすことのできるお洒落な家
鬼丸ホーム 【ガレージ×テラス】ストレスフリーで快適に暮らすことのできるお洒落な家の建築実例画像1
  • 本体価格
    3,000万円3,099万円
    74.4万円76.9万円/坪
  • 延床面積
    133.31m2 (40.3坪)
    敷地面積
    307.25m2 (92.9坪)
    家族構成
    夫婦+子ども1人
  • 竣工年月
    2024年6月
    工法
    木造軸組
この会社をもっと知りたくなったら
無料でお届け!まずはカタログ請求

施主Mさんのこだわり

夫婦それぞれの希望を詰め込んだ理想の家に仕上がりました

20代の夫婦で一軒家の建築を決意したMさん。収納量、動線、テイストの全てをこだわりを上手く詰め込み、暮らしやすさだけでなくお洒落さも追求した家を実現。旦那様の趣味であるバイクや筋トレ器具を設置したガレージスペースも確保。広々としたお庭にはテラススペースを設け、バーベキューやお子様との遊び場等、様々な用途で活用できるスペースに。Mさんと担当スタッフで一緒に創り上げた満足のいくお家が完成しました。7月にはお子様が産まれ、新居で3人新生活を楽しみながら過ごしてい… 続きを読む

20代の夫婦で一軒家の建築を決意したMさん。収納量、動線、テイストの全てをこだわりを上手く詰め込み、暮らしやすさだけでなくお洒落さも追求した家を実現。旦那様の趣味であるバイクや筋トレ器具を設置したガレージスペースも確保。広々としたお庭にはテラススペースを設け、バーベキューやお子様との遊び場等、様々な用途で活用できるスペースに。Mさんと担当スタッフで一緒に創り上げた満足のいくお家が完成しました。7月にはお子様が産まれ、新居で3人新生活を楽しみながら過ごしていますとのこと。

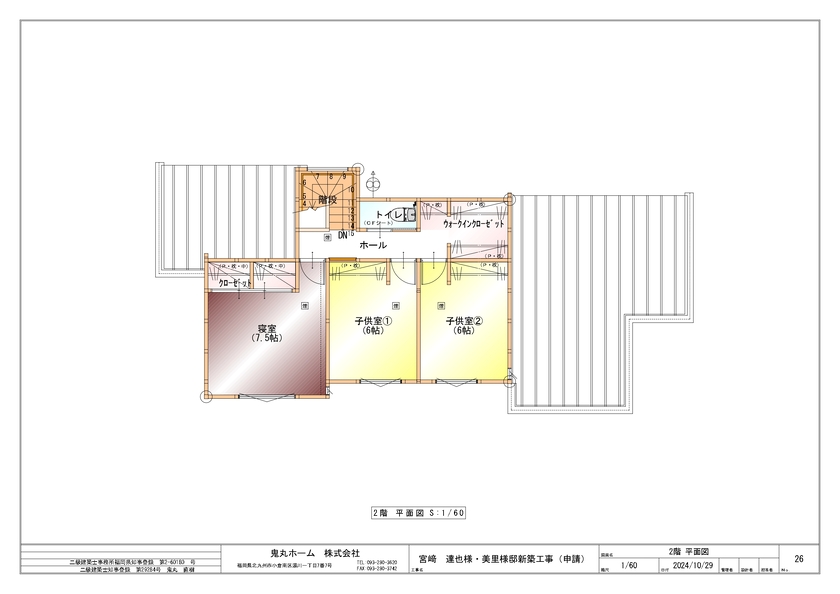
間取り図(4LDK+ガレージ)

1階
鬼丸ホーム 【ガレージ×テラス】ストレスフリーで快適に暮らすことのできるお洒落な家の間取り図(4LDK+ガレージ)1階
2階
鬼丸ホーム 【ガレージ×テラス】ストレスフリーで快適に暮らすことのできるお洒落な家の間取り図(4LDK+ガレージ)2階
この会社をもっと知りたくなったら
無料でお届け!まずはカタログ請求

内外観ギャラリー

この会社をもっと知りたくなったら
無料でお届け!まずはカタログ請求

この会社の他の建築実例を見る

この建築実例が気になった方へおすすめ

この建築実例の詳細情報

この建築実例を建てた店舗情報

住所 福岡県北九州市八幡西区本城学研台1-3-161
問い合わせ
093-932-2282
  • ※営業時間内の対応となります。

  • ※お問い合わせの際は「SUUMO(スーモ)を見て」とお伝え下さい。

ホームページ この会社のホームページへ

鬼丸ホームのコンテンツ一覧

お問い合わせ

カタログをもらう
施工実例集
鬼丸ホームのカタログ(Design Book ~施工実例集~)
Design Book ~施工実例集~
問合コード:1480850001
お問い合わせ先
093-932-2282
  • ※営業時間内の対応となります。

  • ※お問い合わせの際は「SUUMO(スーモ)を見て」とお伝え下さい。

  • 福岡県北九州市八幡西区本城学研台1-3-161

  • 定休日:定休日はございません。

この会社のホームページへ

この会社が気になったら

カタログをもらう
施工実例集
鬼丸ホームのカタログ(Design Book ~施工実例集~)
Design Book ~施工実例集~
問合コード:1480850001

関連キーワード

この建築実例のその他の特徴
ページトップへ戻る