30代半ばに差し掛かった時に「この先何十年も住める理想の家を建てたい」と、マイホーム計画をスタートさせたOさんご夫妻。様々な理由から一度は中断したものの「ジブンハウス」を見つけたことで、再度大きく動き出した。納得できる家づくりのためモデルハウスを何件も見学して回り、そんな中で出会った「ジブンハウス」のモデルハウス。入った瞬間「ここがいい!」と、直感的に感じたのだそう。賃貸住宅では出来ない「自分たち好みの家づくり」を希望していた夫妻にとって、規格住宅の安定・… 続きを読む
30代半ばに差し掛かった時に「この先何十年も住める理想の家を建てたい」と、マイホーム計画をスタートさせたOさんご夫妻。様々な理由から一度は中断したものの「ジブンハウス」を見つけたことで、再度大きく動き出した。納得できる家づくりのためモデルハウスを何件も見学して回り、そんな中で出会った「ジブンハウス」のモデルハウス。入った瞬間「ここがいい!」と、直感的に感じたのだそう。賃貸住宅では出来ない「自分たち好みの家づくり」を希望していた夫妻にとって、規格住宅の安定・安心感にプラスして自由にカスタマイズできることが何よりも魅力的だった。当初は2階建てを希望していたものの、「ジブンハウス」のモデルハウスを見学することで平屋ならではの魅力に気づき、「住みやすそう」「おしゃれ」と好印象。さらに「全部がちょうどいい」と感じた雰囲気の良さと、親身に相談に乗ってくれた社長の人柄と信頼感も相まって「この人になら家づくりを任せられる」と迷うことなく決断。最初の計画から数年を経て、念願のマイホームを手に入れた。外観デザインから内装まで細かくカスタマイズが可能で、リビングの一部に彫り込み天井を設けたり、暮らしやすい生活動線を考えた間取りにしたり。「同じ規格の家と比べてもまったく違う表情の家が完成しました」と嬉しそうに話してくれた。
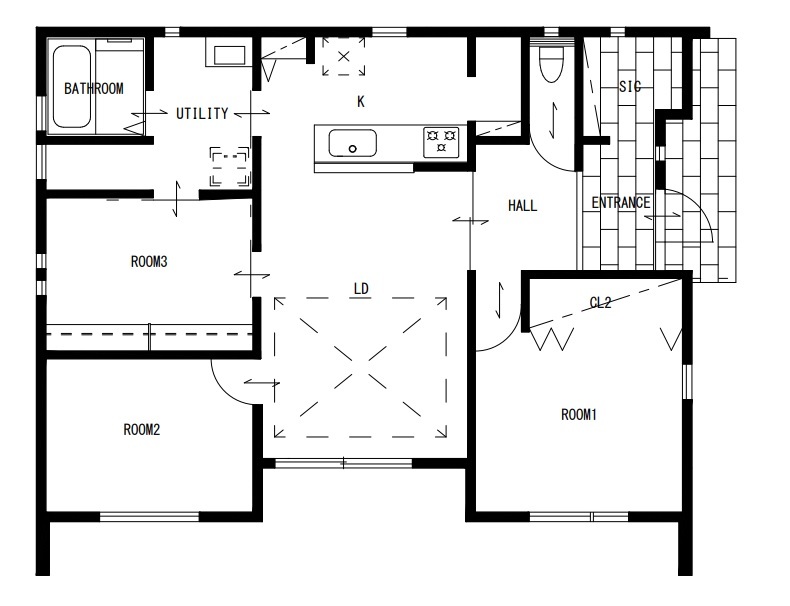
ウォークインクロゼットとパウダールームを扉で繋げるようカスタマイズし生活動線にもこだわった。規格プランをベース… 続きを読む
ウォークインクロゼットとパウダールームを扉で繋げるようカスタマイズし生活動線にもこだわった。規格プランをベースにライフスタイルを考慮し、自分たち仕様に創り上げることができる
| 住所 | 東京都港区西麻布2丁目20‐16 |
| 問い合わせ | |
| ホームページ | この会社のホームページへ |