30坪という限られた土地の可能性を最大限に引き出した、3階建の住まい。最もこだわったのは、3台分の駐車スペースと趣味の空間を兼ねたビルトインガレージ。愛車を雨風から守り、いつでも眺められる夢のような空間は、まさに「大人の隠れ家」。ガレージと繋がる1階の洋室は、コレクションルームや作業部屋としても活用でき、暮らしを豊かに彩ります。家族が集まる2階は、開放感あふれるLDK。3階まで繋がる吹抜けが、視覚的な広がりと心地よい風通しをもたらします。キッチン横には、週… 続きを読む
30坪という限られた土地の可能性を最大限に引き出した、3階建の住まい。最もこだわったのは、3台分の駐車スペースと趣味の空間を兼ねたビルトインガレージ。愛車を雨風から守り、いつでも眺められる夢のような空間は、まさに「大人の隠れ家」。ガレージと繋がる1階の洋室は、コレクションルームや作業部屋としても活用でき、暮らしを豊かに彩ります。家族が集まる2階は、開放感あふれるLDK。3階まで繋がる吹抜けが、視覚的な広がりと心地よい風通しをもたらします。キッチン横には、週末にBBQやリラックスタイムを楽しめるルーフバルコニーを配置。プライベートな空間で、家族や友人と楽しい時間を過ごせます。各フロアには適材適所の収納スペースを確保。玄関横にはベビーカーや外遊びグッズもスッキリ収まるシューズクローク。キッチン横には食品ストックに便利な収納棚。さらにウォークインクローゼットや季節家電用の収納など、デッドスペースを活かした工夫が随所に散りばめられています。「限られた土地でも理想の住まいを叶えたい。」という思いから生まれたイエ。シンプルながらも洗練されたデザインと、家族のライフスタイルに寄り添う機能性が融合した、唯一無二の住まいが完成しました。
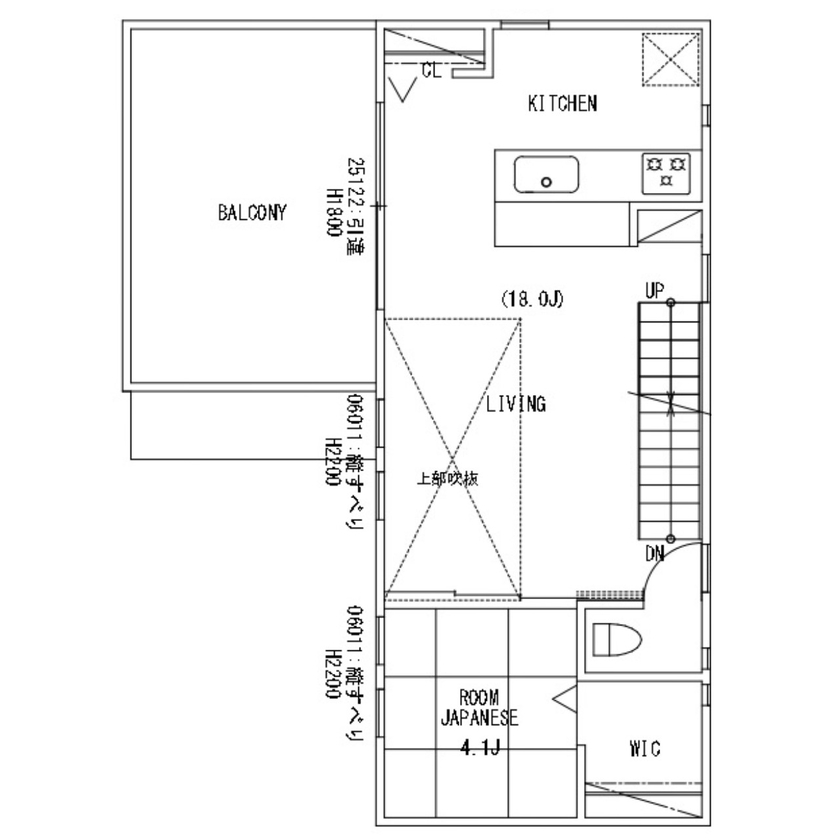
LDKと隣接した和室は、来客時は扉を閉めてプライベートな空間として、普段は扉を開けてLDKと一体化した開放的な… 続きを読む
LDKと隣接した和室は、来客時は扉を閉めてプライベートな空間として、普段は扉を開けてLDKと一体化した開放的な空間として利用できる。子どもの遊び場や昼寝スペース、時には客間としても活用でき、多様なライフスタイルに対応する柔軟性を備えている。現代的なデザインと和の要素が融合した、多目的に利用できる使い勝手の良い和室である。
| 商品名 | - |
| 部材・設備 | - |
| 商品名 | - |
| 部材・設備 | - |
| 延床面積 | 140.00m2 (42.3坪) |
| 敷地面積 | 102.00m2 (30.8坪) |
| 工法 | 木造軸組 |
| 本体価格 | 2,500万円~2,999万円 |
| 竣工年月 | 2025年7月 |
| 住所 | 福岡県福岡市南区大楠1-8-19 アート大楠ビル1階 |
| 問い合わせ | |
| ホームページ | この会社のホームページへ |
※営業時間内の対応となります。
※お問い合わせの際は「SUUMO(スーモ)を見て」とお伝え下さい。
福岡県福岡市南区大楠1-8-19 アート大楠ビル1階
定休日:水曜日