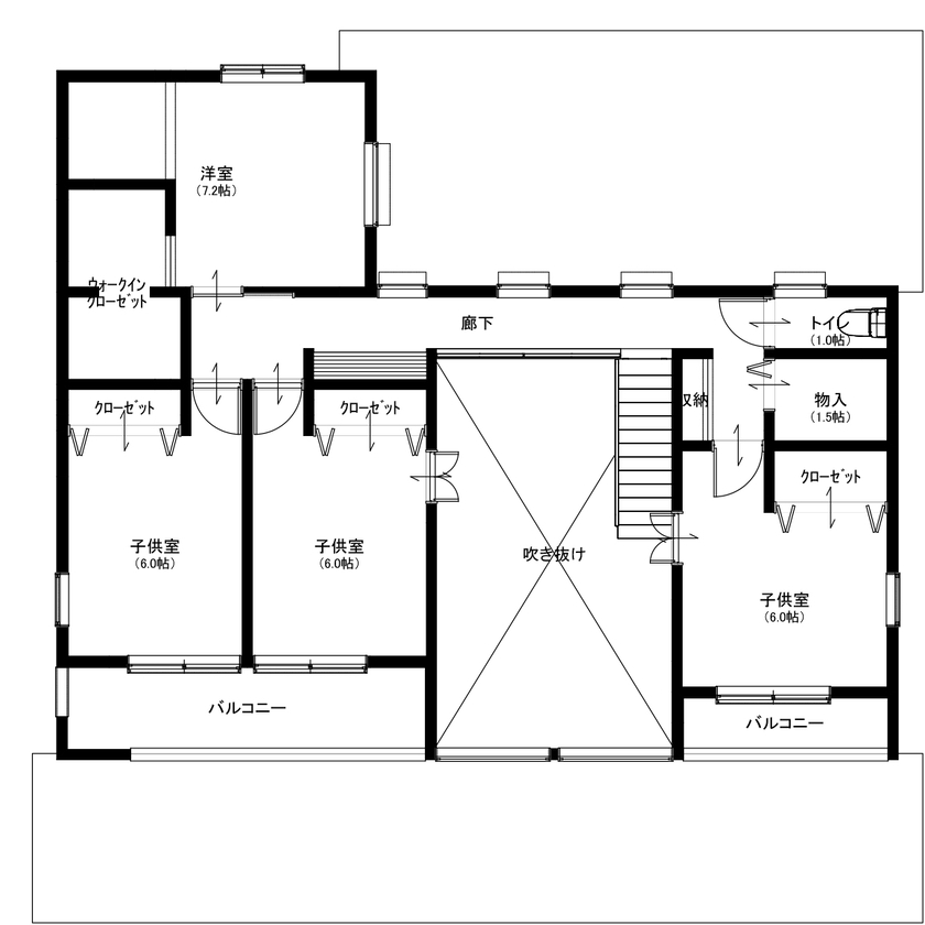
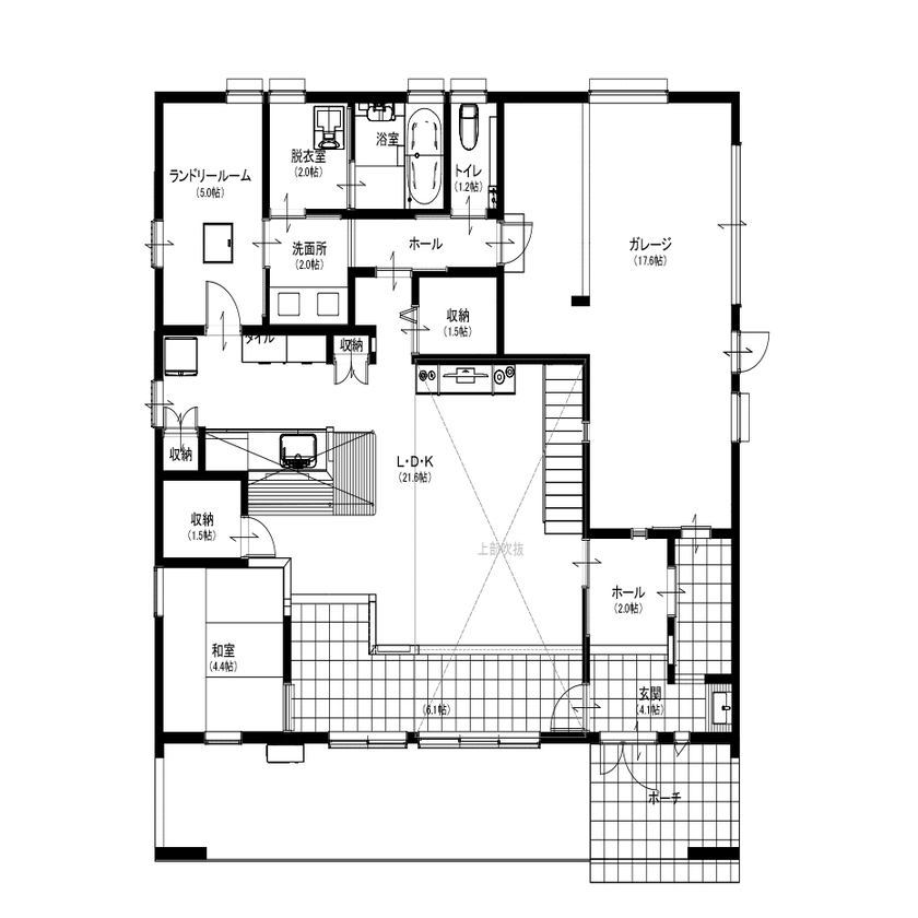
建てたい家のイメージはあったもののそれに沿った建築をして頂ける会社に出会う事が出来ました。決め手は自分のペースで家づくりが出来たこと。やりたいことが沢山ありましたが、一つひとつ納得いくまでしっかり検討できてよかったです。完成後改めてコスパの良さも実感しています。特徴はリビング土間と作業場としても使えるガレージ、室内はインダストリアルスタイルで統一感を出してオリジナリティを形にしました。アイシネンの断熱材で大空間でも光熱費を抑えられ、電気代が節約できるのも魅… 続きを読む
建てたい家のイメージはあったもののそれに沿った建築をして頂ける会社に出会う事が出来ました。決め手は自分のペースで家づくりが出来たこと。やりたいことが沢山ありましたが、一つひとつ納得いくまでしっかり検討できてよかったです。完成後改めてコスパの良さも実感しています。特徴はリビング土間と作業場としても使えるガレージ、室内はインダストリアルスタイルで統一感を出してオリジナリティを形にしました。アイシネンの断熱材で大空間でも光熱費を抑えられ、電気代が節約できるのも魅力。住み心地は快適そのもの。
夢が詰まった自慢のガレージ、ロフト付き
夢が詰まった自慢のガレージ、ロフト付き
| 商品名 | - |
| 部材・設備 | 造作手洗い・ビルトインガレージ・OSBボード・ロフト・スケルトン階段・見せ梁・内装タイル・特注カウンター・吹き抜け・折り下げ天井・フロアタイル・小上がり・フルサイズ洗面・本棚・土間・無垢床・アイシネン |
| 商品名 | - |
| 部材・設備 | 造作手洗い・ビルトインガレージ・OSBボード・ロフト・スケルトン階段・見せ梁・内装タイル・特注カウンター・吹き抜け・折り下げ天井・フロアタイル・小上がり・フルサイズ洗面・本棚・土間・無垢床・アイシネン |
| 延床面積 | 199.85m2 (60.4坪) |
| 敷地面積 | 418.00m2 (126.4坪) |
| 工法 | 木造軸組(アイシネン断熱) |
| 本体価格 | 2,500万円~2,999万円 |
| 竣工年月 | 2023年9月 |
| 店舗名 | 久留米本社 |
| 住所 | 福岡県久留米市藤光1-9-17 |
| 問い合わせ | |
| ホームページ | この会社のホームページへ |
※営業時間内の対応となります。
※お問い合わせの際は「SUUMO(スーモ)を見て」とお伝え下さい。
福岡県久留米市藤光1-9-17
定休日:水曜日