リバティーホーム ココチヨイ家

リバティーホーム ココチヨイ家

【久留米・佐賀】納得いくまで、話そう、考えよう、楽しもう。ずっと大切にしたい家
お気に入りに追加する
福岡県久留米市  Nさん
【2000万円台/3LDK/間取り付】無垢の床。家族がゆったり過ごせる広々リビング×カフェテイストと趣味の部屋
リバティーホーム ココチヨイ家 【2000万円台/3LDK/間取り付】無垢の床。家族がゆったり過ごせる広々リビング×カフェテイストと趣味の部屋の建築実例画像1
  • 本体価格
    2,000万円2,499万円
    40.1万円50.2万円/坪
  • 延床面積
    164.89m2 (49.8坪)
    敷地面積
    189.42m2 (57.2坪)
    家族構成
    -
  • 竣工年月
    2021年1月
    工法
    木造軸組
この会社をもっと知りたくなったら
無料でお届け!まずはカタログ請求

施主Nさんのこだわり

つま先から感じとる無垢の温かさと、肉眼でキャッチするスマートな空間

「カフェ巡りが趣味なわたしたちにとって、おうちでもコーヒータイムを楽しめる空間づくりを意識しました」とNさん。特にキッチンスペースにはこだわり、設計士さんの提案でスタイリッシュなオープン棚を設置。家族みんなが集まるリビングを広く取りつつ、突然の来訪があっても窮屈に感じさせない空間を確保したかったので和テイスト(和室)も取り入れてたのだとか。スタイリッシュなデザイン提案だけでなく、性能面も非常に納得のいくものです。リバティーホームは特に断熱性能にこだわりが強… 続きを読む

「カフェ巡りが趣味なわたしたちにとって、おうちでもコーヒータイムを楽しめる空間づくりを意識しました」とNさん。特にキッチンスペースにはこだわり、設計士さんの提案でスタイリッシュなオープン棚を設置。家族みんなが集まるリビングを広く取りつつ、突然の来訪があっても窮屈に感じさせない空間を確保したかったので和テイスト(和室)も取り入れてたのだとか。スタイリッシュなデザイン提案だけでなく、性能面も非常に納得のいくものです。リバティーホームは特に断熱性能にこだわりが強く、季節を問わず一年中快適に過ごせます。デザインや性能はもちろんですが、1番のお気に入りは素足でも感じられる無垢材の心地よさと香りが自然のエネルギーを与えてくれていつも心を癒してくれます。※社員邸

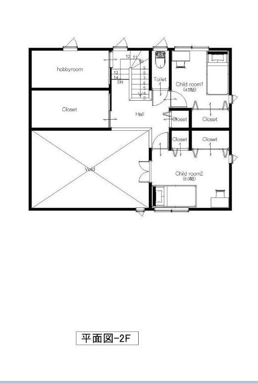
間取り図(3LDK+趣味部屋)

1階
リバティーホーム ココチヨイ家 【2000万円台/3LDK/間取り付】無垢の床。家族がゆったり過ごせる広々リビング×カフェテイストと趣味の部屋の間取り図(3LDK+趣味部屋)1階
2階
リバティーホーム ココチヨイ家 【2000万円台/3LDK/間取り付】無垢の床。家族がゆったり過ごせる広々リビング×カフェテイストと趣味の部屋の間取り図(3LDK+趣味部屋)2階
この会社をもっと知りたくなったら
無料でお届け!まずはカタログ請求

内外観ギャラリー

この会社をもっと知りたくなったら
無料でお届け!まずはカタログ請求

この会社の他の建築実例を見る

この建築実例が気になった方へおすすめ

この建築実例の詳細情報

この建築実例を建てた店舗情報

店舗名 久留米本社
住所 福岡県久留米市藤光1-9-17
問い合わせ
0120-355-419
  • ※営業時間内の対応となります。

  • ※お問い合わせの際は「SUUMO(スーモ)を見て」とお伝え下さい。

ホームページ この会社のホームページへ

リバティーホーム ココチヨイ家のコンテンツ一覧

お問い合わせ

カタログをもらう
施工実例集
リバティーホーム ココチヨイ家のカタログ(ココチヨイ家 写真集)
ココチヨイ家 写真集
問合コード:1411540001
お問い合わせ先
0120-355-419
  • ※営業時間内の対応となります。

  • ※お問い合わせの際は「SUUMO(スーモ)を見て」とお伝え下さい。

久留米本社
  • 福岡県久留米市藤光1-9-17

  • 定休日:水曜日

この会社のホームページへ

この会社が気になったら

カタログをもらう
施工実例集
リバティーホーム ココチヨイ家のカタログ(ココチヨイ家 写真集)
ココチヨイ家 写真集
問合コード:1411540001

関連キーワード

この建築実例のその他の特徴
ページトップへ戻る