昭和住宅

昭和住宅

【北九州】住むほどに愛着が深まる。創業から50年以上続く、地元無垢材で建てる家
お気に入りに追加する
福岡県北九州市八幡西区  Fさん
【北九州市八幡西区/2919万円/間取図有】「お気に入りは爽やかリビング」地域材を使い職人が建てる木の家
昭和住宅 【北九州市八幡西区/2919万円/間取図有】「お気に入りは爽やかリビング」地域材を使い職人が建てる木の家の建築実例画像1
  • 本体価格
    2,919万円
    81.8万円/坪
  • 延床面積
    117.99m2 (35.6坪)
    敷地面積
    213.79m2 (64.6坪)
    家族構成
    夫婦+子ども1人
  • 竣工年月
    2020年4月
    工法
    木造軸組
この会社をもっと知りたくなったら
無料でお届け!まずはカタログ請求

施主Fさんのこだわり

暮らすほどに快適実感、遊び心のある住まいで毎日元気いっぱい!

「マンションが手狭になり暮らすうえで不便なことも多かったことからマイホームを考え始めました」と話すFさん。依頼先を探す中で地元工務店の昭和住宅に出会った。「地域の木材で建てることや大工さんの話など説明してもらい、ここなら希望通りの家が建てられると思い決めました」。実現したのは1階が生活の中心となる平屋をベースに、登り梁のある勾配天井の広々リビングの吹き抜けの延長に、中2階と洋室を配したダイナミックなプラン。随所に設けた物入れや本がたっぷり仕舞える書庫もあり… 続きを読む

「マンションが手狭になり暮らすうえで不便なことも多かったことからマイホームを考え始めました」と話すFさん。依頼先を探す中で地元工務店の昭和住宅に出会った。「地域の木材で建てることや大工さんの話など説明してもらい、ここなら希望通りの家が建てられると思い決めました」。実現したのは1階が生活の中心となる平屋をベースに、登り梁のある勾配天井の広々リビングの吹き抜けの延長に、中2階と洋室を配したダイナミックなプラン。随所に設けた物入れや本がたっぷり仕舞える書庫もあり、まだまだ収納スペースには余裕も。また、その中2階スキップフロアの書斎スペースからリビングが見下ろせたり、子どもを見守れながら遊ばせられる、プランのほぼ中央に設けたコの字型のウッドデッキなど、機能的な設えが暮らしを楽しく演出してくれている。暮らすほどに快適を実感する家。元気に駆け回る子どもの姿が、何よりこの家の心地よさを物語っている

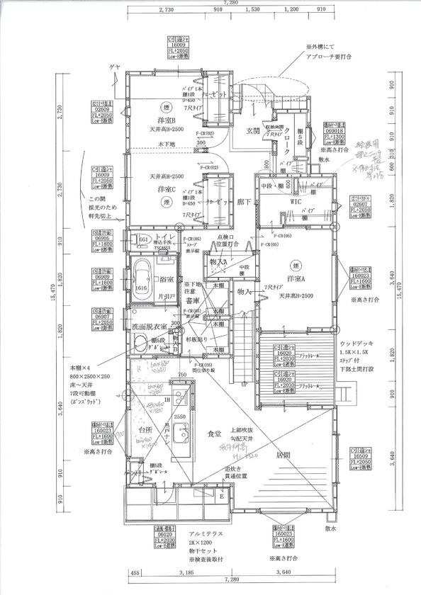
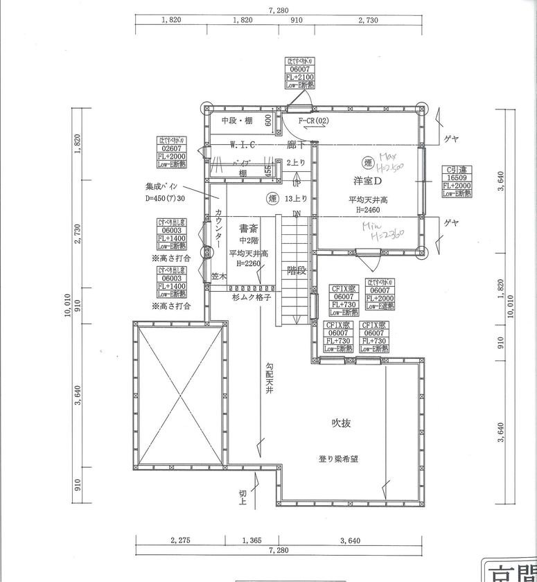
間取り図(4LDK+書斎)

1階
昭和住宅 【北九州市八幡西区/2919万円/間取図有】「お気に入りは爽やかリビング」地域材を使い職人が建てる木の家の間取り図(4LDK+書斎)1階
2階
昭和住宅 【北九州市八幡西区/2919万円/間取図有】「お気に入りは爽やかリビング」地域材を使い職人が建てる木の家の間取り図(4LDK+書斎)2階
この会社をもっと知りたくなったら
無料でお届け!まずはカタログ請求

内外観ギャラリー

この会社をもっと知りたくなったら
無料でお届け!まずはカタログ請求

この会社の他の建築実例を見る

この建築実例が気になった方へおすすめ

  • この建築実例のカタログをもらう

    昭和住宅のカタログ画像
    施工実例集
    過去事例の間取り図・価格を知れる!昭和住宅の実例集
    昭和住宅の総合カタログです。
  • モデルハウスを見学する

    昭和住宅のモデルハウス画像1
    昭和住宅のモデルハウス画像2
    • 延床面積
      131.33m239.7坪)
    • 所在地
      福岡県北九州市八幡西区町上津役西4-2-16
    • 営業時間
      10:00~17:00(定休日:お盆、年末年始)
    • ナチュラル
    • 和モダン
    • 子育て
    • 外と繋がる
  • イベントに参加する

    昭和住宅のイベント画像
    【事前予約/八幡西区】無垢材の家は高いと諦めてない?予算内で叶える、心地よい暮らし発見プラン相談会
    • 設計・資金相談会
    • 完成見学会
    • 土地相談会
    開催日
    随時
    開催場所
    福岡県北九州市八幡西区町上津役西4-2-16

この建築実例の詳細情報

この建築実例を建てた店舗情報

住所 福岡県北九州市八幡西区町上津役西4-2-16
問い合わせ
093-612-0228
  • ※営業時間内の対応となります。

  • ※お問い合わせの際は「SUUMO(スーモ)を見て」とお伝え下さい。

ホームページ この会社のホームページへ

昭和住宅のコンテンツ一覧

お問い合わせ

カタログをもらう
施工実例集
昭和住宅のカタログ(過去事例の間取り図・価格を知れる!昭和住宅の実例集)
過去事例の間取り図・価格を知れる!昭和住宅の実例集
問合コード:1016380001
イベントに参加する
お問い合わせ先
093-612-0228
  • ※営業時間内の対応となります。

  • ※お問い合わせの際は「SUUMO(スーモ)を見て」とお伝え下さい。

  • 福岡県北九州市八幡西区町上津役西4-2-16

  • 定休日:なし

この会社のホームページへ

この会社が気になったら

カタログをもらう
施工実例集
昭和住宅のカタログ(過去事例の間取り図・価格を知れる!昭和住宅の実例集)
過去事例の間取り図・価格を知れる!昭和住宅の実例集
問合コード:1016380001
イベントに参加する

関連キーワード

ページトップへ戻る