昭和住宅

昭和住宅

【北九州】住むほどに愛着が深まる。創業から50年以上続く、地元無垢材で建てる家
お気に入りに追加する
福岡県北九州市小倉南区  Hさん
【北九州市/2390万円/間取図有】木組みのリビングに光が降り注ぐ 子育ても将来も安心な「平屋の家」
  • 本体価格
    2,390万円
    83.0万円/坪
  • 延床面積
    95.23m2 (28.8坪)
    敷地面積
    235.09m2 (71.1坪)
    家族構成
    夫婦+子ども2人
    竣工年月
    2018年5月
    工法
    木造軸組
  • 特徴
    耐震・免震・制震  |  省エネ・創エネ・エコ(eco)  |  収納充実  |  家事がラク  |  高耐久  |  高気密・高断熱  |  防音・遮音  |  …
この会社をもっと知りたくなったら
無料でお届け!まずはカタログ請求

施主Hさんのこだわり

土地探し~設計相談がワンストップ 自然素材の風合いに囲まれて憩う

土地探しから検討していたHさんご家族は、納得いくまで土地選びと設計を昭和住宅に依頼。コンセプトハウス来場から契約まで、かかった期間は約10か月。決まったエリアの中で何度も候補地を吟味し、「最終的に決定した土地は、ネットに出たその日に担当営業さんと同じタイミングで連絡し合いました(笑)」。その間何回か参考プランの提案を受けたせいか土地が決定した際、プランニングはスムーズで予算もクリア。契約は早かったらしい。「プランの希望はアイランドキッチン。水まわりの動線が… 続きを読む

土地探しから検討していたHさんご家族は、納得いくまで土地選びと設計を昭和住宅に依頼。コンセプトハウス来場から契約まで、かかった期間は約10か月。決まったエリアの中で何度も候補地を吟味し、「最終的に決定した土地は、ネットに出たその日に担当営業さんと同じタイミングで連絡し合いました(笑)」。その間何回か参考プランの提案を受けたせいか土地が決定した際、プランニングはスムーズで予算もクリア。契約は早かったらしい。「プランの希望はアイランドキッチン。水まわりの動線がスムーズな事。主人の趣味がアウトドアなので、大きめのシューズインクロークも欲しい。子どものアレルギーが心配なので本物の木で、冷暖房効率のいい家」と、まさに昭和住宅の建築コンセプトとガチっとはまったとHさん夫婦。こうして断熱材に自然素材のセルロースファイバー、丸太の梁を現しにしたリビング、床には無垢材、壁はミネラルの含んだ粘土壁と、自然素材に囲まれた子どもたちに安心安全な住まいが完成した。ここでは今日も優しい光が家族を包んでくれる

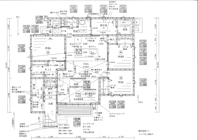
間取り図(3LDK)

1階
昭和住宅 【北九州市/2390万円/間取図有】木組みのリビングに光が降り注ぐ 子育ても将来も安心な「平屋の家」の間取り図(3LDK)1階

この会社をもっと知りたくなったら
無料でお届け!まずはカタログ請求

内外観ギャラリー

この会社をもっと知りたくなったら
無料でお届け!まずはカタログ請求

施主Hさんがこの会社に決めた理由

土地探し~設計相談がワンストップ。納得いくまでプロ目線でアドバイスをもらえた

土地探しから検討していたHさんご家族は、納得いくまで土地選びと設計を昭和住宅に依頼。コンセプトハウス来場から契約まで、かかった期間は約10か月。決まったエリアの中で何度も候補地を吟味し、「最終的に決定した土地は、ネットに出たその日に担当営業さんと同じタイミングで連絡し合いました(笑)」。その間何回か参考プランの提案を受けたせいか土地が決定した際、プランニングはスムーズで予算もクリア。契約は早かったらしい。「プランの希望はアイランドキッチン。水まわりの動線が… 続きを読む

土地探しから検討していたHさんご家族は、納得いくまで土地選びと設計を昭和住宅に依頼。コンセプトハウス来場から契約まで、かかった期間は約10か月。決まったエリアの中で何度も候補地を吟味し、「最終的に決定した土地は、ネットに出たその日に担当営業さんと同じタイミングで連絡し合いました(笑)」。その間何回か参考プランの提案を受けたせいか土地が決定した際、プランニングはスムーズで予算もクリア。契約は早かったらしい。「プランの希望はアイランドキッチン。水まわりの動線がスムーズな事。主人の趣味がアウトドアなので、大きめのシューズインクロークも欲しい。子どものアレルギーが心配なので本物の木で、冷暖房効率のいい家」と、まさに昭和住宅の建築コンセプトとガチっとはまったとHさん夫婦。こうして断熱材に自然素材のセルロースファイバー、丸太の梁を現しにしたリビング、床には無垢材、壁はミネラルの含んだ粘土壁と、自然素材に囲まれた子どもたちに安心安全な住まいが完成しました

この建築実例の担当者より

施主の理想を叶えるため土地探しからプランまで徹底的に伴走

希望のエリアが決まっていたため土地探しには時間がかかりましたが、「どんな家で過ごすか?」と同じくらい「この先の人生、どの場所で生活をするか?」はお客様にとって非常に重要なことと考え、徹底的に伴走しました。最終的に決定した土地は、ネットに情報が出たその日にお互いに連絡しあってしまうような物件でした。土地を購入される前にも2回程他の土地でプランをご提案していたのでその後のプラン提案や家づくりはスムーズに進みました。セルロースファイバー断熱や塗り壁、弊社が使用し… 続きを読む

希望のエリアが決まっていたため土地探しには時間がかかりましたが、「どんな家で過ごすか?」と同じくらい「この先の人生、どの場所で生活をするか?」はお客様にとって非常に重要なことと考え、徹底的に伴走しました。最終的に決定した土地は、ネットに情報が出たその日にお互いに連絡しあってしまうような物件でした。土地を購入される前にも2回程他の土地でプランをご提案していたのでその後のプラン提案や家づくりはスムーズに進みました。セルロースファイバー断熱や塗り壁、弊社が使用している自然素材の風合いを気に入ってくださったので、それらを取り入れつつご家族の今後の生活にあわせたプランニングを意識しました。キッチン・水回り動線は使い勝手もよくおすすめの間取りですよ!明るいLDKで家族団らん気持ちよく過ごされているというお話を伺うと、私たちも非常にうれしくなります。

昭和住宅の担当者画像
代表取締役社長
三徳屋 浩
得意分野
ラフスケッチによる完全フリープランのご提案。無垢材とセルロース断熱の設計・施工

この会社の他の建築実例を見る

この建築実例が気になった方へおすすめ

  • この建築実例のカタログをもらう

    昭和住宅のカタログ画像
    施工実例集
    過去事例の間取り図・価格を知れる!昭和住宅の実例集
    昭和住宅の総合カタログです。
  • モデルハウスを見学する

    昭和住宅のモデルハウス画像1
    昭和住宅のモデルハウス画像2
    • 延床面積
      131.33m239.7坪)
    • 所在地
      福岡県北九州市八幡西区町上津役西4-2-16
    • 営業時間
      10:00~17:00(定休日:お盆、年末年始)
    • ナチュラル
    • 和モダン
    • 子育て
    • 外と繋がる
  • イベントに参加する

    昭和住宅のイベント画像
    【事前予約/八幡西区】無垢材の家は高いと諦めてない?予算内で叶える、心地よい暮らし発見プラン相談会
    • 設計・資金相談会
    • 完成見学会
    • 土地相談会
    開催日
    随時
    開催場所
    福岡県北九州市八幡西区町上津役西4-2-16

この建築実例の詳細情報

この建築実例を建てた店舗情報

住所 福岡県北九州市八幡西区町上津役西4-2-16
問い合わせ
093-612-0228
  • ※営業時間内の対応となります。

  • ※お問い合わせの際は「SUUMO(スーモ)を見て」とお伝え下さい。

ホームページ この会社のホームページへ

昭和住宅のコンテンツ一覧

お問い合わせ

カタログをもらう
施工実例集
昭和住宅のカタログ(過去事例の間取り図・価格を知れる!昭和住宅の実例集)
過去事例の間取り図・価格を知れる!昭和住宅の実例集
問合コード:1016380001
イベントに参加する
お問い合わせ先
093-612-0228
  • ※営業時間内の対応となります。

  • ※お問い合わせの際は「SUUMO(スーモ)を見て」とお伝え下さい。

  • 福岡県北九州市八幡西区町上津役西4-2-16

  • 定休日:なし

この会社のホームページへ

この会社が気になったら

カタログをもらう
施工実例集
昭和住宅のカタログ(過去事例の間取り図・価格を知れる!昭和住宅の実例集)
過去事例の間取り図・価格を知れる!昭和住宅の実例集
問合コード:1016380001
イベントに参加する

関連キーワード

ページトップへ戻る