昭和住宅

昭和住宅

【北九州】住むほどに愛着が深まる。創業から50年以上続く、地元無垢材で建てる家
お気に入りに追加する
福岡県飯塚市下三緒  Sさん
【飯塚市下三緒/3935万円/間取図有】ぐるぐる回る、すくすく育つ!平屋暮らしの魅力が詰まった住まい
昭和住宅 【飯塚市下三緒/3935万円/間取図有】ぐるぐる回る、すくすく育つ!平屋暮らしの魅力が詰まった住まいの建築実例画像1
  • 本体価格
    3,935万円
    84.9万円/坪
  • 延床面積
    153.22m2 (46.3坪)
    敷地面積
    350.36m2 (105.9坪)
    家族構成
    夫婦+子ども3人
  • 竣工年月
    2019年10月
    工法
    木造軸組
この会社をもっと知りたくなったら
無料でお届け!まずはカタログ請求

施主Sさんのこだわり

「自社一貫体制」でコストを抑えながらこだわりの家を形に

子どもたちが元気に駆け回れる平屋建てが希望のSさんの住まい。小上がりの和室を備えた大きめのリビングルームを中心に考えられたプランで、自在に動き回れる回遊性が特徴。「担当者の方と一緒になって間取りを何回も検討したり、水回りの設備や壁紙、小さなスイッチプレートに至るまで、とことんこだわったので、すべて気に入っています。皆さんが自分の好みを理解して提案してくれたところも多く、とても感謝しています。家中が思い通りのわが家になりました。」リビングルームやトイレの間接… 続きを読む

子どもたちが元気に駆け回れる平屋建てが希望のSさんの住まい。小上がりの和室を備えた大きめのリビングルームを中心に考えられたプランで、自在に動き回れる回遊性が特徴。「担当者の方と一緒になって間取りを何回も検討したり、水回りの設備や壁紙、小さなスイッチプレートに至るまで、とことんこだわったので、すべて気に入っています。皆さんが自分の好みを理解して提案してくれたところも多く、とても感謝しています。家中が思い通りのわが家になりました。」リビングルームやトイレの間接照明、身長の測れる壁紙、洗面脱衣室の引き出せるタオルバー、断熱効果を考えたセルロース吹付断熱や外壁総タイル貼り等、こだわった中にも性能や耐久性もきちんと重視。大満足の家となりました

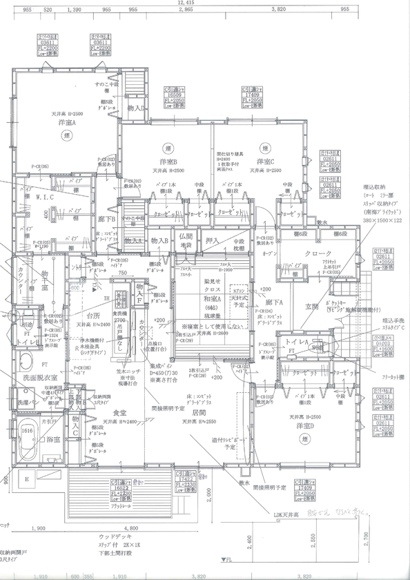
間取り図(5LDK)

1階
昭和住宅 【飯塚市下三緒/3935万円/間取図有】ぐるぐる回る、すくすく育つ!平屋暮らしの魅力が詰まった住まいの間取り図(5LDK)1階
この会社をもっと知りたくなったら
無料でお届け!まずはカタログ請求

内外観ギャラリー

この会社をもっと知りたくなったら
無料でお届け!まずはカタログ請求

この会社の他の建築実例を見る

この建築実例が気になった方へおすすめ

  • この建築実例のカタログをもらう

    昭和住宅のカタログ画像
    施工実例集
    過去事例の間取り図・価格を知れる!昭和住宅の実例集
    昭和住宅の総合カタログです。
  • モデルハウスを見学する

    昭和住宅のモデルハウス画像1
    昭和住宅のモデルハウス画像2
    • 延床面積
      131.33m239.7坪)
    • 所在地
      福岡県北九州市八幡西区町上津役西4-2-16
    • 営業時間
      10:00~17:00(定休日:お盆、年末年始)
    • ナチュラル
    • 和モダン
    • 子育て
    • 外と繋がる
  • イベントに参加する

    昭和住宅のイベント画像
    【事前予約/八幡西区】無垢材の家は高いと諦めてない?予算内で叶える、心地よい暮らし発見プラン相談会
    • 設計・資金相談会
    • 完成見学会
    • 土地相談会
    開催日
    随時
    開催場所
    福岡県北九州市八幡西区町上津役西4-2-16

この建築実例の詳細情報

この建築実例を建てた店舗情報

住所 福岡県北九州市八幡西区町上津役西4-2-16
問い合わせ
093-612-0228
  • ※営業時間内の対応となります。

  • ※お問い合わせの際は「SUUMO(スーモ)を見て」とお伝え下さい。

ホームページ この会社のホームページへ

昭和住宅のコンテンツ一覧

お問い合わせ

カタログをもらう
施工実例集
昭和住宅のカタログ(過去事例の間取り図・価格を知れる!昭和住宅の実例集)
過去事例の間取り図・価格を知れる!昭和住宅の実例集
問合コード:1016380001
イベントに参加する
お問い合わせ先
093-612-0228
  • ※営業時間内の対応となります。

  • ※お問い合わせの際は「SUUMO(スーモ)を見て」とお伝え下さい。

  • 福岡県北九州市八幡西区町上津役西4-2-16

  • 定休日:なし

この会社のホームページへ

この会社が気になったら

カタログをもらう
施工実例集
昭和住宅のカタログ(過去事例の間取り図・価格を知れる!昭和住宅の実例集)
過去事例の間取り図・価格を知れる!昭和住宅の実例集
問合コード:1016380001
イベントに参加する

関連キーワード

ページトップへ戻る