辰巳住宅

辰巳住宅

機能性はもちろん感性にも響くデザインで、お客様の想いをかたちにする家づくり
お気に入りに追加する
福岡県中間市  Aさん
【美容室/2階リビング/間取り図有】愛猫・愛犬との暮らしを楽しめる店舗併用住宅
辰巳住宅 【美容室/2階リビング/間取り図有】愛猫・愛犬との暮らしを楽しめる店舗併用住宅の建築実例画像1
  • 本体価格
    2,000万円2,099万円
    60.5万円63.5万円/坪
  • 延床面積
    109.30m2 (33.0坪)
    敷地面積
    221.04m2 (66.8坪)
    家族構成
    夫婦 + 猫3匹 + 犬1匹
  • 竣工年月
    -
    工法
    木造軸組
この会社をもっと知りたくなったら
無料でお届け!まずはカタログ請求

施主Aさんのこだわり

親身な営業の方との出会いで理想的な美容室兼住居が実現

「注文住宅で美容室兼住宅を建てたい」と、知人を通して知った同社の永犬丸モデルハウスを訪ねたAさん夫婦。そこで出会ったのが営業担当の梅津さんだ。「希望するエリアの土地の提案や資金のことなど、本当に親身になって一緒に考えてくれました。人柄・対応のよさももちろんですが、家づくりのことを情熱的に話してくれる梅津さんと家を作りたいと思いました。」と話してくれた。

「注文住宅で美容室兼住宅を建てたい」と、知人を通して知った同社の永犬丸モデルハウスを訪ねたAさん夫婦。そこで出会ったのが営業担当の梅津さんだ。「希望するエリアの土地の提案や資金のことなど、本当に親身になって一緒に考えてくれました。人柄・対応のよさももちろんですが、家づくりのことを情熱的に話してくれる梅津さんと家を作りたいと思いました。」と話してくれた。

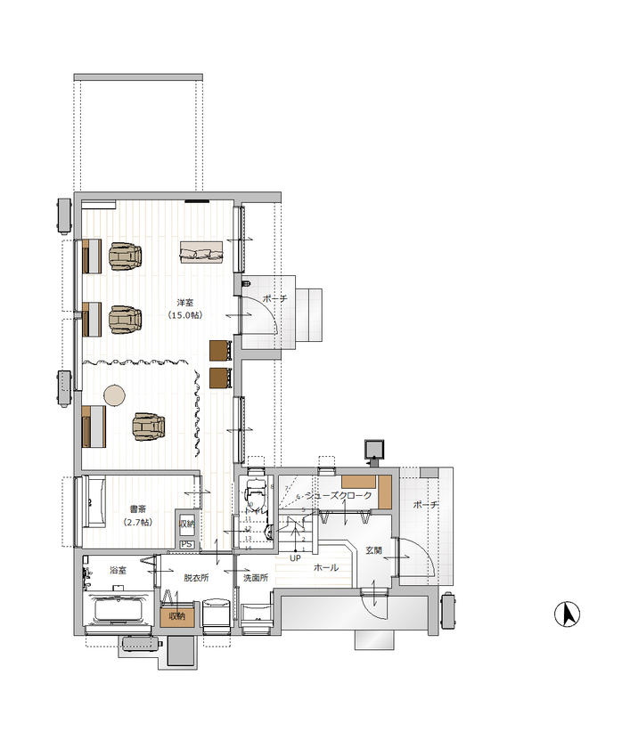
間取り図(2LDK + 美容室)

1階
辰巳住宅 【美容室/2階リビング/間取り図有】愛猫・愛犬との暮らしを楽しめる店舗併用住宅の間取り図(2LDK + 美容室)1階
2階
辰巳住宅 【美容室/2階リビング/間取り図有】愛猫・愛犬との暮らしを楽しめる店舗併用住宅の間取り図(2LDK + 美容室)2階
この会社をもっと知りたくなったら
無料でお届け!まずはカタログ請求

内外観ギャラリー

この会社をもっと知りたくなったら
無料でお届け!まずはカタログ請求

この会社の他の建築実例を見る

この建築実例が気になった方へおすすめ

この建築実例の詳細情報

この建築実例を建てた店舗情報

住所 福岡県北九州市八幡西区幸神4-7-4
問い合わせ
0120-30-2501
  • ※営業時間内の対応となります。

  • ※お問い合わせの際は「SUUMO(スーモ)を見て」とお伝え下さい。

ホームページ この会社のホームページへ

辰巳住宅のコンテンツ一覧

お問い合わせ

カタログをもらう
お問い合わせ先
0120-30-2501
  • ※営業時間内の対応となります。

  • ※お問い合わせの際は「SUUMO(スーモ)を見て」とお伝え下さい。

  • 福岡県北九州市八幡西区幸神4-7-4

  • 定休日:毎週火曜日・水曜日

この会社のホームページへ
カタログ一覧

この会社が気になったら

カタログをもらう

関連キーワード

この建築実例のその他の特徴
ページトップへ戻る