いい家つくる。善匠

いい家つくる。善匠

家族を笑顔にするために。「真心をこめていい家つくる」木の家専門の工務店
お気に入りに追加する
愛知県西尾市  Uさん
【1000万円台|30坪】シンプルナチュラル & 収納充実!家族と過ごす片流れ屋根の家
いい家つくる。善匠 【1000万円台|30坪】シンプルナチュラル & 収納充実!家族と過ごす片流れ屋根の家の建築実例画像1
  • 本体価格
    1,800万円1,899万円
    59.4万円62.7万円/坪
  • 延床面積
    100.20m2 (30.3坪)
    敷地面積
    164.36m2 (49.7坪)
    家族構成
    夫婦+子ども2人
  • 竣工年月
    2023年10月
    工法
    木造軸組
この会社をもっと知りたくなったら
無料でお届け!まずはカタログ請求

施主Uさんのこだわり

家事ラク動線と収納の工夫!夫婦のそれぞれの空間も確保した快適な住まい

「大人なシンプルナチュラルハウス」をテーマに、家事ラク動線と収納の工夫が光るお家。ベビーカーやアウトドア用品を収納可能な玄関収納や、「洗う・干す・畳む・しまう」が完結できる動線と収納を備えたランドリールーム、各所に設けた収納など、毎日の片付けや家事を楽にする工夫が詰まっています。また、「人と被らない」をコンセプトにグリーンの塗り壁を採用した唯一無二の外観や、遊び心をもたせた畳スペースなど、シンプルながらもひと味違う工夫のあるお家となっています。※社員邸

「大人なシンプルナチュラルハウス」をテーマに、家事ラク動線と収納の工夫が光るお家。ベビーカーやアウトドア用品を収納可能な玄関収納や、「洗う・干す・畳む・しまう」が完結できる動線と収納を備えたランドリールーム、各所に設けた収納など、毎日の片付けや家事を楽にする工夫が詰まっています。また、「人と被らない」をコンセプトにグリーンの塗り壁を採用した唯一無二の外観や、遊び心をもたせた畳スペースなど、シンプルながらもひと味違う工夫のあるお家となっています。※社員邸

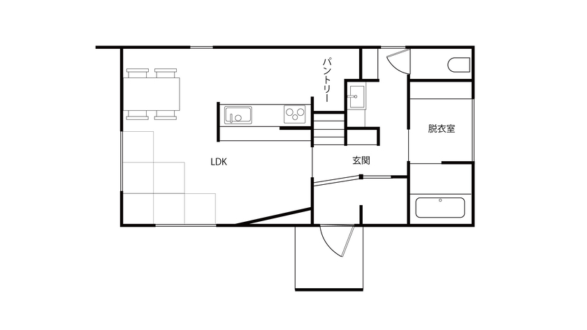
間取り図(3LDK)

1階
いい家つくる。善匠 【1000万円台|30坪】シンプルナチュラル & 収納充実!家族と過ごす片流れ屋根の家の間取り図(3LDK)1階
2階
いい家つくる。善匠 【1000万円台|30坪】シンプルナチュラル & 収納充実!家族と過ごす片流れ屋根の家の間取り図(3LDK)2階
この会社をもっと知りたくなったら
無料でお届け!まずはカタログ請求

内外観ギャラリー

この会社をもっと知りたくなったら
無料でお届け!まずはカタログ請求

この会社の他の建築実例を見る

この建築実例が気になった方へおすすめ

この建築実例の詳細情報

この建築実例を建てた店舗情報

店舗名 岡崎西展示場
住所 愛知県岡崎市昭和町木舟25(岡崎中日ハウジングセンター)
問い合わせ
0120-930-685
  • ※営業時間内の対応となります。

  • ※お問い合わせの際は「SUUMO(スーモ)を見て」とお伝え下さい。

ホームページ この会社のホームページへ

いい家つくる。善匠のコンテンツ一覧

お問い合わせ

カタログをもらう
総合カタログ
いい家つくる。善匠のカタログ(大切にしていること、こだわりがわかる「ZENSHOO CONCEPT BOOK」)
大切にしていること、こだわりがわかる「ZENSHOO CONCEPT BOOK」
問合コード:1346680002

この会社が気になったら

カタログをもらう
総合カタログ
いい家つくる。善匠のカタログ(大切にしていること、こだわりがわかる「ZENSHOO CONCEPT BOOK」)
大切にしていること、こだわりがわかる「ZENSHOO CONCEPT BOOK」
問合コード:1346680002

関連キーワード

この建築実例のその他の特徴
ページトップへ戻る