矢橋林業 矢橋の家

矢橋林業 矢橋の家

創立約70年累計2500棟の実績。造成からアフターサポート、庭づくりまで自社施工の安心
お気に入りに追加する
岐阜県大垣市  Hさん
【2000万円台/注文住宅/間取り図】グレー×北欧×アンティーク。開放感たっぷりのお洒落な子育てハウス
矢橋林業 矢橋の家 【2000万円台/注文住宅/間取り図】グレー×北欧×アンティーク。開放感たっぷりのお洒落な子育てハウスの建築実例画像1
  • 本体価格
    2,000万円2,499万円
    54.0万円67.5万円/坪
  • 延床面積
    122.55m2 (37.0坪)
    敷地面積
    332.26m2 (100.5坪)
    家族構成
    夫婦+子ども1人
  • 竣工年月
    2020年8月
    工法
    木造軸組
この会社をもっと知りたくなったら
無料でお届け!まずはカタログ請求

施主Hさんのこだわり

思い出の中国の風情もプラスして。子育てしやすく、家事ラクも叶える間取り&動線

「築50年以上の実家は大きいんですが、小さな部屋の連なりで狭く感じていました。子どもの様子も見守りにくかったので、建てるならLDKは何もない開放的な空間にしようと思っていました」。そう話すHさん邸のLDKは吹抜けもあり、とても開放的。キッチンに立っても全体が見渡せるので、お子さんの様子も見守りやすくなった。「とても広くなったので子どもも伸びやかに過ごしていますね。玄関からLDKへぐるりと回れる回遊動線もお気に入りで、走り回っています」。大好きなグレーをベー… 続きを読む

「築50年以上の実家は大きいんですが、小さな部屋の連なりで狭く感じていました。子どもの様子も見守りにくかったので、建てるならLDKは何もない開放的な空間にしようと思っていました」。そう話すHさん邸のLDKは吹抜けもあり、とても開放的。キッチンに立っても全体が見渡せるので、お子さんの様子も見守りやすくなった。「とても広くなったので子どもも伸びやかに過ごしていますね。玄関からLDKへぐるりと回れる回遊動線もお気に入りで、走り回っています」。大好きなグレーをベースに北欧とアンティークで彩ったインテリアも素敵で、ところどころに思い出深い中国の風情をプラスしたことでHさんらしさも加わった。「矢橋林業さんには本当にいろいろお願いしたので、大変だったのではないかと思います。でも依頼してよかったですね。家づくりで不安なことやマイナス面などを全部赤裸々にお話ししてもいいと思えたのは、矢橋林業さんだけ。ひとえに担当者さんの人柄が大きいと思います」。

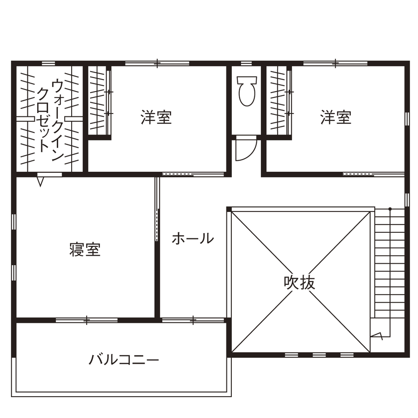
間取り図(3LDK)

1階
矢橋林業 矢橋の家 【2000万円台/注文住宅/間取り図】グレー×北欧×アンティーク。開放感たっぷりのお洒落な子育てハウスの間取り図(3LDK)1階
2階
矢橋林業 矢橋の家 【2000万円台/注文住宅/間取り図】グレー×北欧×アンティーク。開放感たっぷりのお洒落な子育てハウスの間取り図(3LDK)2階
この会社をもっと知りたくなったら
無料でお届け!まずはカタログ請求

内外観ギャラリー

この会社をもっと知りたくなったら
無料でお届け!まずはカタログ請求

この会社の他の建築実例を見る

この建築実例が気になった方へおすすめ

  • この建築実例のカタログをもらう

    矢橋林業 矢橋の家のカタログ画像
    施工実例集
    心豊かな暮らし 矢橋の家 建築実例集
    家づくりのプロセスもわかりやすく掲載しました。お施主様のリアルなお声も好評です
  • この建築実例を検討時に見学したモデルハウス

    矢橋林業 矢橋の家のモデルハウス画像1
    矢橋林業 矢橋の家のモデルハウス画像2
    • 延床面積
      -
    • 所在地
      愛知県名古屋市中区錦2-5-31 長者町相互ビル1階
    • 営業時間
      10:00~17:30(平日)、11:00~17:00(土日)(定休日:水曜日・木曜日・祝日(年末年始・お盆))
    • 和モダン
    • 建築家
    • 趣味
    • 等身大
  • イベントに参加する

    矢橋林業 矢橋の家のイベント画像
    【名古屋市|ショールーム見学会|矢橋林業】本物素材だけがもつ豊かな質感。自社工房・自社大工による伝統ある技術を確認できる @伏見駅徒歩5分、丸の内駅徒歩3分
    • モデルハウス見学会
    開催日
    随時開催中
    開催場所
    愛知県名古屋市中区錦2-5-31 長者町相互ビル1階
    参加特典
    事前予約&初回来場でギフトカード3000円分プレゼント

この建築実例の詳細情報

この建築実例を建てた店舗情報

店舗名 大垣展示場
住所 岐阜県大垣市東前2-289-2
問い合わせ
0584-22-0001
  • ※営業時間内の対応となります。

  • ※お問い合わせの際は「SUUMO(スーモ)を見て」とお伝え下さい。

ホームページ この会社のホームページへ

矢橋林業 矢橋の家のコンテンツ一覧

お問い合わせ

カタログをもらう
施工実例集
矢橋林業 矢橋の家のカタログ(心豊かな暮らし 矢橋の家 建築実例集)
心豊かな暮らし 矢橋の家 建築実例集
問合コード:1309200002

この会社が気になったら

カタログをもらう
施工実例集
矢橋林業 矢橋の家のカタログ(心豊かな暮らし 矢橋の家 建築実例集)
心豊かな暮らし 矢橋の家 建築実例集
問合コード:1309200002

関連キーワード

ページトップへ戻る