お庭、外観、LDKと和の雰囲気を織り交ぜながら空間を演出。LDKでは勾配天井や畳小上がりスペースを活用する事で開放感のある落ち着いた空間を作り出せました。
お庭、外観、LDKと和の雰囲気を織り交ぜながら空間を演出。LDKでは勾配天井や畳小上がりスペースを活用する事で開放感のある落ち着いた空間を作り出せました。
外観だけでなく、お庭との調和も考えてデザインしました。
外観だけでなく、お庭との調和も考えてデザインしました。
「和」のテイストを意識してLDKをデザインしました。
「和」のテイストを意識してLDKをデザインしました。
| 商品名 | - |
| 部材・設備 | - |
| 商品名 | - |
| 部材・設備 | - |
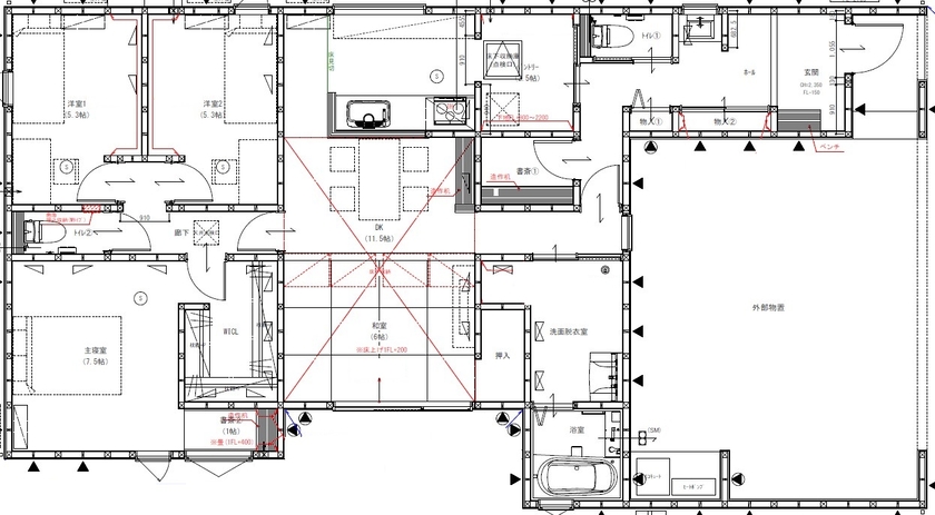
| 延床面積 | 140.37m2 (42.4坪) |
| 敷地面積 | 335.12m2 (101.3坪) |
| 工法 | 木造軸組 |
| 本体価格 | 3,000万円~3,499万円 |
| 竣工年月 | 2023年7月 |
| 店舗名 | 本社 |
| 住所 | 岐阜県岐阜市東鶉3-48-1 |
| 問い合わせ | |
| ホームページ | この会社のホームページへ |
※営業時間内の対応となります。
※お問い合わせの際は「SUUMO(スーモ)を見て」とお伝え下さい。
岐阜県岐阜市東鶉3-48-1
定休日:火曜日、水曜日