ヤマカ木材 オンリーホーム

ヤマカ木材 オンリーホーム

岐阜に根ざし創業73年の老舗住宅メーカー。永年無償定期点検等確かなアフターフォロー
お気に入りに追加する
白・黒・グレーで統一した、シックでホテルライクな家
ヤマカ木材 オンリーホーム 白・黒・グレーで統一した、シックでホテルライクな家の建築実例画像1
  • 本体価格
    2,000万円2,499万円
    62.4万円78.0万円/坪
  • 延床面積
    106.01m2 (32.0坪)
    敷地面積
    209.08m2 (63.2坪)
    家族構成
    -
  • 竣工年月
    2025年2月
    工法
    木造軸組
この会社をもっと知りたくなったら
無料でお届け!まずはカタログ請求

施主のこだわり

無彩色で統一する事で落ち着いた空間を演出

外観・内観ともに白・黒・グレーの無彩色で統一する事で落ち着いた空間を演出。ハイドアや窓を大きくすることにより空間の広がりを感じていただけるお家になりました。キッチンと洗濯室、ファミリークローゼットまでの移動距離を5m以内にしており、家事動線も洗練されています。

外観・内観ともに白・黒・グレーの無彩色で統一する事で落ち着いた空間を演出。ハイドアや窓を大きくすることにより空間の広がりを感じていただけるお家になりました。キッチンと洗濯室、ファミリークローゼットまでの移動距離を5m以内にしており、家事動線も洗練されています。

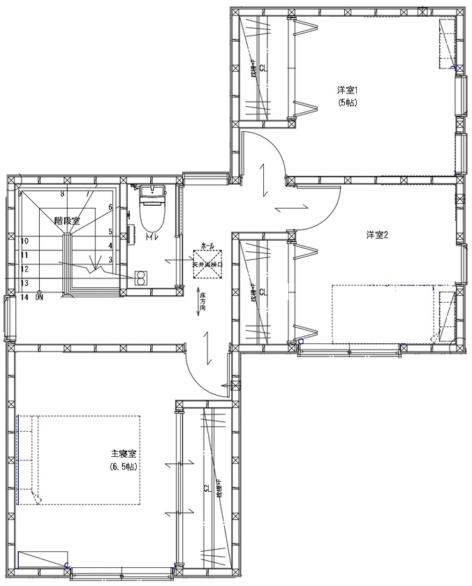
間取り図(3LDK)

1階
ヤマカ木材 オンリーホーム 白・黒・グレーで統一した、シックでホテルライクな家の間取り図(3LDK)1階
2階
ヤマカ木材 オンリーホーム 白・黒・グレーで統一した、シックでホテルライクな家の間取り図(3LDK)2階
この会社をもっと知りたくなったら
無料でお届け!まずはカタログ請求

内外観ギャラリー

この会社をもっと知りたくなったら
無料でお届け!まずはカタログ請求

この会社の他の建築実例を見る

この建築実例が気になった方へおすすめ

この建築実例の詳細情報

この建築実例を建てた店舗情報

店舗名 本社
住所 岐阜県岐阜市東鶉3-48-1
問い合わせ
0120-960-928
  • ※営業時間内の対応となります。

  • ※お問い合わせの際は「SUUMO(スーモ)を見て」とお伝え下さい。

ホームページ この会社のホームページへ

ヤマカ木材 オンリーホームのコンテンツ一覧

お問い合わせ

カタログをもらう
総合カタログ
ヤマカ木材 オンリーホームのカタログ(パンフレット)
パンフレット
問合コード:5014820001
お問い合わせ先
0120-960-928
  • ※営業時間内の対応となります。

  • ※お問い合わせの際は「SUUMO(スーモ)を見て」とお伝え下さい。

本社
  • 岐阜県岐阜市東鶉3-48-1

  • 定休日:火曜日、水曜日

この会社のホームページへ

この会社が気になったら

カタログをもらう
総合カタログ
ヤマカ木材 オンリーホームのカタログ(パンフレット)
パンフレット
問合コード:5014820001

関連キーワード

この建築実例のその他の特徴
ページトップへ戻る