1. 不動産・住宅サイト SUUMO > 
  2. 注文住宅・ハウスメーカー > 
  3. 東海 > 
  4. 愛知県 > 
  5. ハウスクラフト > 
  6. 【ハウスクラフト|三重郡菰野町】スタイリッシュかつ飽きのこない、上質なデザインに注目/予約制
ハウスクラフト
ハウスクラフト

家づくりを通じて家族の幸せな未来をつくる

お気に入りに
追加する
モデルハウス・イベント来場特典

【ハウスクラフト|三重郡菰野町】スタイリッシュかつ飽きのこない、上質なデザインに注目/予約制

魅力的なデザイン、納得の間取りや機能を誇るモデルハウス

テイスト
ナチュラル(自然素材など)、シンプルデザイン
ライフスタイル
収納充実・動線配慮で家事ラクな暮らし、アウトドア・園芸など外と繋がる暮らし
【ハウスクラフト|三重郡菰野町】スタイリッシュかつ飽きのこない、上質なデザインに注目/予約制1
大きく張り出した袖壁と軒で、スタイリッシュなイメージに仕上がった「菰野町モデルハウス」の外観
【ハウスクラフト|三重郡菰野町】スタイリッシュかつ飽きのこない、上質なデザインに注目/予約制2
天井まで届くハイサッシから差し込む自然光が、LDKの隅々を明るく照らしている
【ハウスクラフト|三重郡菰野町】スタイリッシュかつ飽きのこない、上質なデザインに注目/予約制3
白と木目をベースとした配色が空間をより広く見せている
【ハウスクラフト|三重郡菰野町】スタイリッシュかつ飽きのこない、上質なデザインに注目/予約制4
キッチンの壁には、薄いグレーのアクセントクロスを使用。写真奧にはパントリーも用意されている
【ハウスクラフト|三重郡菰野町】スタイリッシュかつ飽きのこない、上質なデザインに注目/予約制5
プライバシーがしっかりと守られたウッドデッキは、家族だけのくつろぎ空間
【ハウスクラフト|三重郡菰野町】スタイリッシュかつ飽きのこない、上質なデザインに注目/予約制6
ランドリールームには、便利な造作カウンター付き
【ハウスクラフト|三重郡菰野町】スタイリッシュかつ飽きのこない、上質なデザインに注目/予約制7
高い位置に設けられたスリット窓で、明るい洗面化粧室
【ハウスクラフト|三重郡菰野町】スタイリッシュかつ飽きのこない、上質なデザインに注目/予約制8
2階の広々としたホールにも収納スペースが備えられている
【ハウスクラフト|三重郡菰野町】スタイリッシュかつ飽きのこない、上質なデザインに注目/予約制9
壁のアクセントクロスで、落ち着いたイメージに仕上げられた主寝室
【ハウスクラフト|三重郡菰野町】スタイリッシュかつ飽きのこない、上質なデザインに注目/予約制10
主寝室に隣接したウォークインクローゼット。十分な収納力を備えている
【ハウスクラフト|三重郡菰野町】スタイリッシュかつ飽きのこない、上質なデザインに注目/予約制11
横長のスリット窓を採用することで、自然光をたっぷり取り入れることができる子ども部屋
【ハウスクラフト|三重郡菰野町】スタイリッシュかつ飽きのこない、上質なデザインに注目/予約制12
広いシューズクロークが目をひく玄関まわり。木目がプリントされたデザインクロスを間接照明が照らしている

外とのつながりを感じられるプライベートなウッドデッキは、家族だけのくつろぎ空間

軒と袖壁に囲まれた1階部分、2つ並んだスリット窓まわりのデザインがスタイリッシュな印象を与える「菰野町モデルハウス」。白と木目で統一された室内は、ナチュラルな温かみを感じさせる。リビングと大きな掃き出し窓でフラットにつながったヒノキのウッドデッキは、肌触りも心地よく、くつろぎの空間。壁でしっかりとプライバシーが守られているため、リビングの延長として家族の時間を楽しめる。玄関収納をはじめ、パントリーやウォークインクローゼットなど、定番の収納設備はすべて完備。さらに、リビングには2つの収納が用意されており、子どものおもちゃや掃除用具などで散らかりがちなリビングも、手間をかけずにスッキリと片付けることができる。ストレスフリーの生活を提案するモデルハウスだ。

このモデルハウスの見どころ・特長

  • 【ハウスクラフト|三重郡菰野町】スタイリッシュかつ飽きのこない、上質なデザインに注目/予約制の見どころ1
    年間施工棟数100棟以上の経験から回答。「家づくり相談会」も同時開催

    三重県で年間100棟を超える住まいを提供している同社。その豊富な設計・施工経験から生まれるアドバイスは、家づくりの初心者にとっては貴重なもの。モデルハウス訪問時に希望すれば、家づくりのご相談も可能。土地のこと、ローンや資金のこと、間取りのことなど、この機会に悩みや疑問を解消しよう。

  • 【ハウスクラフト|三重郡菰野町】スタイリッシュかつ飽きのこない、上質なデザインに注目/予約制の見どころ2
    見ることのできない壁内で、家族を守る制震システム「ミューダム」

    住まいの基本的な役割は「家族の安全を守ること」と考えるハウスクラフトは、これまで頑丈な構造体による耐震性能を追求してきた。同社では、その耐震構造と、地震エネルギーを何度も吸収する制震システム「ミューダム」の2つを兼ね備えた地震対策で家族を守る。見学の際には、こうした取り組みにも注目してほしい。

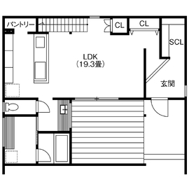
間取り図

  • 1階
    【ハウスクラフト|三重郡菰野町】スタイリッシュかつ飽きのこない、上質なデザインに注目/予約制の間取り図(1階)
  • 2階
    【ハウスクラフト|三重郡菰野町】スタイリッシュかつ飽きのこない、上質なデザインに注目/予約制の間取り図(2階)

モデルハウス詳細データ

所在地 三重県三重郡菰野町菰野2915-1
延床面積 113.45m2
間取り 3LDK
部材・設備 シューズインクローゼット、床下収納、モニター付インターホン、ディンプルキー、ダブルロックドア、複層ガラス、全居室フローリング、上水道、下水道、電気、側溝、庭、人感センサー付照明、ダウンライト、照明器具、火災警報器(報知機)
参考本体価格 4380万円
想定家族構成 4人
完成年月 2023年5月
予約締切 見学したい日の前日まで
電話番号
0120-54-2005
  • ※営業時間内の対応となります。

  • ※お問い合わせの際は「SUUMO(スーモ)を見て」とお伝え下さい。

営業時間 10:00~18:00
定休日 水曜日
ホームページリンク この会社のホームページへ

2025年03月26日より掲載
問合コード:1389540001018

アクセス

三重県三重郡菰野町菰野2915-1
近鉄湯の山線「中菰野」駅より徒歩9分、近鉄湯の山線「大羽根園」駅より徒歩15分、近鉄湯の山線「菰野」駅より徒歩21分

モデルハウス見学予約フォーム

※こちらのフォームに必要事項を入力し『「内容確認」へ進む』ボタンをクリックしてください。

  1. 【1】入力
  2. 【2】確認
  3. 【3】完了

必須は必須項目です。必ず入力ください。

お名前(全角)

必須

氏名

完了

ふりがな
※任意

ご連絡先

E-mailアドレス
(半角英数)

必須

※PCアドレス推奨

※確認のご連絡を差し上げる場合があります。

完了

電話番号
(半角数字)

必須

※確認のご連絡を差し上げる場合があります。

完了

ご希望の連絡時間帯
※任意

見学希望日

必須

定休日: 水曜日

カレンダーから指定
  • 2025年 12月
  • 2026年 1月
  • 2026年 2月
  • 2026年 3月
  • 2026年 4月
  • 2026年 5月
  • 2026年 6月
  • 2026年 7月
  • 2026年 8月
  • 2026年 9月
  • 2026年 10月
  • 2026年 11月
30 1 2 3 4 5 6
7 8 9 10 11 12 13
14 15 16 17 18 19 20
21 22 23 24 25 26 27
28 29 30 31 1 2 3
28 29 30 31 1 2 3
4 5 6 7 8 9 10
11 12 13 14 15 16 17
18 19 20 21 22 23 24
25 26 27 28 29 30 31
1 2 3 4 5 6 7
8 9 10 11 12 13 14
15 16 17 18 19 20 21
22 23 24 25 26 27 28
1 2 3 4 5 6 7
8 9 10 11 12 13 14
15 16 17 18 19 20 21
22 23 24 25 26 27 28
29 30 31 1 2 3 4
29 30 31 1 2 3 4
5 6 7 8 9 10 11
12 13 14 15 16 17 18
19 20 21 22 23 24 25
26 27 28 29 30 1 2
26 27 28 29 30 1 2
3 4 5 6 7 8 9
10 11 12 13 14 15 16
17 18 19 20 21 22 23
24 25 26 27 28 29 30
31 1 2 3 4 5 6
31 1 2 3 4 5 6
7 8 9 10 11 12 13
14 15 16 17 18 19 20
21 22 23 24 25 26 27
28 29 30 1 2 3 4
28 29 30 1 2 3 4
5 6 7 8 9 10 11
12 13 14 15 16 17 18
19 20 21 22 23 24 25
26 27 28 29 30 31 1
26 27 28 29 30 31 1
2 3 4 5 6 7 8
9 10 11 12 13 14 15
16 17 18 19 20 21 22
23 24 25 26 27 28 29
30 31 1 2 3 4 5
30 31 1 2 3 4 5
6 7 8 9 10 11 12
13 14 15 16 17 18 19
20 21 22 23 24 25 26
27 28 29 30 1 2 3
27 28 29 30 1 2 3
4 5 6 7 8 9 10
11 12 13 14 15 16 17
18 19 20 21 22 23 24
25 26 27 28 29 30 31
1 2 3 4 5 6 7
8 9 10 11 12 13 14
15 16 17 18 19 20 21
22 23 24 25 26 27 28
29 30 1 2 3 4 5

完了

希望時間帯

必須

営業時間: 10:00~18:00

完了

見学間近の予約のため、ご質問は直接お問い合わせ下さい。 お問い合わせ先:0120-54-2005
※お問い合わせの際は「SUUMO(スーモ)注文住宅を見た」とお伝えになるとスムーズです。

SUUMOお役立ちメルマガ・アンケート
お役立ち情報の送付希望

※配信を希望しない場合は、「希望しない」にチェックを入れてください。

【ご注意】
1.ご予約いただきました内容に関して、施工会社の担当者よりご連絡させて頂く場合がございます。
集合場所、時間等に関してご質問がある場合は、恐れ入りますが直接お問い合わせください。
2.キャンセルや日程の変更があった場合、直接店舗へご連絡ください。
3.定休日・営業時間外のご予約は原則お受けできかねますので、予めご了承ください。

質問や建築のご予定など

※以下は必須の入力項目ではありませんが、ご入力いただくと今後の流れがスムーズに行えます。

現在のご住所

郵便番号
(半角数字)

ご住所
(全角)

※番地・建物名まで忘れずご記入ください

建築予定時期
建築予算(土地予算除く)
建築予定地

建築内容
年齢  

現在の状況






その他、ご要望があればご記入ください。

【ご注意】
1.ご予約いただきました内容に関して、施工会社の担当者よりご連絡させて頂く場合がございます。
集合場所、時間等に関してご質問がある場合は、恐れ入りますが直接お問い合わせください。
2.キャンセルや日程の変更があった場合、直接店舗へご連絡ください。
3.定休日・営業時間外のご予約は原則お受けできかねますので、予めご了承ください。
このモデルハウスと同じ所在地からハウスメーカー・工務店を探す
このモデルハウスと同じ所在地から展示場を探す

【モデルハウスの本体価格について】
掲載中のモデルハウスの中には一部参考本体価格の記載があるものがございます。価格は全て消費税相当金額を含みます。各社にお問い合わせください。また、モデルハウス情報の参考本体価格は施工当時のもので、現在の価格とは異なる場合があります。詳細は各社にお問い合わせください

お問い合わせ
  • お問い合わせ先
    0120-54-2005
    • ※営業時間内の対応となります。

    • ※お問い合わせの際は「SUUMO(スーモ)を見て」とお伝え下さい。

    【ハウスクラフト|三重郡菰野町】スタイリッシュかつ飽きのこない、上質なデザインに注目/予約制
    三重県三重郡菰野町菰野2915-1
    [定休日]水曜日
カタログ一覧

ハウスクラフトのカタログ一覧です。無料で請求できます。1社で請求できるカタログ数は3件までです。

ページトップへ戻る