タスク(ユニバーサルホーム半田店)

タスク(ユニバーサルホーム半田店)

ユニバーサルホーム半田店として、あなたのこだわりに応える地元の家づくりパートナー
お気に入りに追加する
愛知県半田市  Sさん
【半田市|間取り図有|吹抜けリビング|小屋裏収納|2000万円台】開放感ある間取りに冴え渡る曲線美
タスク(ユニバーサルホーム半田店) 【半田市|間取り図有|吹抜けリビング|小屋裏収納|2000万円台】開放感ある間取りに冴え渡る曲線美の建築実例画像1
  • 本体価格
    2,500万円2,999万円
    62.8万円75.4万円/坪
  • 延床面積
    131.61m2 (39.8坪)
    敷地面積
    -
    家族構成
    夫婦+子ども1人
  • 竣工年月
    2014年9月
    工法
    木造軸組
この会社をもっと知りたくなったら
無料でお届け!まずはカタログ請求

施主Sさんのこだわり

「家に帰った時に『暑い!』『寒い!』と温度変化を感じることなく一年中とても快適」

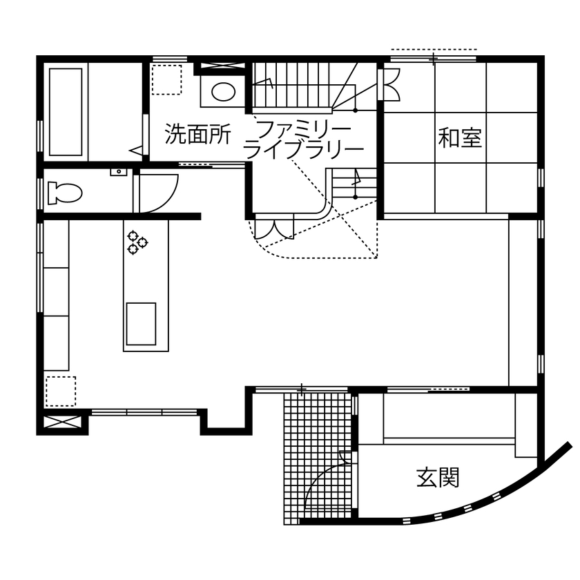
土木業に携わるSさんが、自身の家づくりを【ユニバーサルホーム半田店】に任せたのは同社の技術力・施工力を確信していたから。希望は、建物内外で緩やかな曲線が映える『Rconcept』の佇まい。美しいRを実現するためにはビルダーの技量が求められるが、同社は見事にその期待に応え、曲線美が印象的な住まいを叶えた。1階はLDKがワイドに広がり、和室を続き間にすれば団欒空間はさらに広々。吹抜けになったリビング階段の踊り場には全体を見渡せるファミリーライブラリーを設けた。… 続きを読む

土木業に携わるSさんが、自身の家づくりを【ユニバーサルホーム半田店】に任せたのは同社の技術力・施工力を確信していたから。希望は、建物内外で緩やかな曲線が映える『Rconcept』の佇まい。美しいRを実現するためにはビルダーの技量が求められるが、同社は見事にその期待に応え、曲線美が印象的な住まいを叶えた。1階はLDKがワイドに広がり、和室を続き間にすれば団欒空間はさらに広々。吹抜けになったリビング階段の踊り場には全体を見渡せるファミリーライブラリーを設けた。2階は多目的に使えるホールや広い洗面室、2つの洋室もゆとりがあり、家族の一体感やつながりを深めつつ個々のプライベート時間も大切にする、Sさん一家の暮らし方に合う設計とした。また、Sさんがとても気に入っているのは、夏はひんやり涼しく冬はじんわり暖かい地熱を利用した「地熱床システム」で年中快適&エコなこと。特に冬は「1階全室床暖房」の効果を実感!「朝布団から出るのが辛くないですし、洗面室やトイレも暖かくて嬉しいです。1年中半袖で過ごせてまさに『常春』。お部屋が暖まるのを待つ必要もないので、遊びに来たお友達に『暖房つけっぱなしなの?!』と聞かれるほどなんです」。入居後のアフター面も満足で、「ユニバーサルホームで建てて良かった!」と実感しているそうだ。

間取り図(3LDK)

1階
タスク(ユニバーサルホーム半田店) 【半田市|間取り図有|吹抜けリビング|小屋裏収納|2000万円台】開放感ある間取りに冴え渡る曲線美の間取り図(3LDK)1階
2階
タスク(ユニバーサルホーム半田店) 【半田市|間取り図有|吹抜けリビング|小屋裏収納|2000万円台】開放感ある間取りに冴え渡る曲線美の間取り図(3LDK)2階
小屋裏
タスク(ユニバーサルホーム半田店) 【半田市|間取り図有|吹抜けリビング|小屋裏収納|2000万円台】開放感ある間取りに冴え渡る曲線美の間取り図(3LDK)小屋裏
この会社をもっと知りたくなったら
無料でお届け!まずはカタログ請求

内外観ギャラリー

この会社をもっと知りたくなったら
無料でお届け!まずはカタログ請求

この建築実例の担当者

タスク(ユニバーサルホーム半田店)の担当者画像
榊原敦史
得意分野
設計全般

この会社の他の建築実例を見る

この建築実例が気になった方へおすすめ

  • この建築実例のカタログをもらう

    タスク(ユニバーサルホーム半田店)のカタログ画像
    総合カタログ
    この1冊でわかる【家づくりの教科書】
    家づくりのスタートに役立つ、ユニバーサルホームのカタログを差し上げます
  • イベントに参加する

    タスク(ユニバーサルホーム半田店)のイベント画像
    【半田市/無料相談会】地熱床システムでこの冬も暖かいお家に!モデルハウスで性能を体感しつつ、家づくりの不安を解消しましょう!
    • キャンペーン情報
    • セミナー・教室
    • 設計・資金相談会
    • モデルハウス見学会
    • 土地相談会
    開催日
    2025/3/1(土)~随時
    開催場所
    愛知県半田市浜田町3-7
    参加特典
    ご予約&アンケートご記入で、QUOカード5000円分をプレゼント!

この建築実例の詳細情報

この建築実例を建てた店舗情報

住所 愛知県半田市浜田町3-7
問い合わせ
0569-22-2488
  • ※営業時間内の対応となります。

  • ※お問い合わせの際は「SUUMO(スーモ)を見て」とお伝え下さい。

ホームページ この会社のホームページへ

タスク(ユニバーサルホーム半田店)のコンテンツ一覧

お問い合わせ

カタログをもらう
総合カタログ
タスク(ユニバーサルホーム半田店)のカタログ(この1冊でわかる【家づくりの教科書】)
この1冊でわかる【家づくりの教科書】
問合コード:5013930001
イベントに参加する
お問い合わせ先
0569-22-2488
  • ※営業時間内の対応となります。

  • ※お問い合わせの際は「SUUMO(スーモ)を見て」とお伝え下さい。

  • 愛知県半田市浜田町3-7

  • 定休日:火・水曜日

この会社のホームページへ

この会社が気になったら

カタログをもらう
総合カタログ
タスク(ユニバーサルホーム半田店)のカタログ(この1冊でわかる【家づくりの教科書】)
この1冊でわかる【家づくりの教科書】
問合コード:5013930001
イベントに参加する

関連キーワード

この建築実例のその他の特徴
ページトップへ戻る