アートホーム

アートホーム

家は器。家は家族が生活する器である。決して主張しすぎてはいけない。
お気に入りに追加する
北海道千歳市  Fさん
【A-Prot】|千歳市/2LDK|窓辺に薪ストーブ・キャットウォークのある、猫と暮らす家
  • 本体価格
    2,360万円
    87.4万円/坪
  • 延床面積
    89.34m2 (27.0坪)
    敷地面積
    330.65m2 (100.0坪)
    家族構成
    夫婦+猫2匹
    竣工年月
    2020年
    工法
    木造軸組
  • 特徴
    2階建て  |  高気密・高断熱  |  シンプルモダン  |  ナチュラル  |  こだわりの内観デザイン  |  ペットと暮らす  |  オープンLDK  |  …
この会社をもっと知りたくなったら
無料でお届け!まずはカタログ請求

施主Fさんのこだわり

夫婦二人と猫二匹の暮らし

「ウインタースポーツが趣味で、北海道への移住を長年夢見ていました。引っ越すのであれば、マンション暮らしでは叶わないぐらい、上下左右と猫たちが自由に行動できるような戸建てにしたいという思いが強く、梁も、壁も猫の動線として設計。コンパクトながら寝室までひとつながりの開放的な空間、庭先から敷地前面の溢れる緑までを取り込む大開口窓、四季の変化を五感で感じられる我が家は、お気に入りの場所となりました」。

「ウインタースポーツが趣味で、北海道への移住を長年夢見ていました。引っ越すのであれば、マンション暮らしでは叶わないぐらい、上下左右と猫たちが自由に行動できるような戸建てにしたいという思いが強く、梁も、壁も猫の動線として設計。コンパクトながら寝室までひとつながりの開放的な空間、庭先から敷地前面の溢れる緑までを取り込む大開口窓、四季の変化を五感で感じられる我が家は、お気に入りの場所となりました」。

間取り図(2LDK)

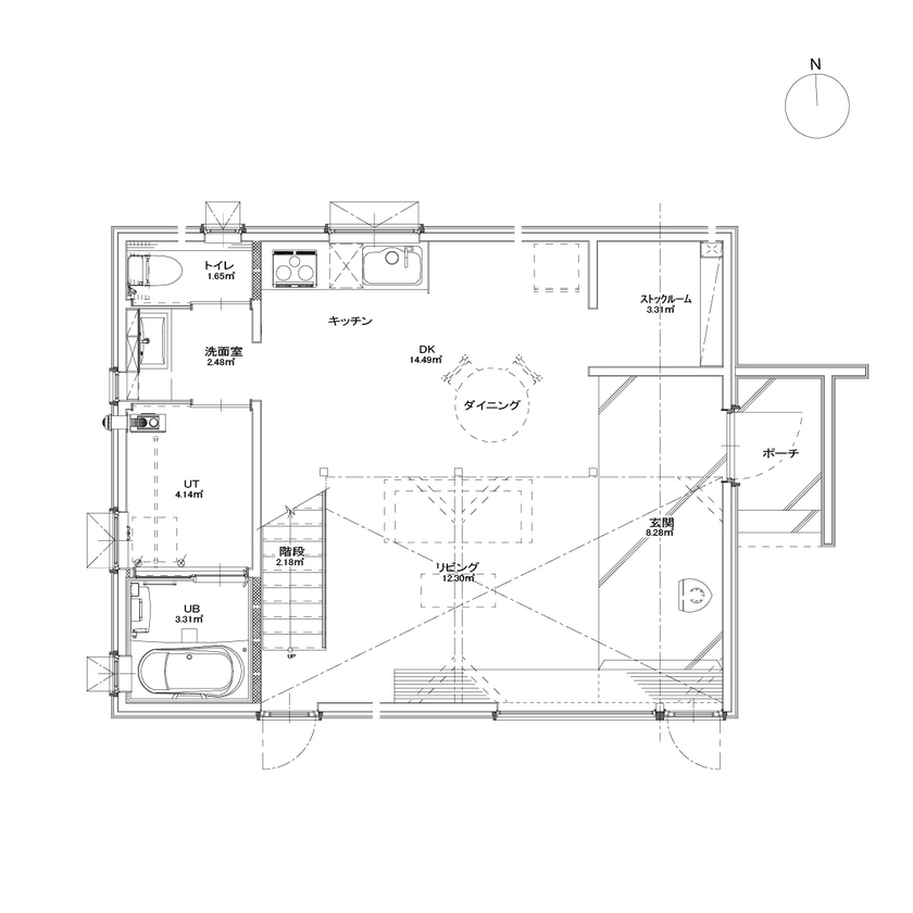
1階
アートホーム 【A-Prot】|千歳市/2LDK|窓辺に薪ストーブ・キャットウォークのある、猫と暮らす家の間取り図(2LDK)1階

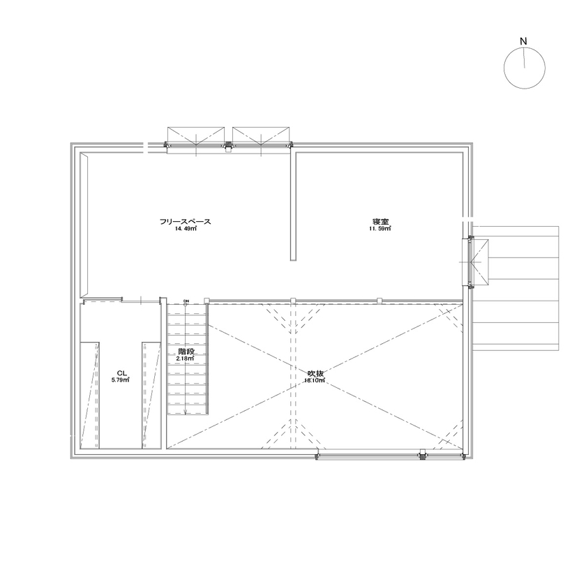
2階
アートホーム 【A-Prot】|千歳市/2LDK|窓辺に薪ストーブ・キャットウォークのある、猫と暮らす家の間取り図(2LDK)2階

この会社をもっと知りたくなったら
無料でお届け!まずはカタログ請求

内外観ギャラリー

この会社をもっと知りたくなったら
無料でお届け!まずはカタログ請求

この会社の他の建築実例を見る

この建築実例が気になった方へおすすめ

この建築実例の詳細情報

この建築実例を建てた店舗情報

店舗名 札幌支店
住所 北海道札幌市南区南30条西8丁目5-1
問い合わせ
011-581-8686
  • ※営業時間内の対応となります。

  • ※お問い合わせの際は「SUUMO(スーモ)を見て」とお伝え下さい。

ホームページ この会社のホームページへ

アートホームのコンテンツ一覧

お問い合わせ

カタログをもらう
総合カタログ
アートホームのカタログ(【アートホーム】実例やミニプロトなど商品のカタログ。)
【アートホーム】実例やミニプロトなど商品のカタログ。
問合コード:1313520001
イベントに参加する

この会社が気になったら

カタログをもらう
総合カタログ
アートホームのカタログ(【アートホーム】実例やミニプロトなど商品のカタログ。)
【アートホーム】実例やミニプロトなど商品のカタログ。
問合コード:1313520001
イベントに参加する

関連キーワード

この建築実例のその他の特徴
ページトップへ戻る