アートホーム

アートホーム

家は器。家は家族が生活する器である。決して主張しすぎてはいけない。
お気に入りに追加する
北海道川上郡  Wさん
【A-Prot】|3580万円/上川郡/4LDK間取図|広大な牧草地と林を眼前に臨む、美留和にたつ住まい
  • 本体価格
    3,580万円
    94.4万円/坪
  • 延床面積
    125.44m2 (37.9坪)
    敷地面積
    1000.37m2 (302.6坪)
    家族構成
    夫婦+子ども1人
    竣工年月
    2017年10月
    工法
    木造軸組
  • 特徴
    耐震・免震・制震  |  2階建て  |  収納充実  |  家事がラク  |  高気密・高断熱  |  シンプルモダン  |  こだわりの外観デザイン  |  …
この会社をもっと知りたくなったら
無料でお届け!まずはカタログ請求

施主Wさんのこだわり

家のどこからでも広大な牧草地を望む「自然と共に生きる暮らし」を思い描いた

Wさん宅が建つ敷地は主要道から雑木林を隔てて、広大な牧草地と林を眼前に臨む場所。「眺めの良い自然を感じられる住まいを希望していました」とWさん。牧草地を臨む景観を生かし、そこに開放的な平面をつくること、その景色は家の中からのみの特別な景観になるように演出することに注力した住まいは伸びやかに横に広がる外観のプロポーションが美しい。

Wさん宅が建つ敷地は主要道から雑木林を隔てて、広大な牧草地と林を眼前に臨む場所。「眺めの良い自然を感じられる住まいを希望していました」とWさん。牧草地を臨む景観を生かし、そこに開放的な平面をつくること、その景色は家の中からのみの特別な景観になるように演出することに注力した住まいは伸びやかに横に広がる外観のプロポーションが美しい。

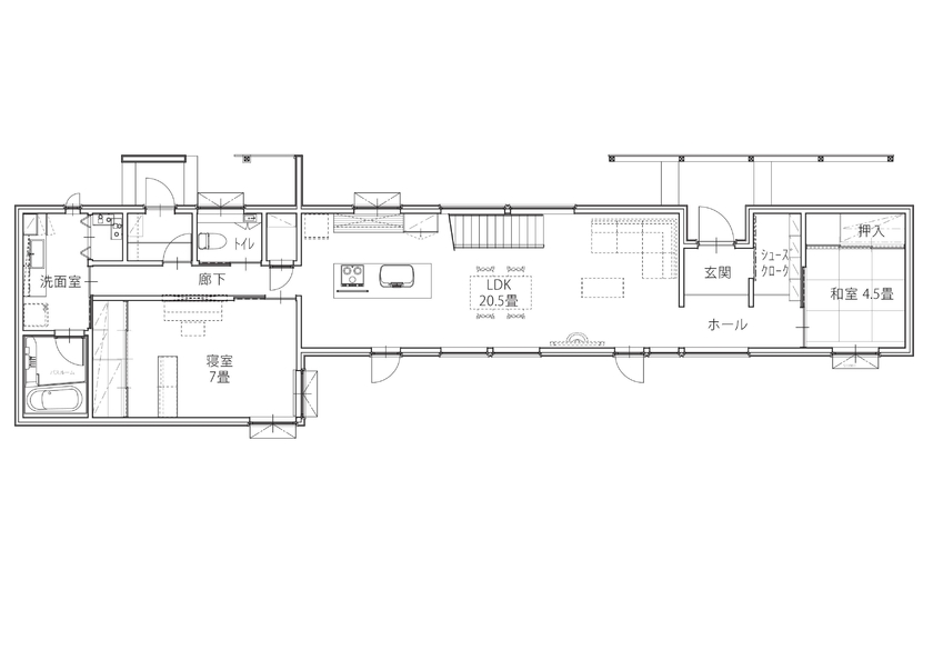
間取り図(4LDK)

1階
アートホーム 【A-Prot】|3580万円/上川郡/4LDK間取図|広大な牧草地と林を眼前に臨む、美留和にたつ住まいの間取り図(4LDK)1階

2階
アートホーム 【A-Prot】|3580万円/上川郡/4LDK間取図|広大な牧草地と林を眼前に臨む、美留和にたつ住まいの間取り図(4LDK)2階

この会社をもっと知りたくなったら
無料でお届け!まずはカタログ請求

内外観ギャラリー

この会社をもっと知りたくなったら
無料でお届け!まずはカタログ請求

この会社の他の建築実例を見る

この建築実例が気になった方へおすすめ

この建築実例の詳細情報

この建築実例を建てた店舗情報

店舗名 札幌支店
住所 北海道札幌市南区南30条西8丁目5-1
問い合わせ
011-581-8686
  • ※営業時間内の対応となります。

  • ※お問い合わせの際は「SUUMO(スーモ)を見て」とお伝え下さい。

ホームページ この会社のホームページへ

アートホームのコンテンツ一覧

お問い合わせ

カタログをもらう
総合カタログ
アートホームのカタログ(【アートホーム】実例やミニプロトなど商品のカタログ。)
【アートホーム】実例やミニプロトなど商品のカタログ。
問合コード:1313520001
イベントに参加する

この会社が気になったら

カタログをもらう
総合カタログ
アートホームのカタログ(【アートホーム】実例やミニプロトなど商品のカタログ。)
【アートホーム】実例やミニプロトなど商品のカタログ。
問合コード:1313520001
イベントに参加する

関連キーワード

この建築実例のその他の特徴
ページトップへ戻る