アートホーム

アートホーム

家は器。家は家族が生活する器である。決して主張しすぎてはいけない。
お気に入りに追加する
北海道苫小牧市  Oさん
【mini prot Exz】|苫小牧市/4LDK|お客様ご要望のウッドデッキを配置[タイプと間取選択・規格化住宅]
アートホーム 【mini prot Exz】|苫小牧市/4LDK|お客様ご要望のウッドデッキを配置[タイプと間取選択・規格化住宅]の建築実例画像1
  • 本体価格
    2,800万円
    72.5万円/坪
  • 延床面積
    127.72m2 (38.6坪)
    敷地面積
    219.45m2 (66.3坪)
    家族構成
    夫婦+子ども1人
  • 竣工年月
    2019年10月
    工法
    木造軸組
この会社をもっと知りたくなったら
無料でお届け!まずはカタログ請求

施主Oさんのこだわり

家づくりの参考にアートホームのモデルハウスを沢山見学しました

間取りと価格が決まった注文住宅〈mini prot Exz38〉タイプでマイホームを実現したOさんご家族。家づくりの検討を始めた当初は外構の予定はなかったがアートホームのモデルハウスをいくつか回るうち、ウッドデッキのある素敵なモデルを見学したことをきっかけに外構の要望も出てきたという。そのため建物本体にかかる金額が明確に把握できる規格住宅のミニプロトで建築することを決めた。Exzタイプの間取りはOさん家族の暮らしに丁度良く、特にダイニングの6面窓からウッド… 続きを読む

間取りと価格が決まった注文住宅〈mini prot Exz38〉タイプでマイホームを実現したOさんご家族。家づくりの検討を始めた当初は外構の予定はなかったがアートホームのモデルハウスをいくつか回るうち、ウッドデッキのある素敵なモデルを見学したことをきっかけに外構の要望も出てきたという。そのため建物本体にかかる金額が明確に把握できる規格住宅のミニプロトで建築することを決めた。Exzタイプの間取りはOさん家族の暮らしに丁度良く、特にダイニングの6面窓からウッドデッキに出られる配置がお気に入りだという。

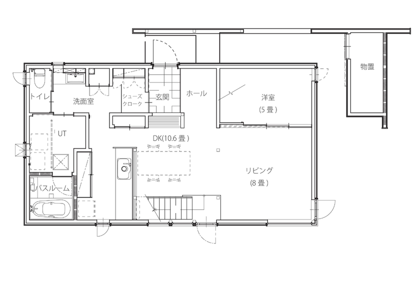
間取り図(4LDK)

1階
アートホーム 【mini prot Exz】|苫小牧市/4LDK|お客様ご要望のウッドデッキを配置[タイプと間取選択・規格化住宅]の間取り図(4LDK)1階
2階
アートホーム 【mini prot Exz】|苫小牧市/4LDK|お客様ご要望のウッドデッキを配置[タイプと間取選択・規格化住宅]の間取り図(4LDK)2階
この会社をもっと知りたくなったら
無料でお届け!まずはカタログ請求

内外観ギャラリー

この会社をもっと知りたくなったら
無料でお届け!まずはカタログ請求

この会社の他の建築実例を見る

この建築実例が気になった方へおすすめ

この建築実例の詳細情報

この建築実例を建てた店舗情報

店舗名 札幌支店
住所 北海道札幌市南区南30条西8丁目5-1
問い合わせ
011-581-8686
  • ※営業時間内の対応となります。

  • ※お問い合わせの際は「SUUMO(スーモ)を見て」とお伝え下さい。

ホームページ この会社のホームページへ

アートホームのコンテンツ一覧

お問い合わせ

カタログをもらう
総合カタログ
アートホームのカタログ(【アートホーム】実例やミニプロトなど商品のカタログ。)
【アートホーム】実例やミニプロトなど商品のカタログ。
問合コード:1313520001
イベントに参加する

この会社が気になったら

カタログをもらう
総合カタログ
アートホームのカタログ(【アートホーム】実例やミニプロトなど商品のカタログ。)
【アートホーム】実例やミニプロトなど商品のカタログ。
問合コード:1313520001
イベントに参加する

関連キーワード

この建築実例のその他の特徴
ページトップへ戻る