アートホーム

アートホーム

家は器。家は家族が生活する器である。決して主張しすぎてはいけない。
お気に入りに追加する
北海道千歳市  Kさん
【mini prot City】|千歳市/3LDK|間口狭い都市部でもプライバシー確保[タイプと間取選択・規格化住宅]
  • 本体価格
    2,430万円
    86.3万円/坪
  • 延床面積
    93.16m2 (28.1坪)
    敷地面積
    200.10m2 (60.5坪)
    家族構成
    夫婦+子ども1人
    竣工年月
    2016年6月
    工法
    木造軸組
  • 特徴
    耐震・免震・制震  |  2階建て  |  収納充実  |  家事がラク  |  高気密・高断熱  |  シンプルモダン  |  こだわりの外観デザイン  |  …
この会社をもっと知りたくなったら
無料でお届け!まずはカタログ請求

施主Kさんのこだわり

コンパクトながら収納が充実している間取りが気に入りました

間取りと価格の決まった注文住宅ミニプロト(mini prot City)タイプで住まいを実現したKさん邸。「間取り以外を自由に選べるのでフリープランではなく価格が明確に分かるミニプロトでの建築を決めました。」(Kさん)ミニプロトは選べるオプションの多さと組み合わせが豊富にありこだわりを反映したお気に入りの住まいが完成したそうだ。

間取りと価格の決まった注文住宅ミニプロト(mini prot City)タイプで住まいを実現したKさん邸。「間取り以外を自由に選べるのでフリープランではなく価格が明確に分かるミニプロトでの建築を決めました。」(Kさん)ミニプロトは選べるオプションの多さと組み合わせが豊富にありこだわりを反映したお気に入りの住まいが完成したそうだ。

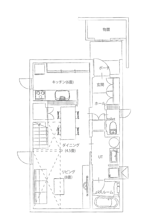
間取り図(3LDK)

1階
アートホーム 【mini prot City】|千歳市/3LDK|間口狭い都市部でもプライバシー確保[タイプと間取選択・規格化住宅]の間取り図(3LDK)1階

2階
アートホーム 【mini prot City】|千歳市/3LDK|間口狭い都市部でもプライバシー確保[タイプと間取選択・規格化住宅]の間取り図(3LDK)2階

この会社をもっと知りたくなったら
無料でお届け!まずはカタログ請求

内外観ギャラリー

この会社をもっと知りたくなったら
無料でお届け!まずはカタログ請求

この会社の他の建築実例を見る

この建築実例が気になった方へおすすめ

この建築実例の詳細情報

この建築実例を建てた店舗情報

店舗名 札幌支店
住所 北海道札幌市南区南30条西8丁目5-1
問い合わせ
011-581-8686
  • ※営業時間内の対応となります。

  • ※お問い合わせの際は「SUUMO(スーモ)を見て」とお伝え下さい。

ホームページ この会社のホームページへ

アートホームのコンテンツ一覧

お問い合わせ

カタログをもらう
総合カタログ
アートホームのカタログ(【アートホーム】実例やミニプロトなど商品のカタログ。)
【アートホーム】実例やミニプロトなど商品のカタログ。
問合コード:1313520001
イベントに参加する

この会社が気になったら

カタログをもらう
総合カタログ
アートホームのカタログ(【アートホーム】実例やミニプロトなど商品のカタログ。)
【アートホーム】実例やミニプロトなど商品のカタログ。
問合コード:1313520001
イベントに参加する

関連キーワード

この建築実例のその他の特徴
ページトップへ戻る