アートホーム

アートホーム

家は器。家は家族が生活する器である。決して主張しすぎてはいけない。
お気に入りに追加する
北海道北広島市  Mさん
【mini prot Basic】|北広島市/4LDK|35坪タイプに1部屋をプラス[タイプと間取選択・規格化住宅]
アートホーム 【mini prot Basic】|北広島市/4LDK|35坪タイプに1部屋をプラス[タイプと間取選択・規格化住宅]の建築実例画像1
  • 本体価格
    2,920万円
    79.9万円/坪
  • 延床面積
    120.89m2 (36.5坪)
    敷地面積
    258.70m2 (78.2坪)
    家族構成
    夫婦+子ども1人
  • 竣工年月
    2017年4月
    工法
    木造軸組
この会社をもっと知りたくなったら
無料でお届け!まずはカタログ請求

施主Mさんのこだわり

予算内で庭やカーポート、外構までこだわりお気に入りの住まいが完成

白いガルバリウムの外観と作り込まれた素敵な外構が目を引くMさん宅は間取りと価格が決まった注文住宅〈mini prot Basic35〉タイプ。  オプションで1部屋を追加しL字型の建物となっている。ミニプロトは規格住宅でありながら選択できるオプションが豊富な為、外構や室内の色や素材のセレクトによって無限の組み合わせが存在する。オプションを含め建物予算が事前に明確に把握できるため、庭やカーポートなど建物本体以外の希望があったMさん宅の住まいづくりを叶えるには… 続きを読む

白いガルバリウムの外観と作り込まれた素敵な外構が目を引くMさん宅は間取りと価格が決まった注文住宅〈mini prot Basic35〉タイプ。  オプションで1部屋を追加しL字型の建物となっている。ミニプロトは規格住宅でありながら選択できるオプションが豊富な為、外構や室内の色や素材のセレクトによって無限の組み合わせが存在する。オプションを含め建物予算が事前に明確に把握できるため、庭やカーポートなど建物本体以外の希望があったMさん宅の住まいづくりを叶えるにはぴったりだったという。建物にかかる金額が明確になれば都心から少し離れても良いと決断ができ納得のいく住まいが完成した。

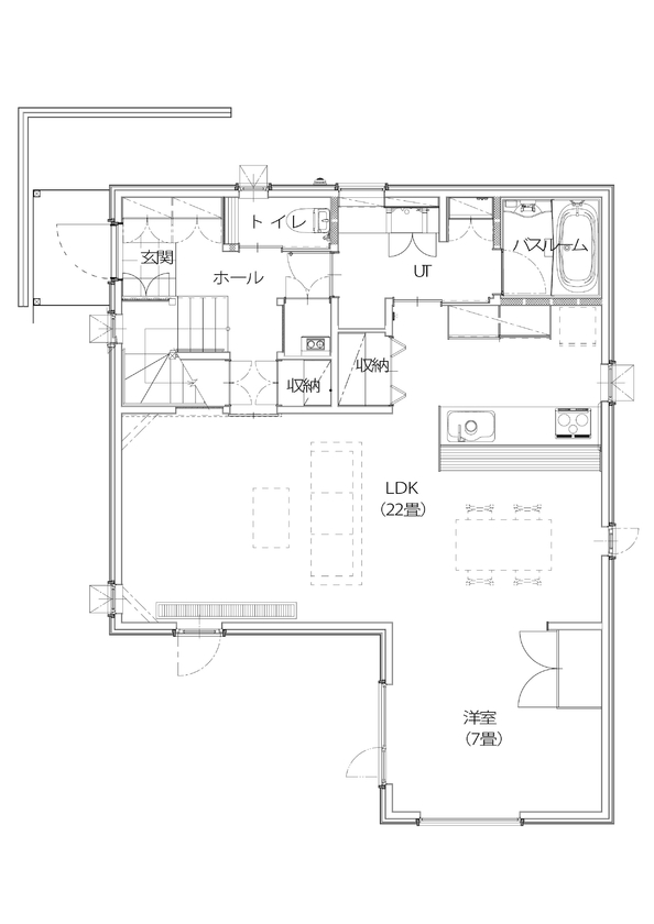
間取り図(4LDK)

1階
アートホーム 【mini prot Basic】|北広島市/4LDK|35坪タイプに1部屋をプラス[タイプと間取選択・規格化住宅]の間取り図(4LDK)1階
2階
アートホーム 【mini prot Basic】|北広島市/4LDK|35坪タイプに1部屋をプラス[タイプと間取選択・規格化住宅]の間取り図(4LDK)2階
この会社をもっと知りたくなったら
無料でお届け!まずはカタログ請求

内外観ギャラリー

この会社をもっと知りたくなったら
無料でお届け!まずはカタログ請求

この会社の他の建築実例を見る

この建築実例が気になった方へおすすめ

この建築実例の詳細情報

この建築実例を建てた店舗情報

店舗名 札幌支店
住所 北海道札幌市南区南30条西8丁目5-1
問い合わせ
011-581-8686
  • ※営業時間内の対応となります。

  • ※お問い合わせの際は「SUUMO(スーモ)を見て」とお伝え下さい。

ホームページ この会社のホームページへ

アートホームのコンテンツ一覧

お問い合わせ

カタログをもらう
総合カタログ
アートホームのカタログ(【アートホーム】実例やミニプロトなど商品のカタログ。)
【アートホーム】実例やミニプロトなど商品のカタログ。
問合コード:1313520001
イベントに参加する

この会社が気になったら

カタログをもらう
総合カタログ
アートホームのカタログ(【アートホーム】実例やミニプロトなど商品のカタログ。)
【アートホーム】実例やミニプロトなど商品のカタログ。
問合コード:1313520001
イベントに参加する

関連キーワード

この建築実例のその他の特徴
ページトップへ戻る