"20251208163009:H:0" "20251208163009:H:0" "20251208163009:H:0"
この物件にお問い合わせ
お問い合わせの内容を選択してください
03-6715-8963
(株)KENTY不動産蒲田本店
営業時間:9:00~18:00
定休日:なし
お電話の際は、SUUMOを見たとお伝えいただくとスムーズです。
(株)KENTY不動産蒲田本店
TEL: 03-6715-8963
※映像に誤りがある場合は こちら

部屋の特徴・設備

  • バストイレ別、バルコニー、ガスコンロ対応、クロゼット、フローリング、シャワー付洗面台、TVインターホン、浴室乾燥機、室内洗濯置、システムキッチン、南向き、温水洗浄便座、洗面所独立、洗面化粧台、閑静な住宅地、最上階、3口以上コンロ、対面式キッチン、全居室洋室、保証人不要、全居室フローリング、2沿線利用可、エアコン2台、LDK15畳以上、ディンプルキー、敷金2ヶ月、床暖房、食器洗乾燥機、ダブルロックキー、保証金不要、複層ガラス、トイレ2ヶ所、吹抜け、前面棟無、全室2面採光、2駅利用可、3駅以上利用可、3沿線以上利用可、駅徒歩5分以内、駅徒歩10分以内、専有面積25坪以上、LDK12畳以上、LDK18畳以上、全居室6畳以上、都市ガス、タンクレストイレ、洗面所に窓、洗面所にドア、ダウンライト、礼金1ヶ月、IT重説 対応物件、初期費用カード決済可、通風良好

物件概要

情報の見方

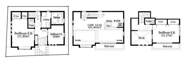
間取り詳細 洋11.3 洋11.1 洋6 LDK19.6 構造 木造
階建 1-3階/地上3階建 築年月 2012年2月
エネルギー
消費性能
- 断熱性能 -
目安光熱費
  • -
損保 4万円4年 駐車場 -
入居 '26年3月中旬 取引態様 仲介
条件 事務所利用不可 取り扱い店舗
物件コード
801359
SUUMO
物件コード
100476947208 総戸数 1戸
情報更新日 2025/12/07 次回更新予定日 2025/12/15
バルコニー面積
  • 7.45m2
契約期間
  • 定期借家 4年
保証会社
  • 保証会社利用必 契約時1か月分 翌年以降年1万円
ほか諸費用
  • 更新料 新賃料1.00ヶ月分

情報掲載元物件はこちら
この物件にお問い合わせ
お問い合わせの内容を選択してください
(株)KENTY不動産蒲田本店
営業時間:9:00~18:00/定休日:なし

店舗・物件ブランドのアピールポイント

この物件を取り扱う店舗

(株)KENTY不動産蒲田本店 取引態様:仲介
免許番号: 国土交通大臣(1)第10546号 / (公社)全日本不動産協会東京都本部会員 / (公社)首都圏不動産公正取引協議会加盟
  • 駅徒歩3分以内
  • 保証人不要相談可
  • 女性スタッフ
  • 賃貸保証対応
  • 入居ローン
東京都大田区に3店舗(蒲田本店・蒲田東口店・大森店)弊社スタッフはベテラン社員多数在籍しております。
東京都大田区西蒲田7-46-5
9:00~18:00
定休日: なし
JR京浜東北線/蒲田駅 歩1分
JR京浜東北線/大森駅 駅より車15分(4.9km)
JR京浜東北線/川崎駅 駅より車19分(6km)
03-6715-8963
  • 部屋情報
  • 地図・周辺環境
  • エリアの口コミ

【掲載物件情報について】

・SUUMOは「自ら居住するための住宅」をお探しの方に向けたポータルサイトです。契約者以外の方が使用する(例:第三者に宿泊させる等)ことを目的としたお問合せはご遠慮ください


・SUUMOではユーザーの皆様に最も信頼されるサイトを目指して、物件情報の精度向上に努めております。SUUMOに掲載されている物件情報について「事実と異なる点や誤解を招く表現がある」「成約済の物件が掲載されている」などにお気づきになりましたら、以下のページからご連絡ください

その他の情報

(株)KENTY不動産蒲田本店のその他取り扱い物件

最寄駅から探す

最寄駅の沿線から探す

関連エリアから不動産情報を探す

ページトップへ戻る

お気に入りに追加しました。