"20251216150047:H:0" "20251216150047:H:0" "20251216150047:H:0"
この物件にお問い合わせ
お問い合わせの内容を選択してください
082-924-3339
(株)シティホーム五日市駅前センター
営業時間:9:30~18:30
定休日:12/27~1/3 休みです。
お電話の際は、SUUMOを見たとお伝えいただくとスムーズです。
(株)シティホーム五日市駅前センター
TEL: 082-924-3339
※映像に誤りがある場合は こちら

部屋の特徴・設備

  • バストイレ別、バルコニー、エアコン、クロゼット、フローリング、シャワー付洗面台、TVインターホン、オートロック、室内洗濯置、シューズボックス、システムキッチン、追焚機能浴室、角住戸、温水洗浄便座、脱衣所、洗面所独立、洗面化粧台、2口コンロ、宅配ボックス、閑静な住宅地、全居室洋室、保証人不要、敷金1ヶ月、24時間緊急通報システム、全居室フローリング、デザイナーズ、ネット使用料不要、緑豊かな住宅地、事務所相談、雨戸、複層ガラス、前面棟無、始発駅、2駅利用可、駅徒歩10分以内、敷地内ごみ置き場、平面駐車場、洗面所にドア、間接照明、IT重説 対応物件、通風良好

物件概要

情報の見方

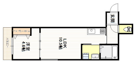
間取り詳細 洋4.6 LDK10.5 構造 木造
階建 2階/3階建 築年月 2026年3月
エネルギー
消費性能
- 断熱性能 -
目安光熱費
  • -
損保 1.6万円2年 駐車場 敷地内6600円
入居 '26年3月下旬 取引態様 仲介
条件 二人入居可/事務所利用相談 取り扱い店舗
物件コード
-
SUUMO
物件コード
100476284947 総戸数 -
情報更新日 2025/12/11 次回更新予定日 2025/12/19
保証会社
  • 保証会社利用必 保証会社初回保証料(賃料総額30パーセント)月額保証委託料(賃料総額2パーセント)
備考
  • ハイグレードに仕上がっています。ホテルレベルの設備で生活できます。他にはない非日常を手に入れてください。

情報掲載元物件はこちら
この物件にお問い合わせ
お問い合わせの内容を選択してください
(株)シティホーム五日市駅前センター
営業時間:9:30~18:30/定休日:12/27~1/3 休みです。

店舗・物件ブランドのアピールポイント

この物件を取り扱う店舗

(株)シティホーム五日市駅前センター 取引態様:仲介
免許番号: 国土交通大臣(6)第5598号 / (公社)全日本不動産協会広島県本部会員 /  中国地区不動産公正取引協議会加盟
  • 駐車場あり
  • 開店10年以上
  • 駅徒歩3分以内
  • 駅まで車送迎
  • 多店舗展開
シティホームは37年目を迎えました。これからもより一層皆様にご満足頂けるサービスを心掛けてまいります。
広島県広島市佐伯区海老山町 3-5 K2ハウス2F
9:30~18:30
定休日: 12/27~1/3 休みです。
JR山陽本線/五日市駅 歩5分
広島電鉄宮島線/広電五日市駅 歩2分
広島電鉄宮島線/佐伯区役所前駅 歩7分
082-924-3339
  • 部屋情報
  • 地図・周辺環境
  • エリアの口コミ

【掲載物件情報について】

・SUUMOは「自ら居住するための住宅」をお探しの方に向けたポータルサイトです。契約者以外の方が使用する(例:第三者に宿泊させる等)ことを目的としたお問合せはご遠慮ください


・SUUMOではユーザーの皆様に最も信頼されるサイトを目指して、物件情報の精度向上に努めております。SUUMOに掲載されている物件情報について「事実と異なる点や誤解を招く表現がある」「成約済の物件が掲載されている」などにお気づきになりましたら、以下のページからご連絡ください

その他の情報

(株)シティホーム五日市駅前センターのその他取り扱い物件

全物件を一覧表示する

最寄駅から探す

最寄駅の沿線から探す

関連エリアから不動産情報を探す

ページトップへ戻る

お気に入りに追加しました。