"20251211083816:H:0" "20251211083816:H:0" "20251211083816:H:0"
この物件にお問い合わせ
お問い合わせの内容を選択してください
0120-501607
【通話料無料】
(株)アルフォメガアンドパートナーズ
営業時間:AM10:00~PM6:00
定休日:水曜日
お電話の際は、SUUMOを見たとお伝えいただくとスムーズです。

部屋の特徴・設備

  • バストイレ別、バルコニー、フローリング、TVインターホン、室内洗濯置、陽当り良好、シューズボックス、システムキッチン、追焚機能浴室、温水洗浄便座、洗面所独立、CATV、即入居可、3口以上コンロ、ペット相談、照明付、全居室収納、ロフト、オートバス、グリル付、保証人不要、敷金1ヶ月、CATVインターネット、2面バルコニー、3面採光、2沿線利用可、エアコン2台、ネット使用料不要、キッチンに窓、眺望良好、L字型キッチン、屋根裏収納、耐震構造、3駅以上利用可、駅徒歩5分以内、電動シャッター車庫、南西向き、LDK12畳以上、2階LDK、フリースペース、備付食器棚、都市ガス、2階洗面台、壁紙張替済、礼金1ヶ月、初期費用カード決済可、通風良好

物件概要

情報の見方

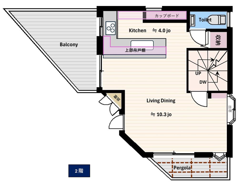
間取り詳細 洋7.3 LDK14.3 納戸 3 ロフト 6 構造 木造
階建 3階建 築年月 1993年11月
エネルギー
消費性能
- 断熱性能 -
目安光熱費
  • -
損保 2.4万円2年 駐車場 付無料/リモコンシャッタ付駐
入居 取引態様 仲介
条件 ペット相談/事務所利用不可/ルームシェア不可 取り扱い店舗
物件コード
-
SUUMO
物件コード
100461662110 総戸数 -
情報更新日 2025/11/28 次回更新予定日 2025/12/13
バルコニー面積
  • 10m2
仲介手数料
  • 1ヶ月
保証会社
  • 全保連利用必 初年度99000円 2年目以降13000円/年
ほか初期費用
  • 合計3.96万円(内訳:玄関鍵交換費用(上下ダブルロック)ディンプルキー)
備考
  • 巡回管理/ペット飼育可(小型犬2匹まで)※敷金2ヵ月(退去時に1ヵ月償却)

情報掲載元物件はこちら
この物件にお問い合わせ
お問い合わせの内容を選択してください
0120-501607 【通話料無料】
(株)アルフォメガアンドパートナーズ
営業時間:AM10:00~PM6:00/定休日:水曜日

この物件を取り扱う店舗

(株)アルフォメガアンドパートナーズ 取引態様:仲介
免許番号: 東京都知事(4)第82018号 / (公社)全日本不動産協会東京都本部会員 / (公社)首都圏不動産公正取引協議会加盟
  • 賃貸保証対応
  • 女性スタッフ
  • 保証人不要相談可
  • 駐車場あり
  • 売買取扱あり
弊社は、個々のお客様の多様化するニーズに合わせたサービスをご提供させて頂きます。
東京都武蔵野市吉祥寺北町1-1-1桜井ビル2A 2階
AM10:00~PM6:00
定休日: 水曜日
JR中央線/吉祥寺駅 歩6分
京王井の頭線/吉祥寺駅 歩7分
JR総武線/吉祥寺駅 歩6分
0120-501607
  • 部屋情報
  • 地図・周辺環境
  • エリアの口コミ

【掲載物件情報について】

・SUUMOは「自ら居住するための住宅」をお探しの方に向けたポータルサイトです。契約者以外の方が使用する(例:第三者に宿泊させる等)ことを目的としたお問合せはご遠慮ください


・SUUMOではユーザーの皆様に最も信頼されるサイトを目指して、物件情報の精度向上に努めております。SUUMOに掲載されている物件情報について「事実と異なる点や誤解を招く表現がある」「成約済の物件が掲載されている」などにお気づきになりましたら、以下のページからご連絡ください

ページトップへ戻る

お気に入りに追加しました。