"20251211000911:H:0" "20251211000911:H:0" "20251211000911:H:0"
この物件にお問い合わせ
お問い合わせの内容を選択してください
03-3243-2088
(株)アブレイズ・コーポレーション東京駅本店
営業時間:10:00~19:00
定休日:毎週水曜日
お電話の際は、SUUMOを見たとお伝えいただくとスムーズです。
(株)アブレイズ・コーポレーション東京駅本店
TEL: 03-3243-2088
※映像に誤りがある場合は こちら

部屋の特徴・設備

  • バストイレ別、バルコニー、エアコン、ガスコンロ対応、クロゼット、フローリング、シャワー付洗面台、TVインターホン、浴室乾燥機、オートロック、室内洗濯置、陽当り良好、シューズボックス、システムキッチン、角住戸、脱衣所、エレベーター、洗面所独立、洗面化粧台、駐輪場、宅配ボックス、CATV、光ファイバー、外壁タイル張り、2面採光、3口以上コンロ、防犯カメラ、照明付、全居室収納、グリル付、全居室洋室、保証人不要、単身者相談、仲介手数料不要、敷金1ヶ月、二人入居相談、全居室フローリング、CS、ネット専用回線、耐火構造、耐震構造、3駅以上利用可、3沿線以上利用可、駅徒歩5分以内、24時間ゴミ出し可、敷地内ごみ置き場、南西向き、オープンキッチン、都市ガス、洗面所に窓、洗面所にドア、南面バルコニー、シューズWIC、BS、礼金1ヶ月、保証会社利用可、IT重説 対応物件、初期費用カード決済可、通風良好

物件概要

情報の見方

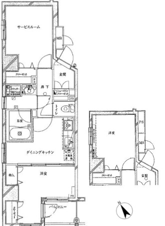
間取り詳細 - 構造 鉄筋コン
階建 4階/11階建 築年月 2004年2月
エネルギー
消費性能
- 断熱性能 -
目安光熱費
  • -
損保 1.8万円2年 駐車場 -
入居 '26年1月上旬 取引態様 仲介
条件 二人入居可 取り扱い店舗
物件コード
039-2328-B-039
SUUMO
物件コード
100471552058 総戸数 -
情報更新日 2025/12/09 次回更新予定日 2025/12/17
契約期間
  • 普通借家 2年
仲介手数料
  • 不要
保証会社
  • 保証会社利用必 初回保証料:総賃料50パーセント
ほか初期費用
  • 合計3.3万円(内訳:鍵交換代3.3万円)
ほか諸費用
  • 更新料 新賃料1.00ヶ月分 24時間サポート 月額1100円
備考
  • 巡回管理/◆初期費用に関してはクレジット決済も可能です。初期費用全額からご指定の一部まで選択してご利用できます。詳細についてはお気軽にご質問ください♪ ◆お見積りは無料で承っております。お問い合わせ時にお気軽にご依頼下さい♪ ◆オンラインでご相談・ご見学・ご契約まで可能です♪ ◆ご質問・ご要望等に関しては、その他の問合せからお気軽にご相談下さい!

情報掲載元物件はこちら
この物件にお問い合わせ
お問い合わせの内容を選択してください
(株)アブレイズ・コーポレーション東京駅本店
営業時間:10:00~19:00/定休日:毎週水曜日

店舗・物件ブランドのアピールポイント

この物件を取り扱う店舗

(株)アブレイズ・コーポレーション東京駅本店 取引態様:仲介
免許番号: 東京都知事(4)第90182号 / (公社)全日本不動産協会東京都本部会員 / (公社)首都圏不動産公正取引協議会加盟
  • 駅徒歩3分以内
  • 開店10年以上
  • 法人契約取扱
  • 保証人不要相談可
  • 賃貸保証対応
☆Xmas限定企画開催中!圧倒的コスパで選べるお部屋探し♪仲介手数料無料で多数ご紹介☆物件情報量は自信あります!
東京都中央区日本橋3-2-4 nefi nihombashi 5階
10:00~19:00
定休日: 毎週水曜日
JR山手線/東京駅 歩2分
東京メトロ銀座線/日本橋駅 歩2分
東京メトロ東西線/日本橋駅 歩4分
03-3243-2088
  • 部屋情報
  • 地図・周辺環境
  • エリアの口コミ

【掲載物件情報について】

・SUUMOは「自ら居住するための住宅」をお探しの方に向けたポータルサイトです。契約者以外の方が使用する(例:第三者に宿泊させる等)ことを目的としたお問合せはご遠慮ください


・SUUMOではユーザーの皆様に最も信頼されるサイトを目指して、物件情報の精度向上に努めております。SUUMOに掲載されている物件情報について「事実と異なる点や誤解を招く表現がある」「成約済の物件が掲載されている」などにお気づきになりましたら、以下のページからご連絡ください

その他の情報

(株)アブレイズ・コーポレーション東京駅本店のその他取り扱い物件

全物件を一覧表示する

最寄駅から探す

最寄駅の沿線から探す

関連エリアから不動産情報を探す

ページトップへ戻る

お気に入りに追加しました。