"20251209014202:H:0" "20251209014202:H:0" "20251209014202:H:0"

ハーモニーレジデンス蒲田アートヴィラ 0108号室

この物件にお問い合わせ
お問い合わせの内容を選択してください
045-566-7493
ピタットハウス日吉店スターツピタットハウス(株)
営業時間:10:00~18:00
定休日:毎週水曜日
お電話の際は、SUUMOを見たとお伝えいただくとスムーズです。
ピタットハウス日吉店スターツピタットハウス(株)
TEL: 045-566-7493
※映像に誤りがある場合は こちら

部屋の特徴・設備

  • バストイレ別、バルコニー、エアコン、ガスコンロ対応、クロゼット、フローリング、TVインターホン、浴室乾燥機、オートロック、室内洗濯置、シューズボックス、システムキッチン、角住戸、温水洗浄便座、エレベーター、洗面所独立、2口コンロ、駐輪場、宅配ボックス、CATV、即入居可、防犯カメラ、ペット相談、分譲賃貸、バイク置場、ディンプルキー、ネット使用料不要、ダブルロックキー、2駅利用可、3沿線以上利用可、敷地内ごみ置き場、平面駐車場、プロパンガス

物件概要

情報の見方

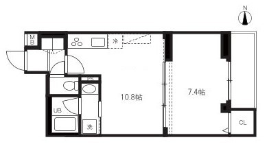
間取り詳細 洋7.4 LDK10.8 構造 鉄筋コン
階建 1階/5階建 築年月 2024年1月
エネルギー
消費性能
- 断熱性能 -
目安光熱費
  • -
損保 1.6万円2年 駐車場 -
入居 取引態様 仲介
条件 ペット相談/事務所利用不可 取り扱い店舗
物件コード
-
SUUMO
物件コード
100452107012 総戸数 48戸
情報更新日 2025/12/07 次回更新予定日 2025/12/15□
契約期間
  • 普通借家 2年
保証会社
  • 保証会社利用必 【シノケン】月額総賃料の50% (最低保証料5万円)/次年度以降12000円 ※引落とし手数料660円(税込)※別紙申込書有。弊社HP上の申込書タブより申込書をダウンロードし記入の上アップロード下さい(6枚全てお送りください)
ほか初期費用
  • 合計13.62万円(内訳:プレミアデスク2年(税込)1.65万円 契約時ルームクリーニング費用(税込)8.118万円 鍵交換代3.85万円)
ほか諸費用
  • 更新料 新賃料1.50ヶ月分

情報掲載元物件はこちら
この物件にお問い合わせ
お問い合わせの内容を選択してください
045-566-7493
ピタットハウス日吉店スターツピタットハウス(株)
営業時間:10:00~18:00/定休日:毎週水曜日

店舗・物件ブランドのアピールポイント

この物件を取り扱う店舗

ピタットハウス日吉店スターツピタットハウス(株) 取引態様:仲介
免許番号: 国土交通大臣(4)第7129号 / (一社)全国住宅産業協会会員 / (公社)首都圏不動産公正取引協議会加盟
  • 駅徒歩3分以内
  • 女性スタッフ
  • 多店舗展開
  • 賃貸保証対応
  • 引越会社紹介
女性スタッフの多いピタットハウスなら安心してお部屋探しをして頂けます!自社管理物件も多数取り揃えております!
神奈川県横浜市港北区日吉本町1-4ー3
10:00~18:00
定休日: 毎週水曜日
東急東横線/日吉駅 歩1分
グリーンライン/日吉駅 歩1分
045-566-7493
  • 部屋情報
  • 地図・周辺環境
  • エリアの口コミ

【掲載物件情報について】

・SUUMOは「自ら居住するための住宅」をお探しの方に向けたポータルサイトです。契約者以外の方が使用する(例:第三者に宿泊させる等)ことを目的としたお問合せはご遠慮ください


・SUUMOではユーザーの皆様に最も信頼されるサイトを目指して、物件情報の精度向上に努めております。SUUMOに掲載されている物件情報について「事実と異なる点や誤解を招く表現がある」「成約済の物件が掲載されている」などにお気づきになりましたら、以下のページからご連絡ください

その他の情報

ピタットハウス日吉店スターツピタットハウス(株)のその他取り扱い物件

全物件を一覧表示する

最寄駅から探す

最寄駅の沿線から探す

関連エリアから不動産情報を探す

ページトップへ戻る

お気に入りに追加しました。