"20260417064350:H:0" "20260417064350:H:0" "20260417064350:H:0"

都営浅草線 西馬込駅 8階建 築11年 - (株)プログレッソが提供する賃貸物件情報

部屋の特徴・設備

  • バストイレ別、バルコニー、エアコン、クロゼット、フローリング、TVインターホン、浴室乾燥機、オートロック、室内洗濯置、陽当り良好、シューズボックス、システムキッチン、角住戸、温水洗浄便座、脱衣所、エレベーター、洗面所独立、駐輪場、宅配ボックス、光ファイバー、外壁タイル張り、2面採光、最上階、BS・CS、3口以上コンロ、対面式キッチン、防犯カメラ、ペット相談、分譲賃貸、グリル付、保証人不要、二人入居相談、バイク置場、24時間緊急通報システム、全居室フローリング、ディンプルキー、ネット使用料不要、眺望良好、ダブルロックキー、保証金不要、ルーフバルコニー、24時間換気システム、ルームシェア相談、南面リビング、人感照明センサー、耐震構造、始発駅、3駅以上利用可、駅徒歩5分以内、24時間ゴミ出し可、敷地内ごみ置き場、東南向き、都市ガス、洗面所にドア、南面バルコニー、室内物干機、保証会社利用可、LGBTフレンドリー、初期費用カード決済可、通風良好

物件概要

情報の見方

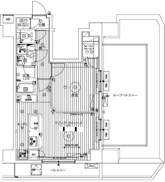
間取り詳細 洋6 LDK12.5 構造 鉄筋コン
階建 8階/8階建 築年月 2016年1月
エネルギー
消費性能
- 断熱性能 -
目安光熱費
  • -
損保 2.5万円2年 駐車場 -
入居 相談 取引態様 仲介
条件 二人入居可/子供可/ペット相談/ルームシェア相談 取り扱い店舗
物件コード
-
SUUMO
物件コード
100501990251 総戸数 -
情報更新日 2026/04/16 次回更新予定日 2026/04/24
保証会社
  • 保証会社利用必 管理会社指定(総賃料30%~)
ほか初期費用
  • 合計7.54万円(内訳:その他初期費用)
備考
  • 巡回管理
 
周辺情報
  • まいばすけっと南馬込5丁目店(スーパー)まで254m
  • スーパー文化堂西馬込店(スーパー)まで483m
  • ローソン大田西馬込一丁目店(コンビニ)まで184m
  • ファミリーマート大田南馬込五丁目店(コンビニ)まで351m
  • ドラッグストアスマイル西馬込店(ドラッグストア)まで480m
  • すき家上池台三丁目店(飲食店)まで1160m

周辺環境を見る

携帯用QRコード
このQRコードを読み取ることで、
ケータイでも物件情報を見ることができます。

物件情報をメールに送る

この物件にお問い合わせ
お問い合わせの内容を選択してください
03-5436-7107
(株)プログレッソ
営業時間:10:00~19:00

店舗・物件ブランドのアピールポイント

取り扱い店舗

【店舗写真】(株)プログレッソ

(株)プログレッソ

TEL:03-5436-7107

  • 住所: 東京都品川区西五反田1-11-1 アイオス五反田駅前1111
  • 営業時間: 10:00~19:00
  • 定休日: -
  • 免許番号: 東京都知事(3)第93634号 / (公社)東京都宅地建物取引業協会会員 / (公社)首都圏不動産公正取引協議会加盟
  • 取引態様: 仲介
  • 部屋情報
  • 地図・周辺環境
  • 取り扱い店舗の情報
  • エリアの口コミ

【掲載物件情報について】

・SUUMOは「自ら居住するための住宅」をお探しの方に向けたポータルサイトです。契約者以外の方が使用する(例:第三者に宿泊させる等)ことを目的としたお問合せはご遠慮ください


・SUUMOではユーザーの皆様に最も信頼されるサイトを目指して、物件情報の精度向上に努めております。SUUMOに掲載されている物件情報について「事実と異なる点や誤解を招く表現がある」「成約済の物件が掲載されている」などにお気づきになりましたら、以下のページからご連絡ください

その他の情報

(株)プログレッソのその他取り扱い物件

全物件を一覧表示する

最寄駅から探す

最寄駅の沿線から探す

関連エリアから不動産情報を探す

ページトップへ戻る

お気に入りに追加しました。