"20260416181638:H:0" "20260416181638:H:0" "20260416181638:H:0"

JR京浜東北線 蒲田駅 8階建 築6年 - (株)プログレッソが提供する賃貸物件情報

部屋の特徴・設備

  • バストイレ別、バルコニー、エアコン、クロゼット、フローリング、TVインターホン、浴室乾燥機、オートロック、室内洗濯置、シューズボックス、システムキッチン、角住戸、温水洗浄便座、脱衣所、エレベーター、洗面所独立、2口コンロ、駐輪場、宅配ボックス、光ファイバー、外壁タイル張り、礼金不要、2面採光、BS・CS、対面式キッチン、防犯カメラ、ペット相談、照明付、全居室収納、分譲賃貸、ウォークインクロゼット、保証人不要、二人入居相談、バイク置場、24時間緊急通報システム、全居室フローリング、デザイナーズ、ディンプルキー、駅まで平坦、ネット使用料不要、ダブルロックキー、保証金不要、24時間換気システム、平坦地、南面リビング、人感照明センサー、耐震構造、3駅以上利用可、3沿線以上利用可、駅徒歩10分以内、24時間ゴミ出し可、敷地内ごみ置き場、セキュリティ会社加入済、都市ガス、洗面所にドア、南面バルコニー、保証会社利用可、初期費用カード決済可、全室照明付、通風良好

物件概要

情報の見方

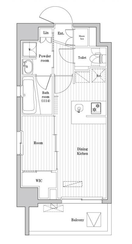
間取り詳細 洋3.5 DK9 構造 鉄筋コン
階建 1階/8階建 築年月 2020年7月
エネルギー
消費性能
- 断熱性能 -
目安光熱費
  • -
損保 1.8万円2年 駐車場 -
入居 相談 取引態様 仲介
条件 二人入居可/ペット相談 取り扱い店舗
物件コード
-
SUUMO
物件コード
100501909837 総戸数 -
情報更新日 2026/04/15 次回更新予定日 2026/04/23
敷金積み増し
  • ペット飼育の場合敷金1ヶ月(総額)
保証会社
  • 保証会社利用必 管理会社指定(総賃料30%~)
ほか初期費用
  • 合計2.64万円(内訳:その他初期費用)
備考
  • 巡回管理
 
周辺情報
  • 肉のハナマサ蒲田店(スーパー)まで254m
  • ライフ西蒲田店(スーパー)まで355m
  • まいばすけっと西蒲田7丁目店(スーパー)まで368m
  • セブンイレブン西蒲田環八通り店(コンビニ)まで184m
  • ファミリーマート小浦蒲田駅西店(コンビニ)まで300m
  • ツルハドラッグ蒲田店(ドラッグストア)まで253m

周辺環境を見る

携帯用QRコード
このQRコードを読み取ることで、
ケータイでも物件情報を見ることができます。

物件情報をメールに送る

この物件にお問い合わせ
お問い合わせの内容を選択してください
03-5436-7107
(株)プログレッソ
営業時間:10:00~19:00

店舗・物件ブランドのアピールポイント

取り扱い店舗

【店舗写真】(株)プログレッソ

(株)プログレッソ

TEL:03-5436-7107

  • 住所: 東京都品川区西五反田1-11-1 アイオス五反田駅前1111
  • 営業時間: 10:00~19:00
  • 定休日: -
  • 免許番号: 東京都知事(3)第93634号 / (公社)東京都宅地建物取引業協会会員 / (公社)首都圏不動産公正取引協議会加盟
  • 取引態様: 仲介
  • 部屋情報
  • 地図・周辺環境
  • 取り扱い店舗の情報
  • エリアの口コミ

【掲載物件情報について】

・SUUMOは「自ら居住するための住宅」をお探しの方に向けたポータルサイトです。契約者以外の方が使用する(例:第三者に宿泊させる等)ことを目的としたお問合せはご遠慮ください


・SUUMOではユーザーの皆様に最も信頼されるサイトを目指して、物件情報の精度向上に努めております。SUUMOに掲載されている物件情報について「事実と異なる点や誤解を招く表現がある」「成約済の物件が掲載されている」などにお気づきになりましたら、以下のページからご連絡ください

その他の情報

(株)プログレッソのその他取り扱い物件

全物件を一覧表示する

最寄駅から探す

最寄駅の沿線から探す

関連エリアから不動産情報を探す

ページトップへ戻る

お気に入りに追加しました。